Luxury European Home Plan with Optional Lower Level (Floor Plan)

The floor plan of this elegant European-style home is both inviting and versatile. Let’s explore the key features that could make this house the perfect inspiration for your dream home.
Specifications:
- 4,350 Heated S.F.
- 5 – 6 Beds
- 5.5 – 6.5 Baths
- 2 Stories
- 3 Cars
The Floor Plans:




Foyer
As you enter through the charming double doors, you’re welcomed by an open foyer.

With its airy feel, this space connects immediately to the rest of the house, creating an inviting atmosphere.
Imagine greeting guests here, where the ambiance speaks volumes.

Study
To one side of the foyer is the cozy study. This quiet sanctuary is perfect for a home office or reading nook.
It’s conveniently tucked away, offering privacy while still being part of the home’s main area. Envision yourself sinking into a comfy chair with a good book.
How could this room enhance your work-from-home experience?
Dining Room

Opposite the study is the dining room, framed beautifully by two columns. This room strikes me as both intimate and open, ideal for family meals or entertaining guests.

Its position allows for easy access to the kitchen, ensuring a seamless flow of food and conversation.

Family Room
Stepping deeper into the house, you encounter the family room. This space is the heart of the home with its warm fireplace.
It connects effortlessly to the screened porch, blending indoor and outdoor living. This room is perfect for cozy winter nights and summer evenings with sliding doors that lead directly outside.
Screened Porch
The screened porch comes with its own fireplace, presenting a unique charm. Picture the tranquil moments spent here, regardless of weather, where you can enjoy a warm tea with the backdrop of nature around you.
What activities would you see yourself enjoying in this space?
Bedroom 5
The main level also houses a fifth bedroom, versatile enough for guest accommodations or an in-law suite. Equipped with its own bathroom, it offers privacy and comfort, ensuring your guests feel at home. Would this make hosting easier for you?
Kitchen
Adjacent to the family room, the kitchen is both functional and spacious. Featuring ample counter space and a useful walk-in pantry, it’s designed for efficiency and ease. I can imagine lively cooking sessions here, with modern appliances complementing plentiful storage.
Breakfast Nook
The breakfast nook adjacent to the kitchen is a sunny corner ideal for casual meals. Its proximity to the deck area means you can enjoy al fresco dining as well.
Perhaps plant a kitchen garden nearby?
Keeping Room
The keeping room adds a touch of coziness, complete with built-ins for extra storage. It’s an adaptable space that could function as a casual family gathering spot, linked seamlessly to both the kitchen and the porch.
Mudroom
Near the garage entry, the mudroom is practical for managing daily comings and goings.
Its built-in storage makes it a useful drop zone for coats and shoes.
Upper Level
Master Bedroom
Upstairs, you’ll find the master bedroom with an inviting sitting nook.
This suite is breathtakingly spacious, with a luxurious ensuite bathroom featuring an oversized shower and dual vanities. The massive walk-in closet is perfect for those who value organized space. I imagine this room offering a haven of rest and relaxation.
Bedrooms 2, 3, and 4
Also on this level are three additional bedrooms, each with its own full bath. These rooms are ideal for children or guests, providing personal space yet keeping everyone nearby.
Thoughtfully positioned, the adjacent laundry room makes chores less of a hassle.
How could these spaces adapt to different life stages?
Laundry Room
The upper-level laundry room is a notable convenience, eliminating the need for transporting laundry up and down the stairs. I see this as a significant time-saver for busy families.
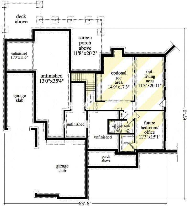
Lower Level
Optional Rec Area
The lower level is designed with versatility in mind. The optional rec area offers a vast expanse for games, exercise, or media.
It feels like an opportunity to personalize the space to fit your lifestyle. What hobbies or activities could this space support?
Future Bedroom or Office
There’s a reserved spot for an extra bedroom or office with an adjacent optional bath. This forward-thinking design allows for expansion as your needs grow—ideal for a growing family or evolving work requirements.
Interest in a modified version of this plan? Click the link to below to get it and request modifications.
