Contemporary Mountain House Plan with Finished Lower Level – 3336 Sq Ft (Floor Plan)

There’s something magnetic about a modern mountain home that confidently announces itself before you even come inside.
Clean lines, dramatic roof angles, and a mix of striking black siding, natural stone, and chunky wood posts give this place real presence.
But that’s just the start. As soon as you enter, you’re pulled into a space that feels both open and grounded.
Light pours in through oversized windows, and the entire layout is designed to keep every inch connected and practical.
With two well-planned levels, this house makes everyday living simple and comfortable. You still get plenty of privacy and lots of room to spread out.
Specifications:
- 3,336 Heated S.F.
- 3 Beds
- 2.5 Baths
- 1 Stories
- 2 Cars
The Floor Plans:


Front Porch
Before you even step inside, the covered porch sets the tone with its generous size and welcoming feel.
There’s enough space for a couple of chairs or a bench, so you can imagine yourself sipping coffee out here and watching the world go by.
The shelter from the roof and the warmth of the wood columns create a mountain-lodge vibe, and the glass double doors let you know there’s plenty of natural light waiting inside.

Foyer
Come through the front door and you’ll find yourself in a spacious foyer. There’s room to greet guests without feeling crowded, and your view goes straight to the great room beyond.
The staircase to the lower level sits off to your right—easy to find but never in the way.
This spot really works as a transition area, setting the tone for the relaxed and open feeling throughout the main floor.

Great Room
The great room greets you with soaring ceilings and a wall of oversized windows that blur the line between inside and out.

The fireplace with its sleek gray surround grabs your attention, while the huge sliding doors open right onto the covered deck.
I think this setup is perfect if you love to entertain, but it’s just as great for keeping an eye on backyard fun from the comfort of your couch.
This room easily handles both lively gatherings and quiet nights in.
Kitchen
Turn left from the great room and you’ll see the kitchen in all its glory.

With L-shaped counters and an oversized island, there’s more than enough space for multiple cooks to work together.
Sage-green cabinets, a light gray backsplash, and striking black fixtures give the kitchen a fresh, modern feel.
The island seating invites everyone to hang out, snack, or chat. I love how the open layout lets conversations flow easily between the kitchen, dining area, and living room.
Hosting feels a lot more relaxed this way.
Dining Area
The dining area sits right next to the kitchen. It feels cozy but remains fully connected to everything around it.
Large sliding glass doors open to the covered deck, so you can take meals outside when the weather is nice.
I can picture everyday breakfasts here, bright with morning sun, or big holiday dinners with everyone gathered around.
Being so close to the kitchen makes serving easy and cleanup fast.

Covered Deck
The covered deck runs the full width of the house, giving you a true outdoor living space.
You can easily set up different zones—one side for grilling, the middle for dining, and the other end for sunset watching.
If you’re hosting a group or just unwinding in the mountain air, this deck feels like a natural extension of the main living area.

Mudroom
Off the kitchen, just inside from the garage, you’ll find a mudroom that acts as a practical buffer.
It’s long enough for built-in storage or a bench, so muddy boots, jackets, and backpacks have a place to land.
I really appreciate how this space keeps the mess contained and the rest of the house tidy.
For families with kids or pets, this setup is a game-changer.

Laundry
Connected directly to the mudroom, the laundry room is easy to reach from the main living area.
There’s enough space for side-by-side machines and a folding counter. Laundry day doesn’t feel cramped or hidden away.
Its location near the garage and kitchen means you can keep up with chores without trekking across the house.

Pantry
The walk-in pantry sits just off the kitchen. This is more than a closet—there’s plenty of room for food storage, bulk goods, and small appliances.
If you love to cook or want clutter-free counters, you’ll really value this feature. Everything stays close at hand but out of sight.

Half Bath
Next to the pantry and laundry, there’s a half bath that’s perfectly placed for guests or quick stops.

It’s private enough for comfort and central enough so no one has to wander through the bedroom wing.

I’ve found that these little touches make a big difference whenever you have company.
Garage
When you enter from the garage, you’ll notice just how much space you have. There’s room for two vehicles, plus extra storage for bikes, tools, or even a workshop area.
Direct access to the mudroom means you always have a clean, dry path inside, no matter the weather.

Master Suite
To the right side of the main level, the master suite is set apart for privacy.

The bedroom is generously sized with high ceilings and large windows that let in the morning light.
A wall of sliding doors opens straight to the covered deck, giving you private outdoor access.
With its calm palette and simple furnishings, this feels like a real retreat. You can close the door and truly unwind here.
Master Bathroom
Walk into the master bathroom and you’ll see it balances style and function. A double vanity with twin sinks and a tall storage cabinet keeps things organized.
The tile shower is roomy and filled with natural light from a wide window. Matte black fixtures and modern finishes pull it all together.
It feels like a spa, but it’s fully practical for daily use.

Master Walk-In Closets
There are actually two walk-in closets in the master suite, giving you space to keep wardrobes separate.
I think this setup is perfect if you want extra room for shoes, seasonal clothes, or just a more organized start to your day.
Everything stays tucked away yet easily accessible.

Staircase to Lower Level
The staircase just off the foyer leads down to a lower level that opens up all sorts of possibilities. I like how open this transition feels—it never feels boxed in, and moving between floors is simple.

Basement Family Room
At the bottom of the stairs, you’ll arrive in the main basement family room—a flexible space that works as a second living area, game room, or media center.
The generous size lets you set up lounge seating, a play zone, or even a pool table.
This is a true bonus room, ready to adapt to whatever you need.

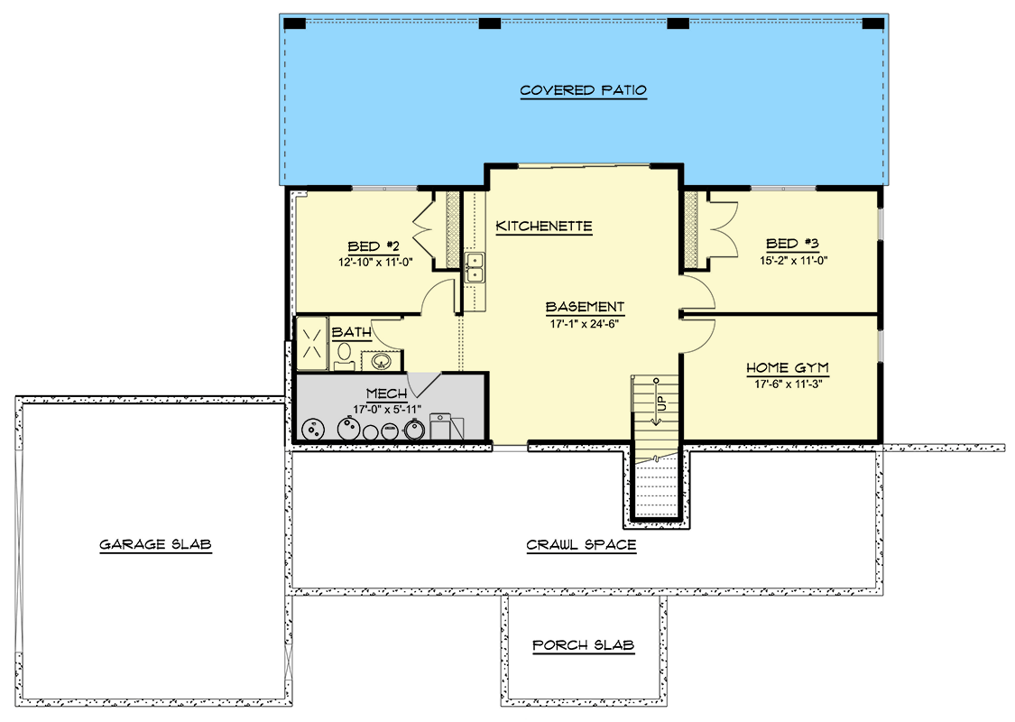
Kitchenette
Along the back wall of the basement, you’ll find a full kitchenette with a sink and plenty of storage.
This isn’t just a spot for snacks; there’s enough space for real cooking or mixing up drinks for movie night.
It’s perfect for guests, teenagers, or anyone wanting a little independence. You won’t have to head upstairs every time you need something.

Bedroom 2
On one side of the basement, Bedroom 2 offers a comfortable and private space, great for guests, older kids, or a home office if you need it. The window brings in natural light, so it never feels like a typical dark basement.

Bedroom 3
Bedroom 3 sits on the other side of the lower level, offering much of the same: good size, easy access to the bathroom, and plenty of privacy for anyone staying there. Both bedrooms are close to the main basement spaces, making it easy for family or friends to join in or slip away for quiet time.

Bath (Lower Level)
A full bathroom serves the lower level bedrooms and shared spaces. With a walk-in tile shower, modern fixtures, and plenty of room to move around, it’s comfortable for both daily routines and guests.
The window here really helps keep the space bright and welcoming.

Mechanical Room
Near the bathroom, you’ll find the mechanical room with the home’s core systems. It’s easy to access if you need to check the furnace or water heater, but it stays out of the way so it never intrudes on your living space.

Home Gym
One of my favorite things about the basement is the dedicated home gym. There’s enough room for real equipment, stretching, weights, or even a treadmill.
Light from the nearby patio doors means you won’t be working out in a dark corner.
I think this feature makes it so much easier to stick to your daily routines.

Covered Patio
Through the sliding doors at the back of the basement, you step out to a covered patio that matches the deck above.
There’s space for outdoor seating, a grill, or a hot tub. Sheltered from the weather, it works for everything from morning yoga to evening get-togethers.
You get the mountain air and views without any of the exposure.

Garage Slab, Crawl Space, Porch Slab
While more functional than flashy, these areas round out the lower level. The garage slab keeps things level and dry.
The crawl space allows for easy maintenance access, and the porch slab helps anchor the home so it feels solid and connected to the land.
Every level and room in this home has a purpose, with space for gathering together, relaxing on your own, and everything in between. As you move through busy days or host friends for the weekend, you’ll always have room to breathe—and plenty of space to grow.

Interested in a modified version of this plan? Click the link to below to get it from the architects and request modifications.
