
When you first see this home, it’s easy to picture yourself pulling up the drive and immediately feeling a sense of arrival.
The grand, Neoclassical-inspired façade, tall columns, and dramatic staircase leading to the entry all hint at the scale inside.
With 6,076 square feet spread across multiple expansive floors, this home offers an impressive mix of formal rooms, casual hangouts, quiet retreats, and practical amenities.
You’ll love how everything is tied together with symmetry and classic tradition. Take a look…
Specifications:
- 6,076 Heated S.F.
- 4-6 Beds
- 5.5 Baths
- 2 Stories
- 3 Cars
The Floor Plans:



Foyer
As you enter through the wide double doors, the foyer welcomes you with a sense of grandeur.

Light pours in from tall windows, reflecting off creamy marble floors bordered in black. The open space features a sculptural table beneath a sparkling chandelier.

There’s plenty of room for guests, coats, and great first impressions. If you appreciate a dramatic entry, this foyer definitely delivers.


Open sightlines lead into the living spaces, and an impressive curved staircase stands just ahead.

Grand Room
Off the foyer on one side, you’ll find the grand room. Its double-height ceiling, oversized windows, and elegant columns make this living area feel open and important.
A classic fireplace anchors the space, surrounded by cozy seating. While the room feels formal, the soft gold and white color palette keeps it comfortable.
I can imagine hosting big family holidays or formal gatherings here, since there’s enough space for everyone to relax.

Dining Room
Directly opposite the grand room is the dining room. Tall windows and high ceilings fill the space with natural light.

A chandelier hangs above the table, and there’s more than enough elbow room for a crowd.

I think the dining room strikes a nice balance: it connects to the rest of the home but still feels intimate, thanks to its location off the main flow.
It’s perfect for lingering over dinner with friends or hosting lively celebrations.
Gallery
Moving deeper from the foyer, you’ll find the gallery. This wide corridor extends the length of the main level and acts as the home’s backbone, linking formal and casual areas.
The gallery is more than just a hallway. There’s enough space to display art or family photos, and it leads you naturally toward both the master suite and the relaxed living spaces at the back of the house.

Family Room
Head down the gallery and you’ll reach the family room, which serves as the heart of everyday life.

Tall windows and French doors overlook the deck and backyard, filling the room with sunlight.

The ceiling rises above a cozy seating area and a fireplace with a mounted TV.


I can picture movie nights or lazy Sundays here. The family room connects openly to the kitchen, making it easy for parents to multitask or for anyone to keep the conversation going while meals are prepared.

Kitchen
The kitchen is spacious and circles around a large island with seating for four. Creamy cabinets, granite counters, and warm orange walls make the space inviting.

There’s no shortage of counter space. Pendant lights keep the area bright, and the open plan allows for easy movement from cooking to entertaining.


The kitchen also connects directly to the morning room, turning breakfast into a special event surrounded by windows and daylight.
Morning Room
The morning room sits in a sunny corner off the kitchen. With big windows and easy access to the patio or backyard, this spot is perfect for casual meals, homework, or enjoying a quiet cup of coffee.
The cheerful atmosphere makes it an ideal landing place for the whole family.

Sitting Room
Just past the gallery is a more intimate sitting room. It acts as a buffer between the master suite and the public spaces, offering a place to unwind, read, or have a private conversation.
The sitting room opens out onto the deck, seamlessly connecting indoor and outdoor living. It’s easy to step outside for fresh air or to enjoy the morning sunlight.

Master Suite
The master suite takes up a private wing on the main level. When you walk in, you’ll notice the generous floor space, high tray ceiling, and large windows overlooking the backyard.

There’s plenty of room for a king bed, sitting area, and more. I really appreciate how this suite feels set apart from the busier parts of the house.


You get a true sense of retreat, which is rare in homes this size.






His and Her Closets
Within the master suite, you’ll find two separate walk-in closets. Her closet features built-in shelving and lots of hanging space with plenty of room to move around.
His closet also offers double hanging rods and efficient organization. If you’ve longed for more closet space, I think you’ll love how this setup makes mornings much easier.

His and Her Baths
The master bath divides into two distinct sections. Her bath includes a soaking tub surrounded by marble, a walk-in shower with decorative tile, and plenty of natural light from tall windows.
His bath has its own shower, a separate vanity, and classic finishes. I think this arrangement works especially well for couples who value both privacy and convenience, so there’s no need to share space during the morning rush.

Three-Car Garage and Storage
On the far side of the main level, the three-car garage sits just off the kitchen, making grocery trips easy.
There’s also a dedicated storage room for seasonal décor, sports gear, or anything else you want nearby yet out of sight.
These practical touches make daily routines feel effortless.

Deck
The deck spans the back of the house and can be reached from several rooms.
This space is large enough for a dining set, lounge chairs, and even a grill station.
You can host summer parties or enjoy a quiet evening outdoors, all while staying closely connected to the main living areas.

Upstairs Balcony and Hallway
Take the sweeping staircase from the foyer to the next level and pause at the open balcony.
Here, you can look down into both the grand room and foyer, enjoying the sense of openness.
The upstairs hallway is wide, with beautiful floors and crisp trim. I can see this space being used as a gallery for family photos or favorite artwork.

Upstairs Bedrooms
The upper floor features three generously sized bedrooms. Each one offers its own walk-in closet, and all are bright and inviting thanks to large windows and well-planned layouts.
The bedrooms are spread out for privacy, making this level perfect for children, teens, or long-term guests.

Upstairs Bathrooms
Two full bathrooms serve the upper floor. One is attached to a bedroom, creating a mini-suite, while the other is shared but still spacious and well-finished.
You won’t have to worry about fighting over mirrors in the morning, which I know any family will appreciate.

Study
A study is located in the corner of the upper floor, away from the main flow of traffic.

If you work from home or need a quiet spot for reading and paperwork, this room fits the bill.
There’s plenty of space for a large desk and bookshelves, so you get practicality without sacrificing style.
Billiard Room
At the back of the upper floor sits a dedicated billiard room. It’s perfect for game nights or casual entertaining, with space for a pool table and comfortable seating.
I like that it’s set apart from the bedrooms, so late-night games won’t bother anyone trying to sleep.

Open to Below Spaces
Some areas on this level overlook the rooms below. The view into the family room connects the floors and lets light flow throughout the house.
This feature enhances the sense of openness and keeps the upper floor feeling bright and welcoming.

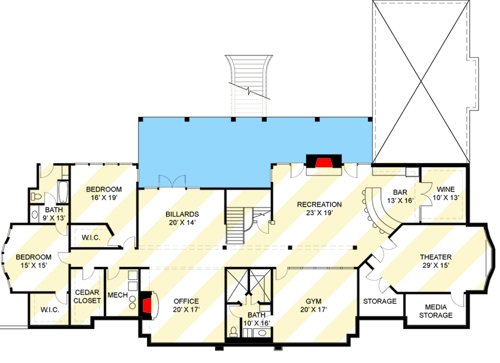
Lower Level Recreation
Head downstairs and you’ll find a whole new layer of living space. The lower level is all about fun and flexibility, starting with a recreation room at its heart.
This space is large enough for a ping pong table, gaming setup, or just a comfortable hangout zone.

Lower Level Billiards
There’s a second billiard room downstairs, making it easy to entertain a crowd. Use it for pool, cards, or casual gatherings.
The space is inviting and set apart from the quieter bedroom areas.

Bar and Wine Cellar
If you love to host, the curved bar is ready for your next party, complete with plenty of seating and a dedicated wine room next door. The climate-controlled wine cellar lets you store or display your favorite bottles with ease.

Theater and Media Storage
Movie fans will love the dedicated theater room, which is generously sized for tiered seating.
There’s also a media storage room to keep all your tech and collections organized. This home really covers all the bases for entertainment.

Gym
The home gym on this level makes it easy to stay active. It’s big enough for cardio, weights, or yoga, and since it’s separated from the main living areas, you can work out in peace.

Office
A second office space is also located on the lower level. This spot is ideal if you need more than one workspace, or if you want a private area away from the main level.
I notice that the lower level’s layout offers great flexibility for multigenerational living or just spreading out as needed.

Bedrooms and Bath
Two more bedrooms are found on the lower level, perfect for guests, older kids, or in-laws. Each bedroom has a walk-in closet and easy access to a full bath, letting visitors stay comfortably for days or weeks without feeling like they’re in the way.

Cedar Closet and Mechanical Room
Storage won’t be a concern in this home. The cedar closet downstairs is ideal for off-season clothes or specialty items, and the mechanical room keeps all the home’s systems out of sight yet easy to reach for maintenance.

Laundry and Utility
While not labeled on the main plans, a home of this scale always includes laundry and utility spaces designed for convenience. I’ve noticed that these areas, often with sunny windows and extra storage, keep the household running smoothly without intruding on the main living zones.
Every level of this home brings something unique, whether you want a quiet retreat, lively entertaining spaces, or practical places to get things done.
With so many well-planned rooms and smooth connections between them, I think you’ll find this house adapts easily to any stage of life or style of living.
Picture your own routines and memorable moments unfolding here, from grand celebrations to peaceful mornings overlooking the backyard.

Interested in a modified version of this plan? Click the link to below to get it from the architects and request modifications.
