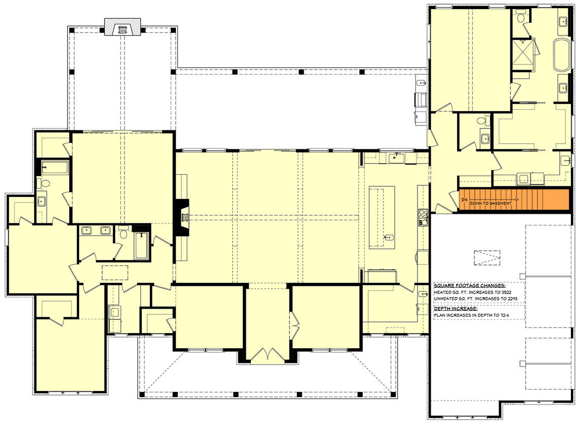
Grand Modern Farmhouse House Plan with 5 Beds, 3-Car Garage, Outdoor Kitchen (Floor Plan)

A modern farmhouse welcomes you with its wide, friendly porch, crisp white brick, and striking black windows.
What really stands out about this home is how the space opens up once you enter.
With 3,500 square feet and 5 bedrooms spread across several wings, the layout feels expansive while still thoughtfully connected.
You’ll find inviting living spaces, private retreats, and plenty of bonus nooks that make everyday life easier.
Let’s walk through each space together and see how this home blends comfort and style throughout.
Specifications:
- 3,500 Heated S.F.
- 5 Beds
- 3.5 Baths
- 1 Stories
- 3 Cars
The Floor Plans:


Front Porch
Right away, you’re greeted by a deep front porch that stretches across the home’s facade.
Supported by chunky wood columns and topped with a metal awning, this outdoor room invites you to stay awhile.
The space easily fits a set of rocking chairs or a porch swing. I think the wide steps leading up are especially welcoming, and the mix of brick, wood, and metal gives the porch a fresh vibe.
This is more than just curb appeal; you’ll find yourself relaxing here with coffee or greeting guests on sunny afternoons.

Foyer
As you enter through the glass front door, the foyer feels open and airy. The herringbone-patterned brick floor beneath your feet brings a touch of classic style, while a simple wood console table adds warmth.

You immediately notice the natural light streaming in from the glass panels and the clear view straight through to the living area.
There’s a coat closet nearby, making it easy to keep things tidy as you come and go.
Office
Located just off the foyer, the private office sits at the front of the house—perfect for remote work or homework.
A large window looks out onto the porch, so you get plenty of natural light.
The room is just the right size for a desk, bookshelves, and a comfortable chair.
If you don’t need a dedicated workspace, this spot could easily become a quiet reading room.

Bedroom 2
On the opposite side of the foyer, Bedroom 2 offers flexibility. It can serve as a guest room, playroom, or a second office.
There’s a closet for storage and a window overlooking the front porch. I appreciate how this room is set apart from the main living areas, giving guests or family members extra privacy.

Great Room / Dining
Moving further into the home, you’ll arrive at the great room and dining area, which combine into one open concept space with vaulted ceilings overhead.

Decorative beams add character, and the gas fireplace is flanked by built-in shelving for books, art, or family photos.

Large windows and sliding doors line the back wall, filling the room with sunlight and offering a view out to the porch and yard.
The dining area fits a long table, ideal for family gatherings or holiday meals. I really like how this open layout keeps everyone connected, whether you’re watching TV or serving snacks for a crowd.
Kitchen
To the right, the kitchen feels inviting and practical. An oversized island runs down the center, offering extra prep space and doubling as a breakfast bar with seating for five.

Soft gray cabinets, white quartz counters, and a subway tile backsplash keep things bright. There’s plenty of room to move, so even on busy mornings you won’t feel cramped.
The placement of the fridge, oven, and range makes cooking easy. I love the light wood accents and pendant lighting—they add just the right amount of warmth and style.
Pantry
Next to the kitchen, you’ll find a walk-in pantry with deep shelves and a counter area for small appliances or extra storage.
This space lets you keep the kitchen clutter-free, with room for bulk groceries, bakeware, and maybe even a coffee station if you want.
I find features like this make daily life so much easier.

Entry Hall (Owner’s Wing)
Past the kitchen, a secondary entry hall leads toward the owner’s suite. This area includes built-in lockers so you have a spot for backpacks, shoes, and jackets, right off the garage.
I think this is especially helpful for families with kids or pets because it keeps muddy gear out of the main living spaces.

Laundry 1
Connected to this entry is the main laundry room. There’s space for a washer and dryer, plus folding counters, cabinets, and a utility sink.
The location helps make chores more convenient, especially since you can come in straight from the garage after a messy walk or sports practice.

Garage
The oversized garage is just off the laundry and entry. With two large bays, you can park vehicles and still have space for bikes, tools, or a workbench.
Attic access here gives you an easy spot to store off-season items. Direct access to the house means you can bring in groceries or head out in the morning without worrying about the weather.

Master Bedroom
Following the entry hall, you’ll reach the master suite. This bedroom is set apart for privacy and feels especially open thanks to vaulted ceilings and tall windows on each side of the bed.


Soft wood tones and a muted accent wall create a soothing atmosphere. There’s enough space for a seating bench or a cozy reading chair, making it a restful retreat at the end of your day.
Master Bathroom
The master bath features a long, open layout with two large vanities on opposite sides, offering sleek cabinetry and oversized mirrors.
A freestanding soaking tub sits in the middle, surrounded by windows for natural light. At the far end, you’ll find a spacious glass walk-in shower with modern fixtures.
I noticed details like marble-look tile, a chic chandelier, and convenient storage throughout. Getting ready here feels both luxurious and practical.

Master Closet
Accessible from the bathroom, the master closet has plenty of space for clothes, shoes, and accessories.
Built-in shelves and hanging rods at different heights help keep everything organized. I find this kind of setup really helps mornings go more smoothly, and there’s even space for a dresser or bench if you want to personalize the room.

Bedroom 3
On the opposite side of the home, a hallway leads to the secondary bedrooms. Bedroom 3 offers a good-sized closet and a window overlooking the side yard.
The proportions are just right for a child’s room or a guest suite, depending on your needs.

Bedroom 4
Next to Bedroom 3 is Bedroom 4, which mirrors its layout and size. It comes with its own closet and easy access to the shared hall bath.
This setup is great for siblings sharing the wing or for guests to settle in comfortably.

Bath 2
Located between Bedroom 3 and Bedroom 4, this shared bathroom has dual sinks, a tub/shower combo, and extra storage.
It’s practical for busy mornings or when you have overnight guests. The finishes keep with the farmhouse style, making the space simple yet stylish.

Bedroom 5 / Game Room
At the end of the secondary bedroom hallway, you’ll find Bedroom 5, labeled as a Game Room.
This is one of the most flexible spaces in the house. The vaulted ceiling and sliding glass doors to the rear porch make it bright and airy.
There’s plenty of room for a pool table, large sectional, or even a home theater.
If you need another bedroom, it easily converts thanks to a spacious closet nearby. I think this is one of the most adaptable spots in the home.

Bath 3
Close to the game room is Bath 3, which has a walk-in shower and single vanity. It’s conveniently placed for easy access from both the bedrooms and the living area, making it practical during parties or busy days.

Laundry 2
In the same wing, you’ll find a second laundry room. This is a welcome bonus, especially for larger households or if you want to keep sports gear and muddy clothes separate from your main laundry.
I like how it’s easily accessible from the bedrooms, too.

Rear Porch (Vaulted)
You can step outside through the great room or game room onto the rear porch.
This covered space features a vaulted ceiling and stretches wide along the back of the house.
There’s a wood-burning fireplace for cool evenings and enough space for outdoor sofas, a dining table, or a grill station.
The design really lets you enjoy indoor and outdoor living, perfect for gatherings or quiet mornings with a book.

Rear Porch (Extended Section)
The porch continues along the back, forming a long, sheltered area that runs almost the full length of the house.
This setup opens up lots of options—imagine lounge chairs for sunbathing, or a play area for kids that stays dry even when it’s raining.
The direct connection to the backyard makes this feel like a true second living room.

Stairs to Basement
Near the kitchen and entry hall, there’s a stairway leading down to the basement. This gives you a glimpse of the extra space available for storage, a gym, or a rec room.
The stairs are placed discreetly, so they don’t interrupt the flow of the main level, but they’re still easy to access.

Connections between Levels
The floor plan does a great job of keeping the private and public zones separate while making it easy to move between them.
Bedrooms are grouped in two wings for privacy, with shared bathrooms that help keep routines running smoothly.
The main living areas stay centralized and open, always close to the outdoor spaces. The basement stairway is subtly integrated, giving you flexibility to add more living space down the line without cluttering the main floor.

Attic Access
You’ll find attic access in both the garage and the back hallway. These spots are handy for storing holiday decorations, luggage, or anything else you don’t use often.
I appreciate how you don’t have to go far to find storage, and both access points are right by practical drop zones.

Pantry and Storage
Storage is a big focus throughout the home. The oversized pantry off the kitchen, closets in every bedroom, and built-in lockers by the garage entry mean there’s a place for everything.
I think this makes it so much easier to keep the main living areas tidy and calm, which is especially important in a spacious home like this.

Final Thoughts
Every area in this home feels designed for real life, with room to spread out, clever storage, and flexible spaces for work, play, and relaxation.
The mix of modern farmhouse details and practical layouts means you’ll feel comfortable whether you’re hosting friends or just enjoying family time.
I love how the flow between indoors and out, the distinct bedroom wings, and the thoughtful amenities come together to create a home that’s functional and truly welcoming.

Interested in a modified version of this plan? Click the link to below to get it from the architects and request modifications.
