3-Bed Country Craftsman with Large Rear Deck (Floor Plan)

Stepping up to this home, you immediately sense the mix of comfort and style. The classic porch, with its sturdy columns and creamy siding, feels like an open invitation to relax.
Once inside, the home opens up with surprising scale—wide-open living spaces, unique nooks, and a two-level layout offering room for everything from gatherings to hobbies.
Each floor has its own personality, giving you flexibility whether you’re hosting friends, getting work done, or just unwinding with family.

Specifications:
- 3,391 Heated S. F.
- 3 – 5 Beds
- 3.5 – 4.5 Baths
- 1 Stories
- 3 Cars

The Floor Plans:



Front Porch
Before you even go inside, the front porch sets the mood. It’s large enough to become your favorite outdoor hangout, with its deep overhang and timber detailing.
You can picture a row of rocking chairs or even a swing at one end.
The covered area makes it practical, too.
You’re sheltered on rainy days, and the wide steps create a classic, welcoming touch for guests.

Entry
Stepping through the front door, you land in a spacious entry with a generous ceiling height that makes the space feel airy.
There’s room here for a bench or a slim table.
I like how it opens up sightlines to both the left and right, so you never feel cramped.
Right from here, you get a clear sense of the main level’s flow, making it easy to see most of the house at a glance.

Bedroom 3
Just off the entry, you’ll find Bedroom 3. This space sits in a quiet spot, making it work well as a guest suite or even a study if you don’t need the extra sleeping space.
The window placement offers great natural light, and with a full closet, this room can serve a variety of needs—kids, guests, or even a quiet hobby room.
I think this spot is especially useful for families whose needs change over time.

Mud Room
Connected to Bedroom 3 and also accessible from the garage hallway, the mud room is a practical space with a built-in bench and plenty of storage.
If you come in from the carport or the two-car garage, this is where muddy boots and backpacks end up.
The transition from here into the main living areas works smoothly, which keeps clutter out of sight from the entry.

Garage and Carport
The home offers a one-car garage and a two-car garage, side by side, with a covered carport off the left wing.
This layout gives you a lot of flexibility.
There’s plenty of space for cars, bikes, or even a workshop. The attached concrete pad behind the carport is a great spot to shoot hoops or set up a workbench.
You can get to the mud room directly from here, which I find especially convenient for unloading groceries or sports gear.

Bedroom 2
Moving toward the left side of the main floor, Bedroom 2 is surprisingly large, with high ceilings that keep the room feeling bright.
There’s a full bathroom just steps away, making this ideal for older kids or longer-term guests.
The window overlooks the side yard, giving you privacy along with good light.

Office
The office sits between Bedroom 2 and the kitchen area. It isn’t set off in a far corner, so it feels accessible but still private enough for Zoom calls or focused work.
This space gets great light from the side windows and is large enough to fit a full desk setup, shelving, or a comfy chair.
For anyone working from home or needing a spot to manage household tasks, I think this is a real bonus.

Main Hallway
The wide hallway running along the middle of the home connects everything—bedrooms, mud room, office, and living spaces.
The ceilings stay high throughout, reinforcing a sense of openness. I think this layout is straightforward; you won’t have anyone wandering lost, and the flow encourages easy movement between rooms.

Kitchen
The kitchen stands out with a big, central island and a walk-in pantry that’s more spacious than you’d expect.
The working triangle feels efficient, so prepping meals here would be smooth.
I noticed how the island could easily seat four, making it the main hub for daily life.
There’s plenty of countertop space, great for baking or setting out a buffet when you’re entertaining.
The pantry is a walk-in dream, with room for everything from bulk groceries to small appliances.

Dining Room
The dining room sits just beyond the kitchen, defined yet open. It’s set up to handle both formal dinners and casual breakfasts.
The space stretches long enough for a big table, and you get a view straight out to the back deck.
With the wide doorway, the dining area connects easily to both kitchen and great room.
Holiday meals, game nights, or quick homework sessions all feel natural in this spot.

Pantry
Located just behind the kitchen, the pantry is a quiet luxury that makes a big difference day to day.
No more cramming food into small cupboards—here, you can organize everything from cereal to slow cookers.
Being close to both the kitchen and the mud room keeps your daily routines efficient.

Great Room
Step into the great room, and the whole house seems to open up. Vaulted ceilings soar overhead, and the fireplace anchors the space, inviting cozy evenings.
Windows stretch along the back wall, bringing in sunlight and views of the covered rear deck.
I really appreciate how this room balances grandeur and comfort.
You could host a crowd or curl up with a book by the fire.

Kitchen-to-Great Room Connection
One thing I like about this design is how smoothly the kitchen flows into the great room.
There’s enough separation to keep noise down, but you’re still part of the activity whether you’re cooking or relaxing.
This open concept makes entertaining simple—no one gets left out, and you can keep an eye on everything at once.

Master Bedroom
Set apart on the right side of the house, the master bedroom is a genuine retreat.
Double doors give it a sense of arrival, and the ceiling height adds drama without feeling overwhelming.
There’s enough wall space for a king bed, seating area, or even a reading nook by the window.
It’s private, too, far from the more active rooms, so you can really unwind here.

Master Bath
Entering the master bath feels like stepping into a spa. There’s a long double vanity, a soaking tub with a view, and a walk-in shower with room to spare.
The separate his and hers walk-in closets flank the entry, providing tons of storage and making busy mornings easier.
Each space within the bath feels thoughtfully arranged, so you have privacy, light, and easy access.

Hers and His Closets
Directly off the master bath, the two separate walk-in closets really stand out. You get dedicated storage for each person, so there’s no fighting over shelf space. I find this setup to be a luxury that quickly becomes essential—everything stays organized and within reach.

Covered and Open Rear Decks
From the great room and master bedroom, you can step onto an expansive rear deck that runs almost the full width of the house.
Part of it is covered, part open, so you can enjoy sun or shade as you like.
The exposed beams and sturdy railings add to the home’s inviting feel, and you get plenty of space for outdoor dining or relaxing with a coffee.
The smooth transition from inside to outside makes it easy to host summer cookouts or simply enjoy quiet mornings overlooking the backyard.

Partially Covered Decks
Both ends of the rear deck have partially covered areas, which I think gives you great flexibility depending on the weather.
You can set up lounge furniture on one side and a dining table on the other.
These covered spots are also perfect for keeping potted plants or setting up a hammock, protected from direct rain or harsh sun.

Staircase to Lower Level
The staircase is conveniently placed near the master suite corridor, making it easy to head down to the lower level.
This is where the home reveals its second personality, with space for play, creativity, and even extra bedrooms if you need them.

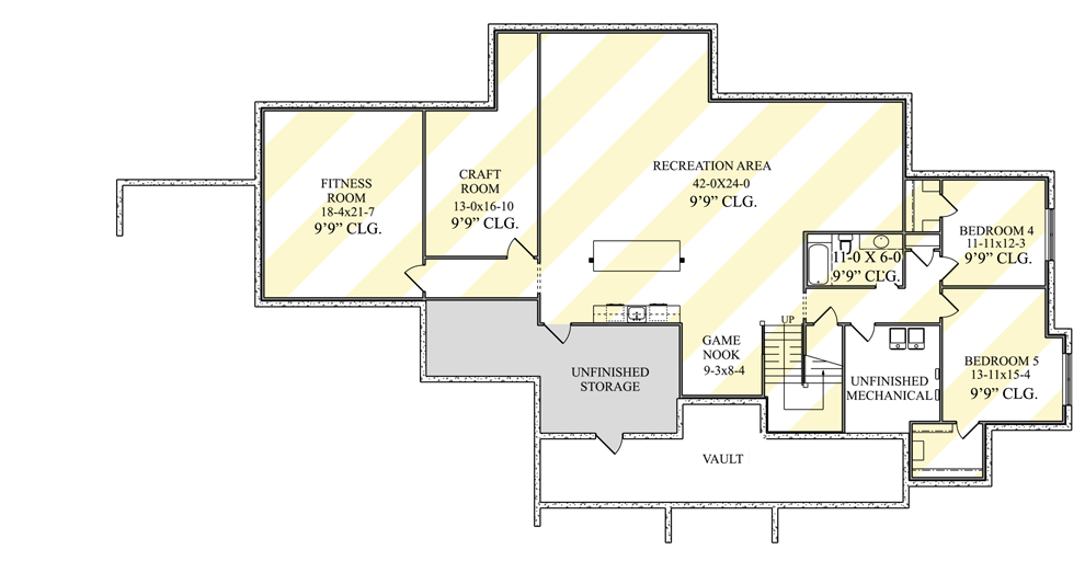
Recreation Area
The lower level opens up with a huge recreation area. This is the spot for a pool table, home theater, or maybe just a giant sectional sofa for movie nights.
There’s flexibility to shape this space however you want—game nights with friends, big family gatherings, or even a birthday party with kids running everywhere.
The room feels light and open, thanks to the generous ceilings, so nothing feels like a basement.

Game Nook
Set just off the recreation room, the game nook is perfect for board games, puzzles, or even a small reading corner.
I like that it’s arranged off to the side.
This creates an intimate spot while keeping the main area open and easy to navigate.
If you have kids or like to keep hobbies visible, this is a clever solution.

Fitness Room
Heading to the left, you find a dedicated fitness room that’s big enough for a treadmill, weights, or even a yoga studio.
The ceiling height keeps things airy, so your workout never feels boxed in. I think this could double as a dance or play space when you have guests.

Hobby Room
Just beside the fitness room, the hobby room is a true bonus. Whether you sew, paint, or need a space to organize wrapping paper and supplies, this room is ready for all kinds of creative projects.
The closet-style door lets you quickly tidy up, and the size makes it easy to set up tables or storage wherever you need them.

Bedroom 4
Back toward the right side of the lower level, Bedroom 4 is a cozy spot for guests or older kids.
It’s close to the main downstairs bathroom and has enough space for a full bed and desk.
The placement gives it a bit of privacy, which is a plus if you have multi-generational living or frequent visitors.

Bedroom 5
Bedroom 5 sits right next to Bedroom 4 and offers similar comforts. Whether you use this for family, guests, or even as a home office, there’s good closet space and enough separation from the main recreation area to keep things quiet when needed.

Downstairs Bath
Serving both Bedroom 4 and Bedroom 5, the downstairs bath offers a full tub and shower, making it easy for guests or teens to have their own space.
It’s placed between the bedrooms for maximum privacy and convenience.

Unfinished Storage
Off the recreation area, there’s a large unfinished storage space. This is where you stash holiday decorations, camping gear, or all the things that don’t need to be on display.
The mechanical room is right next door, keeping utilities out of living areas and making service calls hassle-free.
Now, with every room explored, you can see how this home stretches to fit all your routines.
From lively gatherings in open spaces to peaceful corners for quiet time, every area feels like it has its own purpose.
Whether you’re coming home from work, inviting friends over, or just kicking back on the porch, this layout offers a place for every part of your day.

Interested in a modified version of this plan? Click the link to below to get it from the architects and request modifications.
