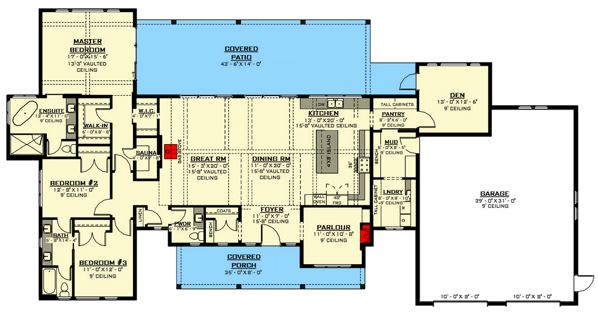
3-Bed Mountain Ranch Plan with Multiple Gathering Spaces (Floor Plan)

You don’t come across a home like this every day. From the first glance, that classic farmhouse porch and those crisp, modern lines create a welcoming mood before you even walk in.
The exterior’s mix of white siding, rustic wood, and stonework hints at both comfort and style.
Once you’re through the front door, it’s clear this isn’t just a pretty face. Every room feels carefully planned, with open spaces, practical connections, and a few surprises you’ll want to see for yourself.
Specifications:
- 2,695 Heated S.F.
- 3 Beds
- 2.5 Baths
- 1 Stories
- 2 Cars
The Floor Plans:

Covered Porch
Pulling up to the house, you’re greeted by a generous covered porch stretching across the front.
The deep overhang offers protection from rain or sun, making it a real gathering spot.
You can picture a couple of rocking chairs and some potted plants here. It’s wide enough for neighbors to stop and chat or for you to just sit and watch the world go by.
The porch sets a slower pace, welcoming you before you even open the door.

Foyer
Open the front door and you’ll find yourself in the foyer, a space that feels inviting rather than formal.
The nine-foot ceiling creates a sense of openness without sacrificing warmth. There’s a closet off to the side for coats and shoes, which helps keep clutter out of the main living areas.
I think the bench beside the closet is practical—perfect for putting on boots or dropping bags as you come in.
From here, you can see the great room and dining area ahead, giving you a sense of the home’s open flow right away.

Parlour
To your right as you enter is the parlour, a flexible room that can be as formal or relaxed as you like.
The nine-foot ceiling adds to the cozy feel. Maybe you’ll use this as a quiet reading nook, a music room, or a home office.
Since it’s right by the entrance, guests can come in without walking through the rest of the house.
The front-facing window brings in plenty of light, so the space stays bright and welcoming all day.

Great Room
As you head further into the house, the great room really opens up. This space is all about volume and light, thanks to the vaulted ceiling with striking exposed beams.

Oversized windows along the wall draw your eyes to the backyard and beyond. The open layout connects the great room, dining room, and kitchen, making it easy to entertain or just keep an eye on everyone from one central spot.

The fireplace is a natural focal point, especially with its blend of stone and wood.
I can picture everyone gathering here on chilly evenings or curling up with a book in a comfy chair.
The neutral palette and wood floors bring that farmhouse warmth with a modern touch. This room stands out because it feels spacious and connected at the same time, giving you plenty of room to stretch out while keeping everyone together.
Dining Room
The dining room sits right in the middle of the home’s living spaces. It doesn’t feel like an afterthought or a walkway; instead, it’s set alongside a wall of windows with easy access to both the great room and the kitchen.

Sunlight streams in all day, and the view of the backyard would make lingering over family meals extra nice.
There’s enough space for a large table, so you don’t have to limit your guest list during holidays or dinner parties. I love how the open flow lets you stay part of the conversation, no matter if you’re at the table or relaxing nearby.
Kitchen
Just off the dining room, the kitchen makes a real impression. It’s airy, bright, and clearly designed for both daily routines and special occasions.

The vaulted ceiling continues here, adding to the sense of space. There’s plenty of counter space, including a massive island at the center that’s ideal for meal prep, casual dining, or helping kids with homework while you cook.
White cabinets keep the look fresh, while a darker island and stone backsplash add contrast and depth.
Stainless steel appliances and modern fixtures complete the look. Tall cabinets along the walls give you loads of storage, so clutter stays out of sight.
I think this kitchen works just as well for a quick weekday breakfast as it does for a weekend pizza-making session with friends.
Pantry
Conveniently next to the kitchen, the walk-in pantry is a true workhorse. Measuring eight feet wide and six feet deep, it’s more than just a spot for dry goods.
There’s room for small appliances, bulk groceries, and even extra serving pieces. Since it’s right by the kitchen, you don’t have to carry groceries far.
It’s the kind of detail that makes everyday life run smoothly.

Mudroom
Heading toward the back of the home, you’ll find the mudroom—a feature I think every busy household will appreciate.
Located off the kitchen and garage, it’s set up with a bench and plenty of space for boots, bags, and coats.
The mudroom acts as a buffer, keeping messes from reaching the main living spaces. If you’re coming in from the garden, bringing in gear from the garage, or corralling the kids’ sports stuff, this room helps keep everything organized.

Laundry Room
Next to the mudroom is the laundry room, thoughtfully positioned so dirty clothes and muddy shoes never make it through the main living zones.
There’s space for a washer, dryer, and tall cabinets for storage. The layout is practical, giving you enough room to sort, fold, and store everything without feeling crowded.
You can enter the laundry directly from the mudroom, which I think really cuts down on clutter in the rest of the house.

Den
If you go down the hall from the kitchen, you reach the den. This is a quiet spot away from the main action.
With its own door and a window that faces the side yard, it could work as a home office, hobby space, or even a guest room.
The nine-foot ceiling helps it feel open and private. I like that it’s close enough to the kitchen to be convenient, but far enough to offer some real peace and quiet.

Garage
The garage connects right to the mudroom, so unloading groceries or kids is easy. At nearly thirty feet square, it’s roomy enough for two or even three vehicles, plus extra space for bikes, tools, or a workshop area.
High ceilings make it easy to add storage racks. The side door gives convenient access to the yard, which is great for lawn care or quick trips outside.

Powder Room
Near the foyer, there’s a powder room in just the right spot for guests. Measuring six by five feet, it’s not huge, but it offers enough privacy thanks to its location.

It’s close to the main living areas, but far enough from the kitchen and dining spaces to be discreet.


I appreciate that visitors or kids can use it without interrupting the flow of daily life.
Bedroom #2
Now, let’s look at the private wing of the house. Bedroom #2 sits just off the hallway, away from the main living spaces for some peace and quiet.
It has its own closet and is conveniently near the shared bath. The window keeps it bright, and the nine-foot ceiling helps it feel open.
There’s enough space for a bed, desk, or reading chair—ideal for teens or guests.

Bath
Serving Bedrooms #2 and #3, the hall bath is compact but efficient. You’ll find a full tub and shower, plus a wide vanity for busy mornings.
I think its location near both bedrooms and the hallway is a smart detail, making the morning routine smooth.
Natural light from the window keeps things cheerful, and the layout helps traffic move easily.

Bedroom #3
Just across the hall is Bedroom #3. It’s slightly smaller but still comfortable, making it a good fit for a child, home office, or hobby room.
The closet is roomy enough for clothes and toys, and the nine-foot ceiling gives the space a larger feel.
There’s plenty of wall space for shelves or art, so you can really make it your own.

Sauna
Here’s something special: a sauna right in your own home. It’s located near the master suite and the main bedroom hall, bringing a real spa vibe to your daily life.
You might use it after a workout, for relaxing at the end of the day, or just as a little treat.
I think having a sauna really sets this house apart.

Walk-In Closet
Connected to the master suite, the walk-in closet provides plenty of hanging space and shelving.
At six by eight feet, it’s roomy enough for clothes, shoes, and accessories without feeling crowded.
Its location makes it easy to move from the bedroom to the ensuite, so your morning routine flows smoothly.

Master Bedroom
The master bedroom is tucked quietly in the back corner of the house, away from the main living zones.

Vaulted ceilings with exposed beams and a wall of oversized windows give the room a grand yet cozy feel.

Natural light fills the space during the day, and the backyard views are a real treat in the morning.

Sliding glass doors lead right to the covered patio, so you can step outside with your coffee or unwind at sunset.
It’s a private retreat that still feels connected to the outdoors.
Ensuite
Beyond the walk-in closet, the ensuite bath feels just as luxurious as the bedroom. A freestanding tub sits by a large window, perfect for soaking in sunlight and the view.
The walk-in shower is finished in sleek black marble, and the double vanity gives each partner plenty of space.
Geometric tiles and modern lighting add a bit of drama. I think the privacy, space, and natural light make this bathroom feel like a true spa.

Covered Patio
Step through the sliding doors from the master or main living area, and you’re on the covered patio that stretches across almost the whole back of the house.

There’s a spot for dining, another for relaxing with friends, plus plenty of room for kids or pets to play safely.

The wood beams and chunky posts frame the view, and the ceiling keeps you comfortable in any weather.
The patio really acts as a second living room, connecting the indoor and outdoor spaces.
I can easily picture summer meals, quiet mornings, or lively gatherings with everyone moving from house to yard.
This home is more than just a collection of rooms. Every detail—from storage to open sightlines—shows a thoughtful approach to modern living.
It balances comfort, style, and the needs of daily life. As you explore each space, it’s easy to imagine making memories here, whether you’re hosting a crowd or enjoying a quiet evening at home.
Interested in a modified version of this plan? Click the link to below to get it from the architects and request modifications.
