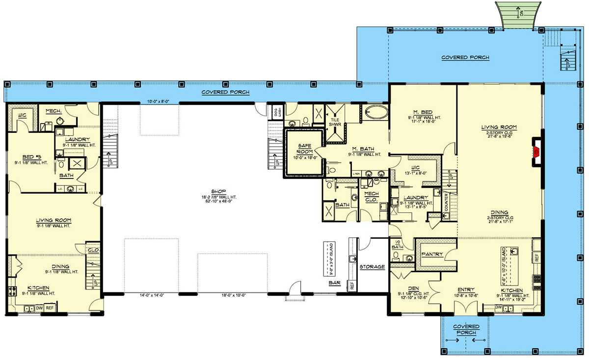
4-Bed Barndominium House Plan with Attached 2-Bed Apartment – 7781 Sq Ft (Floor Plan)

There’s something special about a home that welcomes you with its impressive size and genuine warmth.
This barndominium-inspired, New American mountain residence isn’t just large—it’s designed so every part of your life and personality fits comfortably.
With 7,781 square feet spread across two expansive levels, you get the kind of attention to detail that transforms a house into a long-term retreat.
From sprawling covered porches to dramatic entertaining spaces and private bedroom wings, every area is laid out for big living while keeping everyone connected.
Let’s start at the front door and walk through how this floor plan comes together, one inviting space at a time.
Specifications:
- 7,781 Heated S.F.
- 6 Beds
- 2 Baths
- 1 Stories
- 3 Cars
The Floor Plans:


Entry
Stepping up from the wide covered porch, you immediately feel the openness this home offers.
The entry is roomy, perfect for a console table or a bench. What makes it memorable is how it introduces the rest of the house.
You’re greeted with a direct view into the dining and living areas, with rooms branching off in multiple directions.
The mood is welcoming and relaxed, hinting that this home is meant to be enjoyed every day.

Den
Just off the entry, you’ll find a den set to one side. Its location near the front door makes it ideal for a home office or a quiet library.
I think the placement gives you a bit of separation from the main living areas, so you can pop in for work calls or just relax.
The space feels formal enough for focused tasks, but it’s still easy to access.

Kitchen (Main Level)
Moving forward, the kitchen grabs your attention with its bright, open design, perfect for both cooking and gathering.

The island seats four, so it becomes a favorite spot for morning breakfasts or casual chats.

I really like how the dark cabinetry and gold hardware set off the lighter counters, giving the kitchen a style that’s both classic and current.

The kitchen flows right into the dining area, and with doors leading to the porch, you’re always close to the outdoors.


It’s a kitchen designed for cooking with company, offering all the space you need to spread out, prep, and serve.
Pantry
Right behind the kitchen, the pantry provides deep storage. It’s great for keeping everything from baking supplies to extra snacks organized.
I appreciate how it hides clutter but remains easy to reach. If you love to plan meals or have a busy household, the generous shelving here is a huge advantage.

Dining Room (Main Level)
The dining area flows directly from the kitchen and features double-story ceilings and a wall of windows that fill the room with natural light.
You can host everything from holiday dinners to casual pizza nights, thanks to plenty of space for a large table and extra chairs.
The open layout connecting the dining room to the great room keeps everyone included in the conversation, no matter what’s going on.

Great Room/Living Room (Main Level)
Step down into the great room and you’ll notice how the soaring ceilings and exposed wood beams highlight the oversized fireplace.

Sunlight streams in through tall windows, making the space feel bright and welcoming. You can picture curling up on a sofa or gathering friends for movie night.


The flow between the kitchen, dining, and living areas means you’re always connected. I think this openness is what really gives the home its modern farmhouse vibe—everything works together and you’re never far from the people you care about.





Bar
Between the great room and the storage area, there’s a dedicated bar. This area brings a fun energy to the house.
It’s set up perfectly for cocktails, game nights, or even a coffee station, and its location makes it easy to serve guests while staying part of the conversation.

Storage (Main Level)
A generous storage room sits just around the corner from the bar. It’s much more than a basic closet—think of it as the go-to spot for off-season décor, sports gear, or anything else you want out of sight but nearby.
I like that it’s handy without disrupting the daily flow of the home.

Powder Room/Half Bath (Main Level)
Placed near the main living and kitchen areas, the half bath is ideal for guests. There’s no need for anyone to walk through private spaces, which makes it especially useful during gatherings.

Mechanical Closet
Next to the powder room is a mechanical closet. It may not be glamorous, but it’s essential for housing the home’s major systems.
Everything is kept out of sight but stays easy to reach for maintenance.

Master Suite
Down a private hallway, you’ll arrive at the master suite. The bedroom is spacious, with room for a king bed, reading nook, or even a sofa.


Large windows fill the space with natural light and offer calming views. There’s a real sense of retreat here, and I think the privacy is spot on.

Master Bath
The master bath is just as impressive, featuring dual vanities, a soaking tub, a large walk-in shower, and crisp white cabinetry for a spa-like atmosphere. Built-in storage keeps clutter hidden, and the layout makes busy mornings much smoother.

Master Suite Walk-in Closet
Connected to the bath, the L-shaped walk-in closet is designed for easy organization, with plenty of shelving and hanging space.
Soft lighting and subtle wallpaper add a bit of flair. Getting ready here each morning would be something to look forward to.

Bedroom #1 (Main Level)
Adjacent to the master suite, Bedroom #1 includes its own walk-in closet and direct access to a full bath.
This room works well for a nursery, guest room, or a second office. Its spot right off the main hall offers a mix of privacy and convenience.

Bath (Main Level, near Bedroom #1)
This full bath serves Bedroom #1 and features both a tub and a shower, along with ample vanity space. It’s close enough to the common areas to work as an extra guest bath during larger gatherings.

Laundry Room (Main Level, near Master Suite)
Down the hall, the laundry room is generous in size, with counter space and storage.
Its location near the bedrooms makes laundry easier. If you have a busy family, you’ll find yourself grateful for this setup.

Safe Room
Located near the center of the main level, the safe room offers added security. You can use it for storing valuables or as a storm shelter.
Its placement close to the master suite is practical and reassuring.

Second Laundry Room (Main Level, Left Wing)
On the other side of the main floor, there’s a second laundry room. I think this is brilliant for multigenerational living or frequent guests—everyone can handle laundry without crossing the whole house.

Bedroom #5 (Main Level, Left Wing)
Set in the left wing, Bedroom #5 features its own walk-in closet. It makes a great guest suite or a private retreat for a teen, especially since it sits apart from the main living areas.

Bath (Main Level, Left Wing)
This full bath serves Bedroom #5 and the nearby living spaces. It’s handy for guests and helps prevent morning traffic jams.

Living Room (Left Wing)
The left wing has its own living room, a spacious spot for relaxing. If you have extended family or want a quieter area away from the great room, this works perfectly.
I can see it as a kids’ play area or a cozy spot for movie nights.

Dining Room (Left Wing)
Right next to the living room, the dining area in the left wing is flexible for different needs. It could be your everyday breakfast table or even a space for homeschooling.

Kitchen (Left Wing)
A full kitchen is also in the left wing, complete with modern appliances and an efficient layout. This area is perfect for multi-generational families, long-term guests, or anyone who wants a little independence from the main kitchen.

Mechanical Room (Left Wing)
Between the laundry room and bedroom, the mechanical room keeps everything running smoothly. It’s tucked out of the way, but it’s an important part of making sure this side of the home functions well.

Shop
One highlight of this property is the massive shop space at the rear of the main level.
With nearly 63 feet of depth, it’s ready for any project you have in mind: classic cars, woodworking, storage for boats or RVs, or even a home gym.
This shop connects to both the main living area and the left wing, so you stay connected to the rest of the house while working on hobbies.

Covered Porch (Main Level)
The covered porch wraps around much of the first floor and acts as an outdoor living room.
I love the idea of setting up rocking chairs, a dining table, or a swing to enjoy mountain views and fresh air.
The porch also connects the two wings of the house, tying everything together into one unified retreat.

Stairs to Upper Level
Heading up the staircase, you leave behind the busy main floor and arrive at the quieter upper level. The landing opens to a wide loft, where you can look down into the great room below.

Loft (Upper Level)
The loft isn’t just a hallway. With cathedral ceilings and open railings, it serves as a family lounge, playroom, or open office space.
It sits at the center of the upper floor, connecting all the bedrooms and overlooking the main living area.

Balcony
Step out onto the interior balcony to really appreciate the home’s dramatic scale. This is a great spot to check in on gatherings below or simply enjoy the natural light coming through the two-story windows.

Bedroom #2 (Upper Level)
At the front of the upper floor, Bedroom #2 features a walk-in closet and lots of space.
It’s quiet and ideal for older kids, guests, or extended family. The location provides privacy but keeps you close to everything.

Bedroom #3 (Upper Level)
Bedroom #3 sits right next door and mirrors Bedroom #2’s layout, also with a walk-in closet and plenty of room. I could see siblings loving this corner of the house, or you might use it as a guest suite.

Bath (Upper Level, near Bedrooms #2 & #3)
A shared full bath for Bedrooms #2 and #3 is positioned between them, with enough space for busy mornings. The double access makes it easy for everyone to get ready without walking the full length of the floor.

Bedroom #4 (Upper Level)
Farther down the hall, Bedroom #4 is nearly 37 feet long and comes with its own walk-in closet.
This space could be a playroom, art studio, or a shared bedroom for younger siblings.
I think the size here gives you plenty of options as your family grows.

Bath (Upper Level, near Bedroom #4)
There’s another full bath near Bedroom #4, so convenience is always within reach. It’s helpful for guests or larger families trying to get out the door in the morning.

Bedroom #6 (Upper Level, Left Wing)
On the far left, Bedroom #6 includes a walk-in closet and sits close to a half bath. The separation from the main house gives older teens or long-term guests extra privacy.

Half Bath (Upper Level, Left Wing)
This half bath serves Bedroom #6 and is a practical feature, especially with so much living space on this level.

Storage (Upper Level, Left Wing)
The upper left wing finishes out with a huge storage room. If you have seasonal decorations, outdoor gear, or family keepsakes, you’ll never run out of room or have to squeeze things into closets.

Covered Deck (Upper Level)
Step outside from the loft onto the covered deck. With cathedral ceilings and space for outdoor furniture, it’s perfect for morning coffee, evening drinks, or just relaxing in the mountain air.
The double staircase from the backyard up to this deck makes moving between inside and outside easy all year.
This home combines the best of modern farmhouse style with a layout ready for whatever life brings.
There’s room to spread out, spaces to gather, and plenty of cozy spots to call your own.
I think the flexible floor plan means this house can grow with you for years to come.

Interested in a modified version of this plan? Click the link to below to get it from the architects and request modifications.
