4 Bed Modern House Plan with Home Office and Secret Ladder in Bed 2 (Floor Plan)

Stepping up to this home, you’re greeted by those signature clean lines and eye-catching materials that define modern design.
From the striking stone tower to the warm wood canopy over the entry, it’s clear this place is built for both curb appeal and comfort.
Inside, the layout covers three levels. You’ll find a mix of open gathering spaces, private retreats, and versatile bonus rooms, all planned to bring in natural light and make everyday living easier.
Let’s walk through each space and see how everything fits together.
Specifications:
- 3,155 Heated S.F.
- 4-5 Beds
- 3.5-4.5 Baths
- 2 Stories
- 2 Cars
The Floor Plans:



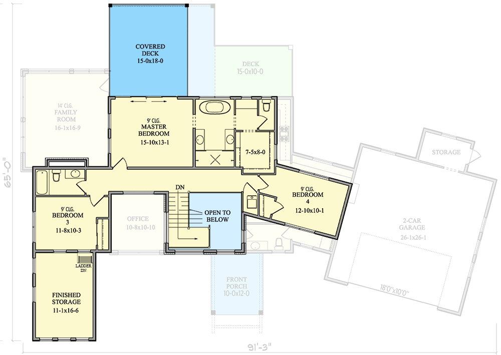
Front Porch
Arriving at the front porch, you’ll notice it’s both spacious and protected, perfect for setting down packages or chatting with neighbors out of the sun.
The overhang keeps things dry on rainy days. The wide path from the circular driveway makes access easy, and those modern finishes set a welcoming tone before you even open the door.

Entry
Once inside, the entry gives you an immediate sense of openness. You can see the main stairwell and get a feel for how the home flows in every direction.
The space feels open, not closed off, and there’s plenty of room to hang coats or drop keys without crowding.

Office
Just off the entry, you’ll find the office tucked behind a wide doorway. Natural light pours in from the front windows, making this spot ideal for working from home or tackling homework.
Because it’s set apart from the main living areas, you can close the door for meetings or focus time.
I think the location works well for anyone who needs a quiet place during a busy day.

Dining
Toward the core of the house, the dining area is open but distinct. There’s enough room for a large table, perfect for everything from weeknight dinners to holiday gatherings.
Its spot between the kitchen and family room makes serving easy, and those big windows brighten every meal.
I like that the dining space is central without feeling crowded by foot traffic.

Kitchen
The kitchen stretches along one wall and features an oversized island. There’s ample counter space for meal prep, and the flow between cooking, serving, and casual eating feels effortless.
Double sinks, plenty of cabinetry, and a walk-in pantry mean you’ll never run short on storage.
The window behind the sink brings in morning light, creating a cheerful spot for that first cup of coffee.

Pantry
The pantry sits just steps from the kitchen and is roomy enough for bulk groceries, small appliances, and more.
Shelves wrap around the walls, so you can organize snacks, dry goods, or even seasonal serving dishes.
With the pantry close by but out of sight, the kitchen stays looking neat, even during busy weekends.

Laundry Mud Room
The laundry and mud room connect directly to the garage, making it a handy spot for busy households.
There’s space for a full washer and dryer setup, plus cubbies or hooks for coats, shoes, and backpacks.
I appreciate how this room acts as a buffer between the outdoors and the interior, helping keep the main living spaces clean and clutter-free.

2-Car Garage
The garage angles off the main house for easy access. It’s large enough for two vehicles, with extra space for bikes, tools, or sports gear.
There’s also a separate storage alcove at the back, so you can tuck away seasonal decorations or yard equipment out of the way.

Storage
Having dedicated storage at the back of the garage is a real bonus. If you’re an avid gardener or just need a spot for luggage, this area handles overflow without taking away from your parking space.

Family Room
The family room stands out with its generous ceiling height and big windows overlooking the backyard.
It’s open to the dining and kitchen areas, but the layout encourages you to settle in and get comfortable.
A modern fireplace adds a cozy touch, perfect for chilly evenings or movie nights.

Bedroom 2
Bedroom 2 sits quietly at one end of the main floor, making it ideal for guests or multigenerational living.
It’s roomy, with a full window and easy access to a nearby bathroom. Separating this bedroom from the others provides guests or family members a little more privacy.

Walk-In Closet (Bedroom 2)
Connected to Bedroom 2, the walk-in closet offers extensive hanging space and shelving. Organizing clothes or storing extra bedding is a breeze here.
I always appreciate when secondary bedrooms get this kind of attention to storage.

Bathroom (Main Level)
Serving Bedroom 2 and guests, this full bath includes both a tub and a separate shower, plus a long vanity with good counter space. The layout is efficient, so multiple people can get ready at once without bumping elbows.

Covered Deck
Moving out back, the covered deck extends the living space outdoors. There’s room for a dining set, lounge chairs, or even a grill.
With protection from sun or rain, this becomes a true three-season extension of the family room, ready for everything from morning coffee to sunset dinners.

Deck
Next to the covered area, the open deck gives you a sunny spot to relax or watch kids play in the yard. It feels like a natural extension of the main living areas, perfect for entertaining or simply unwinding at the end of the day.

Stairs to Upper Level
As you head up the main staircase, the sightlines open up again. The landing overlooks the entry, adding to the home’s airy feel.

Open to Below
At the top of the stairs, you’ll see an open area that visually connects the upper floor to the entry below. This feature brings in extra light and helps the upstairs feel connected while still offering privacy.

Master Bedroom
The master suite is tucked into the rear corner for more quiet and privacy. Windows face the backyard and the covered upper deck, which means you’ll enjoy great natural light morning and evening.
The room feels spacious without being overwhelming, keeping a cozy retreat vibe. I think the placement away from the staircase really enhances the sense of a true getaway.

Master Bath
Attached to the master bedroom, the bath features a modern layout with dual sinks, a walk-in shower, separate soaking tub, and private water closet. It’s designed for both relaxation and efficiency, and the finishes echo the home’s clean, contemporary style.

Bedroom 3
A short hall leads to Bedroom 3, which is sized well for a child, teen, or even a second home office. There’s a large window and just enough wall space for a desk or reading nook.

Finished Storage (Upper Level)
One standout on this floor is the finished storage area near Bedroom 3. You can use this spot for off-season clothes, supplies, or holiday decorations, without ever needing to pull down attic stairs or use basement shelves.

Bathroom (Upper Level)
Central to the upstairs bedrooms, this bathroom includes a tub-shower combo and a good-sized vanity, making it comfortable for daily routines. The location keeps it convenient for both Bedrooms 3 and 4.

Bedroom 4
Bedroom 4 sits near the front of the house, catching plenty of morning sun. The room’s angles give it some extra character, and it’s close to the upstairs bathroom, which is handy for older kids or overnight guests.

Covered Deck (Upper Level)
Upstairs, a second covered deck matches the one below, with views over the backyard and easy access from the master suite. If you love starting your mornings outdoors or want a private spot to unwind, this outdoor space is a great feature.

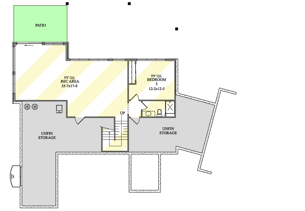
Stairs to Lower Level
When you take the stairs down, you’ll see how the lower level opens up into a whole new living zone.

Rec Area
The rec area spans nearly the full width of the lower level, creating a flexible space for games, workouts, or a home theater.
Thanks to high ceilings and big windows facing the patio, it doesn’t feel like a basement at all.
I think families with active kids or anyone who loves hosting friends will appreciate the flexibility here.

Bedroom 5
Just off the rec area, Bedroom 5 features its own window and a full closet, making it a comfortable spot for guests or an au pair. The adjacent bathroom turns this lower level into a true suite for longer stays.

Bathroom (Lower Level)
The lower level bath is tucked next to Bedroom 5, with a shower and modern fixtures. It’s also handy for anyone coming in from the backyard or patio, since it’s close to the rec space.

Patio
Stepping outside, the patio connects the interior rec area directly to the outdoors. This is the place for summer barbecues, kids’ games, or just stretching out on a lounge chair.
The covered decks above provide shade at certain times, making it comfortable even during hot afternoons.

Unfinished Storage (Lower Level)
On both sides of the lower level, unfinished storage rooms give you more space than most homes this size.
You’ll have plenty of room for sports equipment, camping gear, or anything else that needs to stay out of sight.
Access is easy, so no more stuffing things into tight corners.
Each space in this contemporary home feels connected, yet every bedroom and gathering spot has its own sense of privacy and light.
From the welcoming entry to the sun-soaked patios and decks, every level works together to create a complete living experience.
I think it’s ready for whatever your family needs next.

Interested in a modified version of this plan? Click the link to below to get it from the architects and request modifications.
