5-Bed Contemporary Farmhouse Plan with Home Office – 3215 Sq Ft (Floor Plan)

Every so often, you come across a house that feels like it was designed with real families in mind.
Here, the spaces work for everyday life, offer plenty of flexibility, and have a style that feels both current and timeless.
This home is a great example. With 3,215 square feet spread across multiple levels, it manages to blend the inviting warmth of a modern farmhouse with the crisp edge of contemporary design.
If you need room for a big household, love to entertain, or want a home that can adjust as your life changes, this plan has you covered.
Let me walk you through, starting right at the front door.
Specifications:
- 3,215 Heated S.F.
- 4-6 Beds
- 4.5-5.5 Baths
- 1 Stories
- 3 Cars
The Floor Plans:



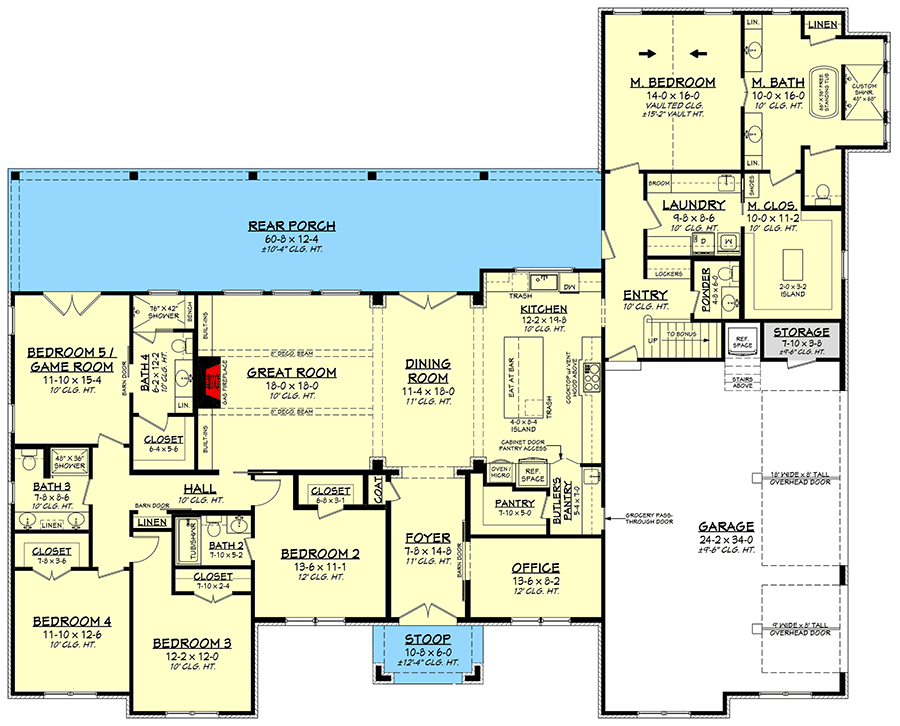
Foyer
Step up onto a wide stoop, where classic farmhouse brick and striking black accents set the tone.

Walking through the front door, you’ll find yourself in a surprisingly roomy foyer. The space feels open, thanks to clean sightlines that stretch through to the dining area and even out to the backyard.
Warm wood floors, exposed brick accents, and a sleek barn door give the entry area plenty of personality without losing comfort.
It’s easy to picture tossing your keys on the console, checking your look in the oversized mirror, or just pausing to breathe in that feeling of home.
Office
Immediately off the foyer, a glass-panel door leads into a dedicated office. With its street-facing window and just enough separation from the main living areas, this room works well for remote work or study.
At just over 13 by 8 feet, it’s a manageable size for a desk, bookshelves, and maybe a reading chair if you like to switch up your workspace.
The location offers privacy for focus, yet you stay connected to the rest of the home.

Bedroom 2
Further along the main hall, to your left, is Bedroom 2. The front window brings in plenty of light, and there’s a closet for storage.
This room works well for guests, older kids, or even as a hobby space. Its proximity to the foyer and a full bathroom just steps away means guests will feel welcome and comfortable.

Bath 2
Bath 2 sits conveniently between Bedroom 2 and Bedroom 3. With a single vanity, tub/shower combo, and easy access from the hall, it’s built for daily routines.


I like that it’s close enough to the living areas for guests to use, but not right in the middle of the main gathering spaces.
Bedroom 3 and Bedroom 4
Bedroom 3 sits right next to Bath 2, with its own closet and a wall of windows facing the side yard.
Bedroom 4 is tucked deeper into the floor plan, making it quieter and a bit more private.
Both of these rooms could easily work as kids’ rooms, a nursery, or even an extra office depending on what you need.

Bath 3
At the end of the bedroom wing, you’ll find Bath 3. It includes a separate vanity area plus a private toilet and tub/shower room.
This setup makes it easy for more than one person to get ready at the same time, which really helps during busy mornings or when the house is full.

Bedroom 5 / Game Room
Back near Bath 3, you’ll notice Bedroom 5, also labeled as a Game Room. This versatile space is a real bonus.
Separate from the other bedrooms, it would make a fantastic teen hangout, media room, or guest suite.
There’s a sizable closet and direct access to Bath 3, so it can easily adjust to whatever life brings your way.

Hall and Linen Storage
Connecting these bedrooms is a hallway lined with linen storage. This is the kind of practical detail that makes a big difference day-to-day.
Towels, spare bedding, or board games all have a spot.

Great Room
Toward the center of the house, you walk into the Great Room. Here, tall windows and a broad, open layout create a truly inviting space.

Wood ceiling beams add warmth, while the sleek fireplace and built-in shelving balance function and style.
The rear wall, almost entirely made of glass, lets in plenty of natural light. The easy connection to the backyard and rear porch makes this a favorite spot for relaxing or hosting friends.
I love how this space feels open but still cozy.
Dining Room
The dining area sits just off the Great Room, separated enough to define the space but open enough to keep everyone connected.

There’s room for a long table to fit a crowd. I think the mix of brick columns, wood beams, and generous windows gives the space a relaxed yet stylish vibe.
With easy flow to both the kitchen and living room, you’ll find this spot naturally draws people in for holiday feasts, casual pizza nights, or even working on homework.
Kitchen
If you care about kitchens that blend beauty and utility, this one stands out. An L-shaped design wraps around a substantial island that seats three, perfect for meal prep and casual conversation.

Sage green cabinetry, a farmhouse sink, and glass-front uppers keep things fresh and timeless. There’s a double oven, a stainless fridge tucked into its own nook, and sightlines that make it easy to keep tabs on everything.
The pantry sits just off to the side—a walk-in space with deep shelves, cabinets, and even a dedicated trash area.
As someone who loves to cook, I know how useful these details are.
Pantry
The pantry, located off the kitchen, is more than just a closet. This is real prep space, with enough shelving for canned goods, small appliances, and all those bulk buys that always seem to pile up.
I’m always glad to see a pantry that’s big enough to walk into and organized enough that nothing gets lost at the back.

Rear Porch
Step out through the kitchen or Great Room and you’re immediately on the rear porch.
Stretching almost the entire width of the house, this covered outdoor living area is designed for year-round enjoyment.
With access from several rooms, it’s the perfect place to watch the kids play, grill with friends, or just unwind.
The big windows and glass doors connect indoor and outdoor spaces, so you always feel included in what’s happening.

Entry Hallway and Lockers
Coming in from the garage, you enter a hallway built for daily life. There are built-in lockers for coats, backpacks, and sports gear, so clutter stays out of sight.
This drop zone keeps everything organized and away from the main living areas.

Laundry Room
Just down the hall, the laundry room features upper and lower cabinetry, a countertop for folding, and enough floor space for sorting and baskets.
Two large windows brighten up the space, which makes laundry a little more pleasant. The laundry opens directly to the master closet, and I really appreciate how convenient that is.

Master Suite Entry
The master suite is set apart from the busier parts of the home, accessed by a private hallway off the entry area. This layout gives you a true sense of retreat at the end of the day.

Master Bedroom
The master bedroom feels like a breath of fresh air. Vaulted ceilings, a wall of windows, and crisp shiplap keep it bright and airy.
There’s plenty of space for a king-sized bed, a sitting area, and any other furnishings you want.
Waking up here with the sun shining in would start your day off right.

Master Bathroom
Step into the master bath and you’ll find double vanities on either side of the entrance.
There’s a freestanding tub set against a marble accent wall and a spacious walk-in shower with both fixed and handheld sprayers.
Cream cabinetry, gold hardware, and statement lighting give the room a special, almost spa-like feel.
I think the symmetry and openness here make it both functional and beautiful.

Master Closet
The master closet is truly room-sized, with built-in shelving, hanging space, and a center island for accessories or folding.
There’s even a pass-through door to the laundry room, which is a small detail that I find incredibly useful.
In my opinion, a well-designed closet can make every day easier.

Linen Closets and Storage
Extra linen closets are tucked into the master suite hallways, so you’ll never be short on storage for towels, bedding, or out-of-season clothes. There’s also a dedicated storage room off the garage, perfect for tools, holiday decorations, or anything else you want kept handy but out of sight.

Garage
The attached garage is oversized, with room for two vehicles and extra space for bikes, lawn equipment, or a workbench.
There’s a grocery pass-through door straight into the pantry area, making shopping trips much easier.
I can see this setup saving a lot of time and hassle.

Stairs to Upper Level
From the main entry hall, a stairway leads up to the upper level. The stairs are tucked beside the storage room, which keeps them out of the way but still easy to reach.

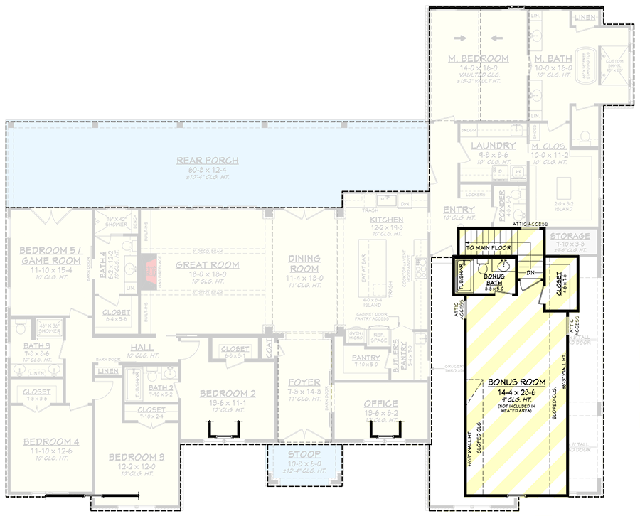
Bonus Room (Upper Level)
At the top of the stairs, you’ll find a massive bonus room. This wide-open space stretches almost the entire depth of the house and is ready to become whatever you need—a home theater, gym, playroom, or even a second living area.
There’s a closet for storage and a full bath with a shower, so you have even more options.
I can imagine this being a favorite hangout for teens or a quiet spot for hobbies.

Bonus Bath
The bonus bath connects directly to the bonus room and features a compact but functional layout.
You get a walk-in shower, vanity, and space to change or freshen up. This is especially helpful if the bonus room serves as a guest suite or a spot for longer visits.

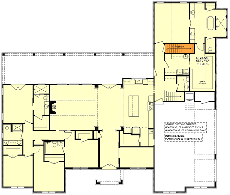
Stairs to Lower Level / Basement Access
Back near the master suite, another staircase leads down to the basement level. This connection keeps the private quarters linked to any lower-level expansion while still maintaining the peaceful feel of the master area.

Basement (Optional Layout Shown)
Depending on your needs, the basement layout offers even more flexibility. There’s space for storage, a mechanical room, and another entrance to the master closet.
This gives you options for finishing it later, creating an in-law suite, or just adding extra room for whatever you need.
When you look at every level together, this home really adapts to almost any phase of life. The smart mix of public and private spaces, the practical storage options, and the blend of classic farmhouse warmth with modern convenience all add up to a place where you can truly settle in for the long haul.

Interested in a modified version of this plan? Click the link to below to get it from the architects and request modifications.
