Craftsman House Plan: Two-Story Great Room, Split Bedrooms, and Porches (Floor Plan)

There’s something about this home that instantly feels inviting, even before you set foot inside.
With its crisp farmhouse styling, generous porch, and a mix of modern and rustic details, you get curb appeal that draws you in from the start.
Once you walk through the front door, the layout stretches across two thoughtfully planned levels, blending open gathering spaces with private retreats and bonus zones for work, play, or just catching your breath.
Let’s walk through every room and see how these spaces connect, from daily routines to special celebrations.
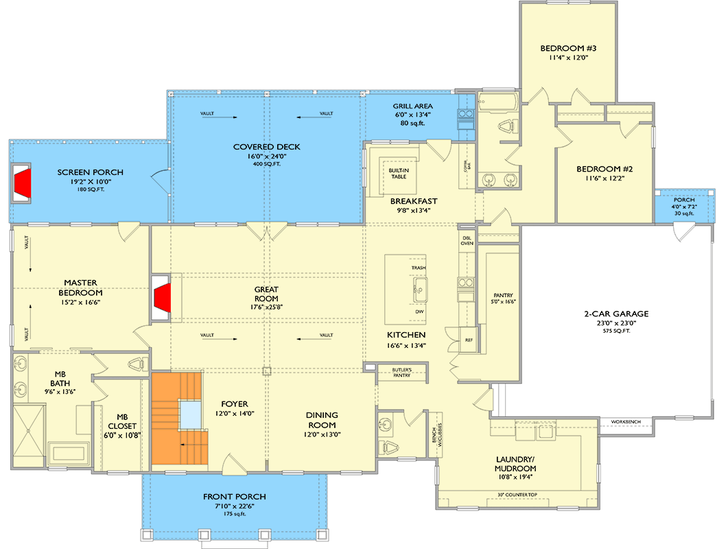
Specifications:
- 2,630 Heated S.F.
- 3 Beds
- 2.5 Baths
- 1 Stories
- 2 Cars
The Floor Plans:


Front Porch
You approach the house along a classic front porch that’s wide and deep enough for a swing or a line of rocking chairs.
Those strong, tan brick columns and black-framed windows really set the tone. Protected from the elements, this spot offers a quiet view of the yard and makes a perfect place to greet guests or catch up with a neighbor.

Foyer
As you enter, the foyer welcomes you with natural light streaming in through the front door, making the space feel bright and open.
It’s not oversized, but there’s just enough room to hang your coat, pull off muddy boots, or take a pause before heading further inside.
The stairs to the lower level catch your eye right away, but first, let’s check out what this main floor has to offer.

Dining Room
Directly to your right, the dining room sits at the front of the house, framed by windows and close to the kitchen for easy meal service.
It offers the right balance for both special occasions and everyday dinners, feeling cozy yet a bit formal.
I think families who love to host will appreciate how this space is set apart from the busier rooms, so you get that sense of occasion without feeling isolated.

Great Room
Moving forward, you come into the great room with its vaulted ceiling overhead and a fireplace that’s perfect for chilly nights.
This area naturally draws everyone together, whether you’re watching a movie, enjoying time with friends, or reading on a quiet afternoon.
The open connection to the covered deck lets in plenty of natural light and makes it easy to head outdoors when the weather is nice.

Covered Deck
The great room opens directly onto the covered deck, expanding your living space even further.
There’s enough room for a large table and some lounge chairs, making it easy to picture morning coffee or a relaxed barbecue while kids play in the yard.
A built-in grill area keeps cooking messes outside but close enough for convenient serving. On rainy days, this covered spot works as a true extension of the house.

Screen Porch
Next to the master suite, you’ll find a screen porch that I think is a real treat for anyone who enjoys a bug-free breeze in the evenings.
It feels private enough for a quiet retreat with a book, but you’re still just steps from the main living areas.
The location feels thoughtfully designed, almost like a personal outdoor nook.

Kitchen
Back inside, the kitchen immediately draws your attention with its efficient layout and big island at the center.
You’ll find double ovens, a generous pantry, and a butler’s pantry that connects right to the dining room, which is great for entertaining or keeping kitchen messes out of sight.
The workspace is practical and keeps you connected to the activity around you, so you can prep snacks or chat across the island while dinner simmers.
The kitchen flows seamlessly into the breakfast area, making mornings run a little smoother.

Breakfast Area
Set just off the kitchen, the breakfast nook feels like the center of daily life.
Sunlight streams in through the windows, and you’re close enough to the deck for easy outdoor meals.
There’s room for a good-sized table and built-in seating. I can easily imagine both busy breakfasts and relaxed weekend lunches here.

Pantry and Butler’s Pantry
Between the kitchen and dining room, you’ll pass through the butler’s pantry, a real bonus for anyone who enjoys hosting.
There’s storage for serving pieces and a spot for drinks or desserts. The main pantry sits just behind the kitchen and is deep enough for a big grocery haul, helping you keep everything organized and out of sight.

Laundry/Mudroom
To the side of the kitchen, you’ll find the laundry and mudroom, perfectly placed between the garage and main living areas.
There’s a long counter for folding, hooks and shelves for shoes and backpacks, and plenty of space to handle the mess of daily life.
I really appreciate how this room serves as a practical transition zone, keeping clutter contained and floors clean.

Two-Car Garage
Just off the mudroom, you get an attached two-car garage with a workbench zone along one wall.
Groceries and gear come straight inside without having to deal with the weather. This space is wide enough for two vehicles, bikes, and a little storage along the sides.
I think this is especially practical for a busy household.

Side Porch
A small covered porch connects to the hallway near the secondary bedrooms. It’s designed more for function than show, giving you a spot to shake off rain or snow before heading inside.
Sometimes it’s these little everyday features that make life easier.

Master Bedroom
On the opposite side of the great room, the master bedroom creates a private escape.
Set apart from the main bustle, it has windows on two sides and easy access to the screen porch.
The space is generous without feeling overwhelming, making it a great place to unwind at the end of the day.

Master Bath
Entering the master bath, you’ll see a double vanity, soaking tub, and separate shower. Natural light fills the room, giving it a calm, inviting feel.
The layout puts everything within easy reach, adding a touch of luxury to your daily routine.

Master Closet
Connected to the master bath, the walk-in closet offers plenty of storage and helps make morning routines easier. Shelving, hanging rods, and space for shoes or accessories are all right where you need them.

Bedrooms 2 and 3
Across the house, two more bedrooms are located near each other. Both have easy access to a shared hall bathroom, which makes this area ideal for kids or guests.
The rooms are similar in size and have large windows and roomy closets. I like that they’re separated from the master suite, giving everyone some privacy.

Shared Bath (Main Floor)
Serving bedrooms 2 and 3, the shared bathroom features double sinks and a tub/shower combo.
It’s located just off the main hall for easy access but still feels private. This setup is efficient for busy mornings and quiet at night.

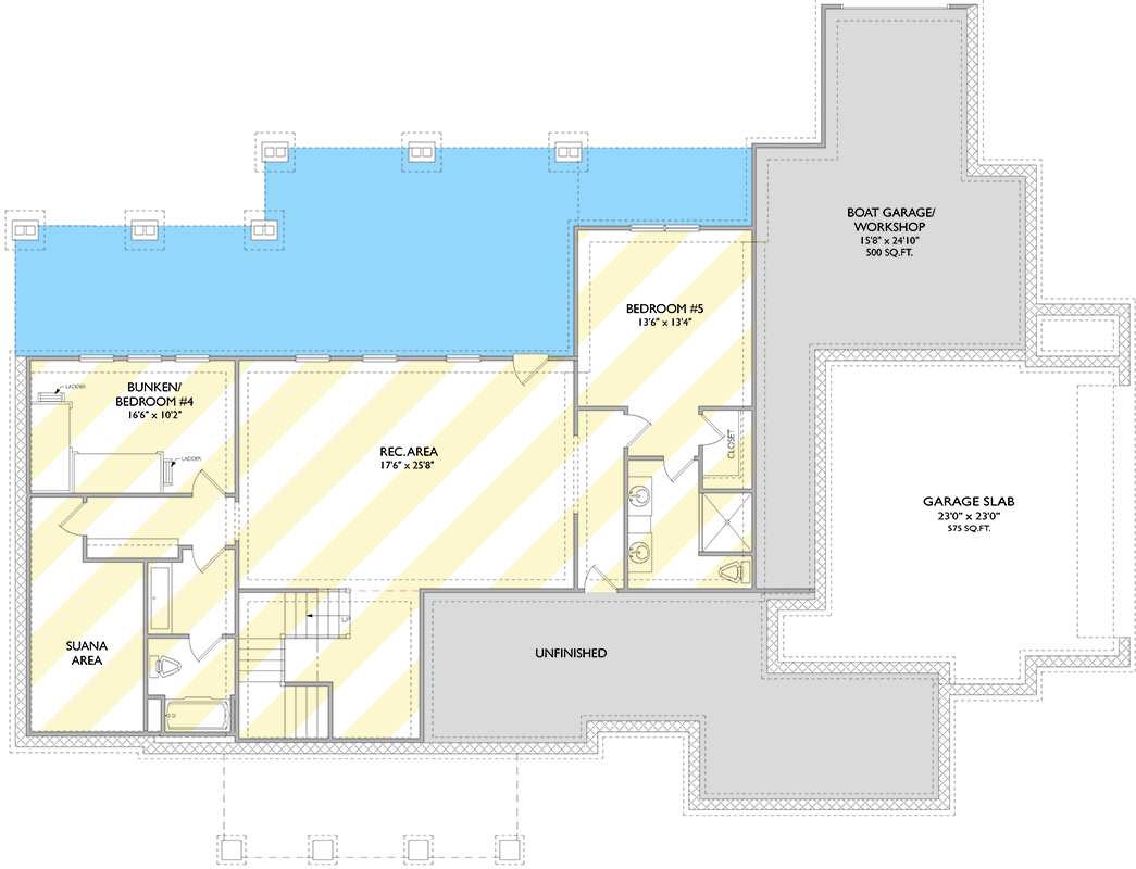
Lower Level Stairs
Returning to the foyer, you’ll find the stairs that lead down to the lower level. The transition between floors feels natural, and you really get the sense that there’s a whole new set of spaces waiting for you downstairs.

Rec Area
At the bottom of the stairs, you step into a huge rec area. This open, flexible space is perfect for a pool table, home theater, or even an indoor play area.
Thanks to natural light from above, it doesn’t feel like a typical basement. The rec area connects to other rooms on this level, making it a real hub for fun and relaxation.

Bedroom 4 (Bunk Room)
On one side, there’s a bunk room labeled as Bedroom 4. This space is ideal for sleepovers, grandkids, or extra guests.
Built-in bunks give it a playful, camp-like atmosphere, and there’s enough floor space for reading, games, or quiet downtime.
The room feels private but is still close to all the action in the rec area.

Sauna Area
Few homes include a dedicated sauna area, but here you get a special spot to unwind after a long day.
The sauna is located near the bunk room, so it’s easy to use after an outdoor adventure or as part of your winter routine.
I think this is a little luxury that could quickly become a favorite part of the house.

Bedroom 5
Bedroom 5 is also on the lower level, slightly larger than the bunk room, and features a closet for storage.
With its own window, the room feels bright and welcoming. Its location near the lower-level bath makes it a great choice for guests or an older teen who wants more independence.

Lower Level Bath
This floor includes a full bathroom that serves both bedrooms and anyone enjoying the rec area. The layout features a tub/shower combination and enough space for busy mornings or overnight visitors.

Boat Garage/Workshop
One feature that stands out in this plan is the boat garage/workshop on the lower level.
This isn’t just a storage spot—it’s a real workshop where you can work on hobbies, keep outdoor gear organized, or store a boat.
I love how versatile this space is for anyone with big projects or extra equipment.

Unfinished Area
Next to the garage slab, there’s a large unfinished area. This gives you options—you could set up a home gym, add extra storage, or turn it into a studio.
I like having the flexibility to adapt the space as your needs change.

Garage Slab
A second, lower-level garage slab lines up with the main garage above, adding more options for vehicle storage, equipment, or even a car collection. Its connection to the workshop makes this a dream for anyone who enjoys hands-on projects.
Looking at the whole plan, you can see how this home brings together everything a modern family needs.
There are generous entertaining spaces, practical storage solutions, and room for every activity. Each level and every room is carefully considered, creating a house that truly feels ready for real living.

Interested in a modified version of this plan? Click the link to below to get it from the architects and request modifications.
