
Come inside this European farmhouse and you’ll quickly see how it balances comfort, function, and a touch of modern elegance across its two levels.
With 4 bedrooms, multiple living areas, a dedicated office suite, and amenities for both relaxation and entertaining, this home adapts to all the rhythms of daily life.
The smart separation of public and private spaces, along with the easy flow between indoors and out, makes every 4,614 square feet feel both practical and inviting.
I’ll take you through the layout, starting at the front and exploring each space together.
Specifications:
- 4,614 Heated S.F.
- 4 Beds
- 5.5 Baths
- 1 Stories
- 3 Cars
The Floor Plans:


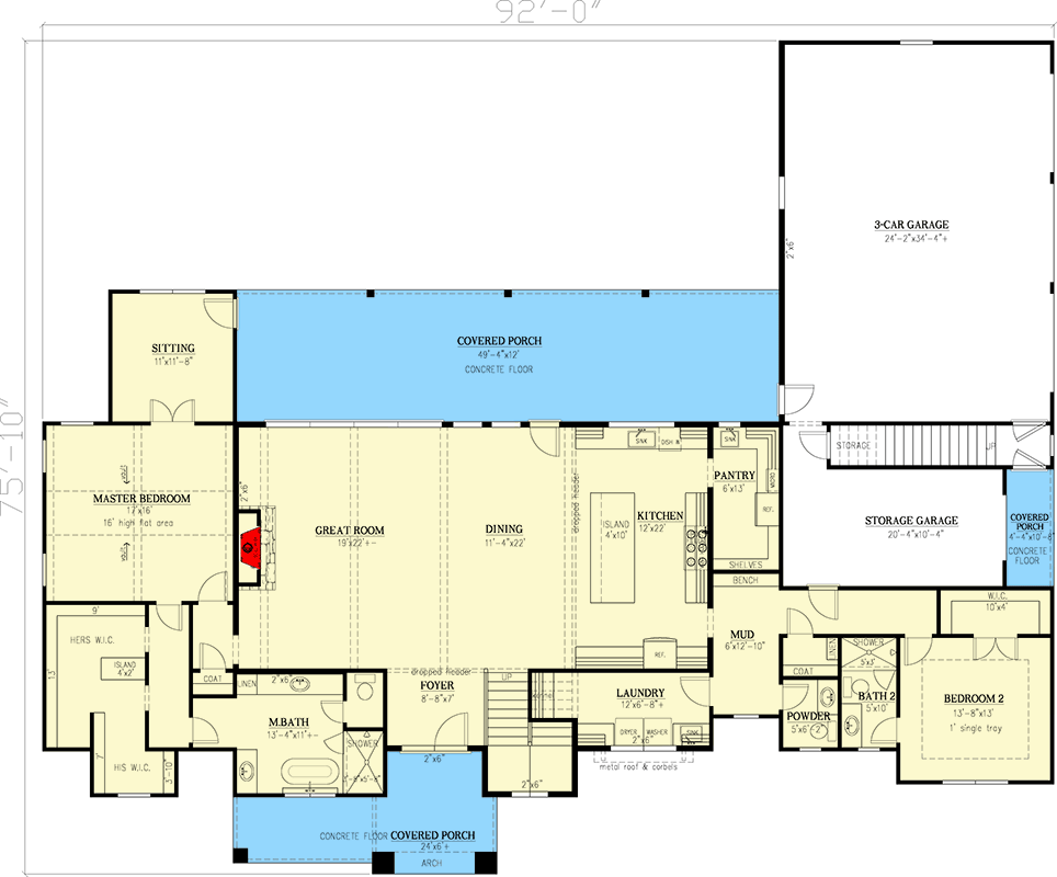
Foyer
The entryway creates an immediate sense of calm and openness. Tall glass panels on the front door fill the space with natural light, while a double-height ceiling adds drama.

You’ll notice warm wood treads on the staircase, a soft runner, and sleek black balusters for a modern farmhouse look.

A shiplap accent wall brings in character. A coat closet near the door offers quick storage, and there’s a clear view ahead into the main living areas.
As you continue, the foyer flows into the key gathering spaces, setting the tone for the rest of the home.
Great Room
Beyond the foyer, you arrive in the great room, perfect for gathering. Light pours in from tall windows and sliding doors, reflecting off the high ceiling and exposed wooden beams.

The rustic stone fireplace with its chunky mantel draws your attention and promises cozy evenings.

Wide wood floors stretch throughout, anchoring the space. I think it’s easy to picture family get-togethers here, or simply relaxing with a book as the seasons change.
The great room opens into the dining area and kitchen, making it the central hangout spot for daily living.
Dining
The dining room is connected right to the great room. It offers a generous footprint, easily fitting a large table with room to spare.

A wall of windows and sliding doors look out onto the backyard, filling the space with sunlight and giving you direct access to the patio.
This is ideal for dinners that move outside on nice evenings. The same wood floors continue here, while exposed ceiling beams and a modern chandelier in soft gold tones lend both warmth and style.
Whether you enjoy hosting big holiday meals or casual weekend brunches, this area is ready for anything.
Kitchen
Next up is the kitchen, where the open-plan layout and generous island catch your eye immediately.

There’s a bright, airy feel, thanks to a mix of warm wood and crisp white cabinetry, finished with a herringbone tile backsplash.

Pendant lights over the island create a cozy breakfast spot or a place to chat while prepping dinner.

Storage is abundant, with deep drawers and cabinets stretching to the ceiling. A large pantry sits just beside the kitchen, keeping things organized and tucked away.
It’s a setup that works for both big family meals and ambitious baking projects.
Pantry
Just off the kitchen, you’ll discover a walk-in pantry. The efficient shelving makes it simple to keep dry goods, small appliances, and snacks close at hand but out of the main kitchen area.
In my opinion, this kind of feature quietly makes daily life a lot smoother.

Mudroom
Past the kitchen, the mudroom acts as a hardworking transition area between indoors and out.
You’ll find a built-in bench, cubbies for shoes, and hooks for backpacks or coats. I really appreciate how this space keeps clutter contained.
It connects directly to the garage, so dropping off groceries or muddy boots stays easy and mess-free.

Laundry
From the mudroom, you can enter the laundry room. With a long counter, a sink, and overhead storage, you have space to sort, fold, and wash without feeling crowded.
The practical layout means everything is close by, while the large window keeps the room cheerful.

Powder Room
Near the mudroom, there’s a powder room. It’s perfectly placed for guests or quick stops, so you don’t have to walk through the private parts of the house.

The finishes blend classic farmhouse style with modern touches.
Bedroom 2
Further down the mudroom corridor, Bedroom 2 is set apart in its own section. The generous space includes a large closet and a single tray ceiling for a hint of luxury.
This room also has its own private bath, making it great for a teenager, guest, or multigenerational family setup.

Bath 2
The bathroom for Bedroom 2 features a vanity, tub/shower combo, and quality tilework. Its location close to both Bedroom 2 and the powder room means flexibility and easy guest access.

Storage Garage
On the far side of the mudroom, you’ll find the storage garage, which is all about utility.
If you need space for lawn equipment, bikes, or seasonal decor, this room keeps it organized and easy to reach.
A stairway here leads to the next level, connecting you to bonus spaces for hobbies or projects.

Three-Car Garage
Next to the storage garage is the main three-car garage. It’s wide and deep, offering room for vehicles, a workbench, or extra storage cabinets.
The covered access to the mudroom means you can bring in groceries or kids without worrying about the weather.

Covered Porches
Wrapping around the back and side of the home, the covered porches really stand out.
They reach toward the backyard pool and stepping stones, providing shaded spots to lounge or entertain a group.
Crisp white columns, black trim, and wood-paneled ceilings with oversized fans create a fresh, inviting atmosphere.
I love the idea of sipping morning coffee out here or hosting a summer cookout.
These porches definitely expand your living space.

Master Bedroom
Set in a private corner, the master suite feels like a true retreat. A vaulted ceiling with exposed beams adds character, while large windows fill the room with natural light.

There’s a quiet sense of luxury, and I think the sliding barn doors lend just the right rustic touch.

Direct access to a private sitting room lets you sneak away for a quiet moment or walk out to the covered porch.
Sitting Room
Connected to the master bedroom, the sitting room gives you a peaceful spot to read, meditate, or simply enjoy the view through French doors. This cozy nook works for early morning coffee or unwinding after a long day.

Master Bathroom
The master bath stands out with its spacious design. Dual vanities provide plenty of room, and the freestanding tub is ready for relaxing soaks.
A glass-enclosed shower and marble-look tile add style. Brass hardware and wood cabinetry bring warmth, and storage stays tucked away.
A separate water closet offers privacy.

His and Hers Walk-In Closets
The suite includes two walk-in closets, one for each partner. With custom shelving, hanging space, and even an island in the “hers” closet, everything stays organized.
I like how the island works as a spot to pack for trips or lay out clothes for the day—so practical.

Main Floor Powder
Near the foyer, a second powder room adds another convenient option for guests and family. There’s never a wait, even when the house is full.
Now, let’s head upstairs and see how the second level expands your options.

Landing and Open to Below
At the top of the staircase, a wide hallway overlooks the foyer below. This open space keeps the upstairs bright and connected to the rest of the home.
From here, you can reach the bedrooms, rec room, and more.

Bedroom 3
To your right, Bedroom 3 features a generous footprint and a tray ceiling. There’s a large walk-in closet and private entrance to the hall bath.
Plenty of natural light makes this room feel cheerful.

Bath 3
Bath 3 sits just outside Bedroom 3 and works as both an en suite and a hallway bath for visitors. With a shower, vanity, and easy access, it’s ready for busy mornings or overnight guests.

Bedroom 4
Across the hall, Bedroom 4 is even larger, with its own tray ceiling and walk-in closet.
Direct access to Bath 4 makes it ideal for an older child, guest, or even an au pair.
The room is big enough for a bed, study area, and a spot to relax.

Bath 4
This bathroom is roomy and well-finished, with a tub/shower combo, vanity, and built-in shelving. It connects directly to Bedroom 4 for privacy.

Rec Room
The rec room anchors the upstairs. High ceilings and an open layout make it easy to picture anything from a playroom to a media lounge.
There’s even a wet bar tucked into one corner, so hosting game night or movie marathons is a breeze.
Light streams in from several directions, making this a bright, flexible hub for everyone.

Wet Bar
In the rec room, the wet bar includes a sink, space for a mini fridge, and cabinetry for snacks or drinks. This keeps entertaining easy and mess under control.

Hall Storage
A hall storage closet gives you space for board games, linens, or anything you want close by but out of sight.

Office
At the end of the hallway, you’ll find a spacious office that almost feels like its own apartment.

Positioned above the storage garage, you get maximum privacy and quiet. There’s room for multiple desks, a large window for light, and its own wet bar with fridge and cabinetry.

I think this setup truly makes working from home enjoyable.
Bath 5
The office suite includes a dedicated full bath with shower, vanity, and direct access to a walk-in closet. If you need a guest suite, a creative studio, or a homework headquarters, this space is ready.

Walk-In Closet (Office Suite)
A generous walk-in closet completes the office suite, giving you storage for supplies, files, or even seasonal gear. This layout really shows how the home adapts—for work, guests, or just giving everyone extra breathing room.
Back downstairs, it’s clear how all these spaces connect. The main and upper levels strike a balance between open gathering spots and private retreats.
No matter if your days are packed with family, work, or entertaining, this home keeps things organized, comfortable, and always ready for what comes next.
I think it’s designed to match your pace, whatever that may be.

Interested in a modified version of this plan? Click the link to below to get it from the architects and request modifications.
