European Estate Home with Porte Cochere and Lower Level Expansion (Floor Plan)

There’s something undeniably striking about a home that feels both timeless and welcoming from the very first glance.
This European French Country residence, offering 3,302 square feet across three full levels, blends classic charm with everyday livability.
You’ll notice the dramatic porte-cochère, stately brick facade, sweeping great room, and inviting outdoor spaces.
Every area is created for comfort, connection, and a bit of luxury. I’d love to walk you through each room and space you’ll find in this thoughtfully layered home.
Specifications:
- 3,302 Heated S.F.
- 4-6 Beds
- 4.5-6.5 Baths
- 2 Stories
- 5 Cars
The Floor Plans:



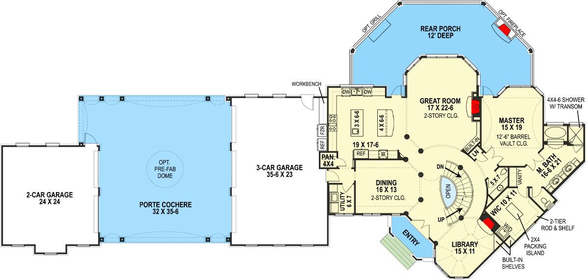
Porte Cochère and Garages
As you approach, the impressive porte-cochère immediately stands out. It’s a covered drive-through that turns every arrival into a special event.
If it’s raining or you’re welcoming guests, you’ll have shelter and style. On the left, there’s a detached two-car garage—a great spot for classic cars or weekend projects.
On the right, the attached three-car garage gives you even more parking and includes a workbench for hobbies.
Moving groceries, luggage, or sports gear inside is easy, no matter the weather.

Entry
Heading up to the main entry, you’re met with a sense of openness. The entryway offers clear sightlines straight to the back windows.
The staircase curves gently, feeling both elegant and approachable. I think this first impression strikes just the right balance between grand and inviting, making it perfect for family life or entertaining.

Library
Just off the foyer, the library becomes a cozy retreat. Built-in shelves line the walls, and a fireplace invites you to settle in with a good book.
At 15 by 11 feet, it has plenty of room for work, reading, or quiet conversations by the fire.
Its location near the front door makes it easy to meet with clients or visitors without leading them into the private parts of your home.

Dining Room
Moving deeper inside, you’ll discover the dining room. A two-story ceiling gives this space an airy, dramatic feel—perfect for everything from holiday dinners to casual weeknights.
The open flow makes hosting easy, but the dining area still feels defined and welcoming.
Its close proximity to the kitchen keeps serving and cleanup simple.

Kitchen
The kitchen is all about natural light and staying connected. White cabinetry, marble-look counters, and subway tile create a bright, classic look.

The U-shaped layout offers plenty of workspace for big family meals, and the island has seating for quick breakfasts or homework time.
A wall of windows and glass doors let in sunshine all day. You can chat with guests in the great room or keep an eye on the backyard while you cook.
Pantry
Right next to the kitchen, a walk-in pantry helps keep your counters clear and organized. I noticed there are built-in shelves and room for bulk storage, which is a huge plus if you love to cook or have a big family.

Utility
Beside the pantry, you’ll find the utility room. It’s private but still easy to get to—perfect for laundry and extra storage.
The flow from the garage through the utility room to the kitchen makes things super convenient, especially when you’re coming in with muddy boots or a load of groceries.

Great Room
Stepping into the great room, the space immediately opens both vertically and horizontally. Two-story ceilings and massive windows flood the room with light from dawn until dusk.
There’s space for a big sectional or multiple seating areas, and a fireplace anchors the far wall for cozy nights.
Built-in cabinetry adds both style and storage. Wide doors connect this room to the rear porch, making it easy to move between indoors and outdoors.

Rear Porch
The rear porch stretches your living space outside and is deep enough for both lounging and dining.
Stone columns, arched details, and the option for an outdoor fireplace make this area comfortable almost all year.
If you enjoy grilling or relaxing with a book, you’ll love the covered space and the easy view of the backyard or pool.
Personally, I think this would become the main spot for weekend gatherings.

Master Suite
Just beyond the great room, the master suite sits in its own private corner of the house.
The bedroom features a barrel-vaulted ceiling and large windows that catch the morning light. It’s spacious enough to add a sitting area if you like unwinding before bed.

Master Bath
The master bath is all about comfort and a bit of luxury. There’s a large walk-in shower with a transom window, double vanity, and a separate soaking tub—everything you’d want for a relaxing retreat.
The walk-in dressing room includes two tiers of rods, built-in shelves, and even a packing island.
I think having this much organized space makes daily routines much less stressful, and the separation from main living areas means real peace and quiet.

Powder Room
You’ll find a powder room conveniently placed near the main hallway for guests. Its location is just right, so visitors don’t have to wander far from the main living spaces.
The finishes here keep the home’s style consistent and polished.

Stairs and Circulation
The staircase curves up from the foyer, leading your eye naturally to the next level. The open design between floors means you can still feel connected to what’s happening downstairs, but noise and foot traffic are kept in check.

Landing and PC Area
At the top of the stairs, a wide landing opens up and looks over the foyer and dining area.
There’s a built-in desk and a spot for computers, perfect for homework or working from home without taking over a bedroom.
This dedicated area helps keep technology organized and away from common spaces.

Bedroom 2
Bedroom 2 is at the front of the house and measures 12 by 13 feet.
It has its own closet and easy access to a full bath right across the hall.
This setup works well for a teen, guest, or nursery since it’s close to the main flow but still private.

Bedroom 3
Right next door, Bedroom 3 matches Bedroom 2 in size and also has its own closet.
These two bedrooms share a bath between them, and each has its own entrance. That way, everyone has their own space, but it’s still efficient for busy mornings.

Bedroom 4
Bedroom 4 is larger and set at the far end of the hall, featuring a vaulted ceiling.
There’s a bit more separation here, which makes it great for an older child or live-in relative.
Double doors open to the landing, and this room enjoys the most privacy upstairs. The dedicated bath right next door means no one has to wait for a shower.

Bath 3 and Bath 4
Bath 3 is shared by Bedrooms 2 and 3 and includes a double vanity and a separate tub/shower area, so two people can get ready at once.
Bath 4 is just for Bedroom 4, providing a private bathroom space. Both are sized for comfort and easy access.

Laundry Niche
A stackable washer and dryer niche on this floor means you won’t have to haul laundry up and down the stairs. For families with kids living upstairs, this is a real convenience.

Attic and Niches
Off the central hallway, you’ll find small attic access and several wall niches. These are perfect for displaying art, collectibles, or family photos.
I love how these details add character and let you personalize the space.

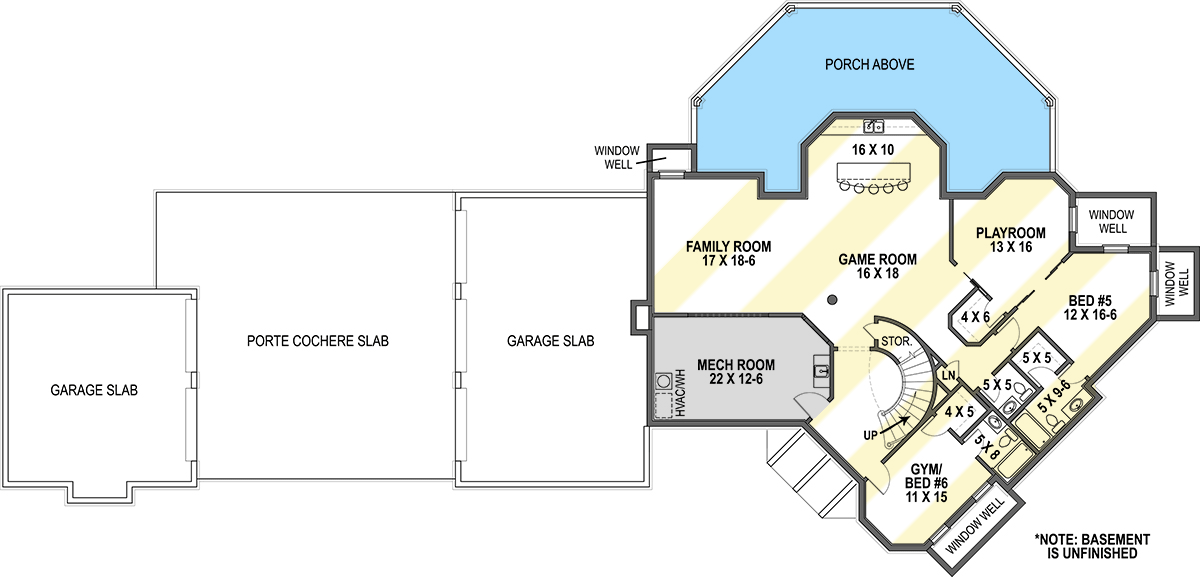
Family Room
Down in the basement, the family room offers a bright, spacious spot for relaxing. A window well brings in daylight, and at nearly 18 by 17 feet, there’s plenty of room for movie nights or games with friends.

Game Room
Connected to the family room, the game room is front and center. Its open layout and location near the bar area make it easy to picture as the hub for parties, pool tables, or spreading out with board games.

Bar
The bar area along the back wall serves both the game and family rooms. It’s a great spot for snacks, drinks, or even a quick homework break while dinner wraps up upstairs.

Playroom
Past the game room, the playroom gets extra light from another window well and is sized for everything from art projects to LEGO builds. If you have young kids, this is a fantastic bonus; otherwise, it could easily become a home office or studio.

Bedroom 5
Bedroom 5 sits at the end of the lower hall, with a full closet and access to its own hall bath. It’s a great suite for guests or teens who want a bit more independence.

Bath 5
Right outside Bedroom 5, Bath 5 includes a shower and is easy to reach from the play and game rooms. You’ll appreciate not having to run upstairs during movie marathons or sleepovers.

Bedroom 6/Gym
The sixth bedroom doubles as a gym and measures 11 by 15 feet. Thanks to a large window well, it feels bright and open—perfect for workouts, yoga, or creating a quiet meditation spot.

Mechanical Room
A large mechanical room is set behind the family space, keeping all the home’s systems out of sight but easily accessible for maintenance. There’s also storage under the stairs for whatever you need to tuck away.
With all three levels connected by a beautiful, curving staircase, this French Country home blends private retreats, open gathering spaces, and practical comforts for everyday life.
From the grand entry to the sunlit basement, every room serves a clear purpose. I love how the design naturally supports both togetherness and personal space.
If you picture lively holiday gatherings or quiet mornings with coffee by the fire, this home easily adapts to your family’s rhythms.

Interested in a modified version of this plan? Click the link to below to get it from the architects and request modifications.
