Expansive Modern Farmhouse House Plan with Home Office and Outdoor Kitchen (Floor Plan)

You can’t walk past this home without noticing its modern farmhouse charm. A wide, welcoming front porch stretches across the façade, inviting you to slow down and come inside.
With crisp white siding, deep black windows, and chunky porch columns, it strikes that rare balance between fresh and timeless.
Once you cross the threshold, the multi-level layout opens up, revealing spaces designed for both busy family life and quiet moments.
Let’s walk through every nook, starting with the main level.
Specifications:
- 2,379 Heated S.F.
- 3 Beds
- 3.5 Baths
- 1 Stories
- 3 Cars
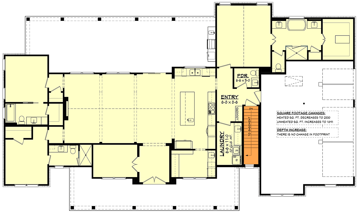
The Floor Plans:


Front Porch
Before you even enter, the front porch offers a spot to pause and take in the view.
Benches sit under the metal-roofed shelter, making it easy to imagine sipping coffee or catching up with neighbors.
The generous width means you can greet guests comfortably or just enjoy a bit of shade on a warm afternoon.

Foyer
As soon as you walk in, you’re in a bright foyer with high ceilings and straight sightlines toward the main living spaces.
There’s a sense of openness right away, and the light flooding in from the windows sets a welcoming tone.
It’s the kind of entrance that feels both homey and impressive, without being stuffy.

Office
Just off the foyer sits a flexible office. The size is practical, not overwhelming, and a window gives it plenty of natural light for focused workdays or creative projects.
Because of its spot near the entry, it works well as a study zone or a quiet retreat for reading.

Pantry
Continue past the foyer, and you’ll come across a walk-in pantry next to the kitchen.
It’s deep enough to hold everything from bulk groceries to small appliances, making it a real asset if you like to keep counters clutter-free.
Shelving lines the space, so you can actually see what you have on hand.

Powder Room (PDR)
Just before you reach the main living area, there’s an easily accessible powder room. It’s a simple touch, but one that makes life easier when you’re entertaining or don’t want guests trekking through private areas.
The compact footprint means it doesn’t steal space from other rooms.

Entry
Now, moving into the main entry hall, you’ll notice built-in lockers right as you come in from the garage.
This is one of those details that make daily routines smoother. Kids’ backpacks, muddy boots, and coats all get a home here, so clutter doesn’t spill into the living areas.
Separate broom and storage closets nearby add even more organizational punch.

Laundry
Right off the entry, the laundry room keeps chores contained and offers more than just a place for the washer and dryer.
There’s counter space for folding, hanging rods, and even a mini fridge setup. I think this layout works well for families who want laundry to be central, but not on display.

Garage
From the laundry, you’ll find easy access to the garage. This oversized space fits two cars comfortably, with plenty of room for storage or a workshop at the back.
Overhead doors make coming and going simple. If you like to keep things organized, the extra depth means there’s space for shelves, bikes, or seasonal gear.

Kitchen
The kitchen opens up with a long, multi-functional island at its center. There’s room here for quick breakfasts or casual snacks, and the cooktop sits right at the center, so you’re always part of the action.
Double ovens, a walk-in pantry, and custom cabinetry make it feel high-end but approachable. A window above the sink looks out toward the rear porch, keeping things bright even on gray days.
I like how the flow here supports both busy mornings and big gatherings.

Dining
Instead of a closed-off dining room, you get a wide-open space that flows straight from the kitchen.
The dining area is defined yet connected, perfect for everyday meals or larger celebrations. Vaulted ceilings and decorative beams draw your eye upward, adding just the right amount of drama.
It’s easy to see how this space would adapt to everything from holiday dinners to homework sessions.

Great Room
The great room extends naturally from the dining space, anchored by a central fireplace with built-in shelves on either side.
Large windows frame the backyard and keep the whole space flooded with light. There’s plenty of room for a big sectional or a blend of sofas and chairs.
I’ve noticed more designers favor this kind of open, airy layout, and it really works for families who want to be together without feeling crowded.
The connection to the rear porch is a bonus, letting you enjoy indoor and outdoor living together.

Rear Porch
Through sliding doors, the rear porch stretches almost the entire width of the house. With a high ceiling overhead, this space feels like an extension of the living room.
There’s even an outdoor kitchen setup, complete with a sink and plenty of counter space for grilling or entertaining.
The porch is deep enough for dining and lounging zones, and the shelter means you can use it even when the weather isn’t perfect.

Master Bedroom
On the right wing of the house, you’ll find the master suite set apart for total privacy.
The bedroom itself is spacious, with vaulted ceilings that make it feel even bigger. A wall of windows looks out to the backyard, and the proportions give you flexibility to arrange furniture how you like.
Since it’s set away from the main living areas, it truly feels like a retreat at the end of the day.

Master Bath
When you enter the master bath through double doors, it feels spa-inspired. There’s a freestanding tub, a custom shower with a glass enclosure, and dual sinks with plenty of counter space.
The designer added a linen closet right in the bath, which is a detail I appreciate for keeping towels handy.
The finishes lean modern but still feel warm, which I think is exactly what you want in a private oasis.

Master Closet
Connected to the bathroom, the master closet gives you room to spread out. It’s big enough for built-in dressers and shelving, so everything has its place.
If you love fashion or just want to avoid a cramped closet, this setup feels generous without being over the top.

Bedroom 2
Now, let’s cross back to the opposite end of the home, where the secondary bedrooms are grouped together.
Bedroom 2 has a big front-facing window and a deep closet. It’s similar in size to the third bedroom, making it easy to keep sibling spaces equal, or offer guests a comfortable stay.
The proximity to a full bath is handy for morning routines.

Bath 2
Bathroom two sits between the secondary bedrooms, with a custom shower and modern fixtures. It’s compact but efficient, handling traffic from both bedrooms without feeling cramped.
The location also makes it useful for guests or as a backup to the main bath.

Bedroom 3
Bedroom three faces the backyard and features another sizable closet. Natural light spills in, making this room feel cheerful all day long.
I’ve seen this kind of setup used for anything from a kid’s room to a hobby space.
Its placement apart from the master makes it especially good for older kids or overnight visitors.

Bath 3
The third full bath sits just outside bedroom three. Here, you get a tub and shower combo, plus a linen closet nearby for towels and supplies.
Having three full bathrooms is a real luxury, especially for families who want everyone to have a bit of privacy.

Linen Closets
Throughout the hallways, you’ll notice several linen closets. These little details add up: there’s storage for sheets, towels, and all those household extras that never seem to have a proper home.
No more running across the house when you need an extra blanket.

Stairs to Basement/Lower Level
In the entry area, you’ll spot a staircase leading down. This is where the lower level (or basement) expands your usable space in a big way.
The access is central, which is great for everything from bringing in boxes to inviting guests downstairs.

Lower Level Overview
The lower level essentially mirrors the main floor and gives you a giant blank canvas.
There’s room here for a rec room, gym, home theater, or even additional bedrooms if you want them.
With plumbing rough-ins and well-placed windows, you can customize the space to your needs. This could mean storage, hobbies, or even expanding the living area.
I think having this kind of flexibility adds a lot of value and lets you adapt as your lifestyle changes.

Lower Level Powder Room
Just like upstairs, there’s a powder room on the lower level. It’s placed by the stairs for easy access, so if you’re watching movies with friends or setting up a playroom, you don’t have to trek upstairs every time.

Mechanical and Storage Areas
The lower level includes dedicated zones for mechanicals and storage. These rooms keep the essentials out of sight but close at hand.
The utility spaces are generous, so you don’t have to worry about squeezing in boxes or off-season decor.
As you head back up to the main level, it’s clear how the design brings everything together.
The open living spaces are balanced by private retreats. Storage is woven into every hallway and room.
Outdoor living feels natural, thanks to those deep porches and thoughtful connections. This home isn’t just pretty from the outside—it’s built for real life, with room to grow and adapt as your needs change.

Interested in a modified version of this plan? Click the link to below to get it from the architects and request modifications.
