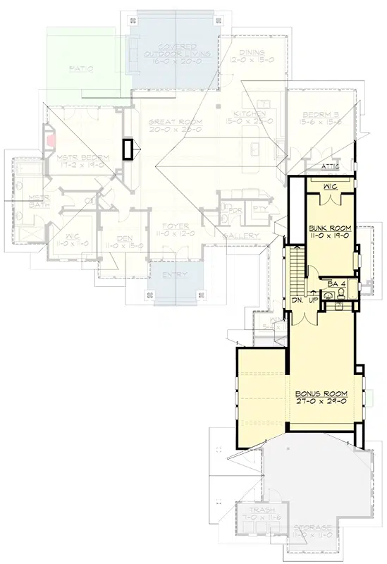
High End Mountain House Plan with Bunkroom (Floor Plan)
Welcome to the High End Mountain House Plan with a Bunkroom, an architectural marvel that’s a perfect blend of luxury and cozy mountain retreat vibes.

This sprawling 4,620 square-foot home boasts 4 bedrooms, 4.5 baths, extensive living areas, and a triple-car garage, making it an unparalleled sanctuary for families and friends seeking solace or adventure in the mountains.
Specifications:
- 4,620 Heated s.f.
- 4 Beds
- 4.5 Baths
- 1 Stories
The Floor Plan:


Foyer
As soon as you step inside, you’re greeted by the expansive foyer that sets the tone for this magnificent home. With its wide-open space, the foyer not only welcomes you but also offers breathtaking immediate views of the vaulted and beamed great room. Imagine stepping in from the cold and being embraced by the warmth and grandeur that awaits within.

Great Room
Walking forward from the foyer, the great room unfolds in front of you like a scene from a luxury mountain lodge magazine. The vaulted ceilings with exposed beams elevate the sense of space, and the large windows invite the outside in, allowing you to bask in the beauty of your surroundings. Centered around a cozy fireplace, this room is where memories are made, whether it’s a quiet evening with a book or lively nights hosting friends and family.

Kitchen
The kitchen in this home is a dream come true for anyone who loves to cook and entertain. It features a huge island facing the great room’s fireplace, ensuring you never miss out on the fun while preparing meals.

Seating for seven at the island and additional seating at the peninsula eating bar offer both a casual dining experience and a way to engage with everyone. The walk-in pantry and large walk-in wine closet are the cherries on top, providing ample storage for all your culinary needs.
Dining Area
Adjacent to the kitchen, the formal dining room offers a more traditional space for meals. Whether it’s a grand holiday feast or an intimate dinner for two, the setting here is perfect for creating unforgettable dining experiences. The openness of this area to the rest of the living spaces ensures that even formal meals feel inclusive and inviting.

Master Bedroom
The master suite is a private oasis designed with luxury and relaxation in mind. Situated off to itself, this room features its own fireplace, creating a cozy atmosphere perfect for unwinding after a long day. The large windows and high ceilings add to the sense of serenity and seclusion. It’s a personal retreat that makes every day feel like a spa day.

Master Bathroom
Continuing the theme of luxury, the master bathroom is a testament to thoughtful design and comfort. Imagine soaking in a large tub, surrounded by tranquility and perhaps a scenic view through a discreet window. The high-end fixtures and finishes contribute to the spa-like experience, ensuring that you start and end your day in total bliss.

Additional Rooms
On the opposite side of the home, Bedroom 2 boasts a beamed ceiling, emphasizing the craftsmanship that runs throughout the house. Then there’s the spacious bunkroom on the second floor, perfect for younger family members or guests, complete with a walk-in closet and nearby full bathroom. These additional rooms ensure that there’s space for everyone, making the home an ideal gathering place.


Exterior
Walking outside, the vaulted outdoor living area echoes the grandeur of the interior. It’s a seamless transition from the comfort of the indoors to the natural beauty of the mountain setting. The outdoor living space, complete with its own vaulted ceilings, is perfect for enjoying fresh air, incredible views, and memorable moments with loved ones, all year round.

The High End Mountain House Plan with Bunkroom is not just a home; it’s a lifestyle—a haven where luxury meets the laid-back mountain life. With every room designed to offer comfort, beauty, and functional luxury, this property is the dream home for those who aspire to live a life of relaxation, adventure, and understated elegance amidst nature’s splendor.
