Luxury Country Craftsman Home Plan with Flex Room and Sport Court (Floor Plan)

This floor plan has a super cool exterior with board and batten siding and fancy rooflines that look so neat. When you step inside, there’s a cozy foyer with a study right there for some quiet time.
I can’t wait to tell you all about the awesome spaces inside and how they all connect.
Specifications:
- 5,687 Heated S.F.
- 6 Beds
- 3.5+ Baths
- 2 Stories
- 3 Cars
The Floor Plans:




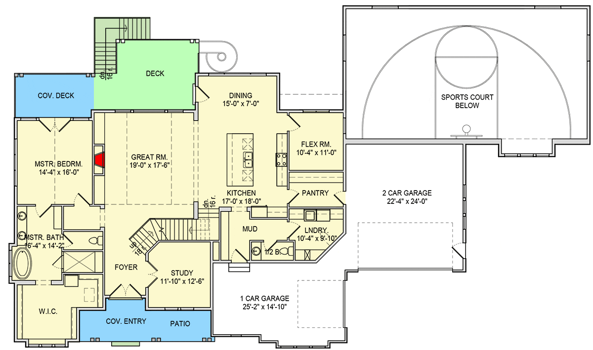
Foyer and Study
As soon as you walk inside, you’ll find yourself in the foyer. It’s like a welcome hug for all who enter.
To the right, there is a study.
This space is perfect for schoolwork or reading a book. It feels like stepping into a quiet little world.
I think it’s great to have a study right at the entrance–what do you think about having a special spot so close by? It could double as a small office too!

Great Room
Moving straight ahead, you’re going to find the Great Room.
Oh, it’s a grand space!
There’s a fireplace which makes everything warm and cozy. I imagine this room as the heart of the house where everyone gathers.
The big windows overlooking the deck bring in lots of sunshine. It connects seamlessly to the kitchen, which is just perfect for family hangouts or movie nights.
Wouldn’t it be nice to have an open space like this for hanging out with family and friends?

Kitchen and Dining
Adjacent to the Great Room, there’s the kitchen and dining area. The kitchen has a great oversized opening making it feel connected to everything.
You have all the space you need here to make meals. There’s also a pantry, which is very handy for storing snacks and ingredients.
When you look at the dining area, imagine having breakfast there with sunlight pouring in. It’s a simple but lovely corner for meals.

Flex Room
Behind the kitchen, there’s something called the Flex Room.
Now, I find this super interesting—what would you want to use it for?
It could be a playroom, a craft area, or even a guest room. The possibilities are endless!
This room waits for your finishing touch.

Master Bedroom
Then, there’s the Master Bedroom on the main level.
It’s nice having the master bedroom downstairs, especially if you like having privacy and a bit of silence. The Master Bath attached offers huge comfort with its elegance—imagine having your own spa-like retreat at home. There’s also a walk-in closet, which means lots of room for clothes and shoes! I think having everything right here is so convenient.
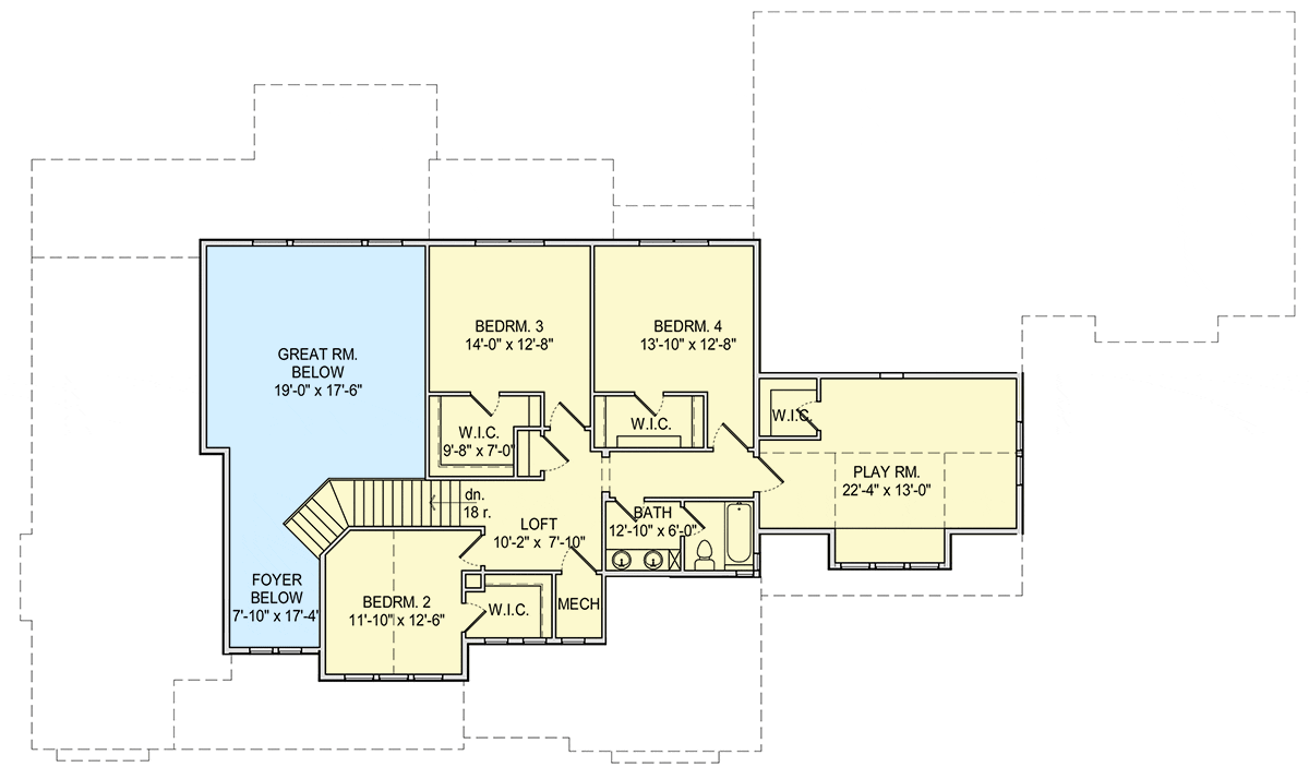
Upper-Level Bedrooms
Let’s head upstairs now. There are three bedrooms here, perfect for family or visitors.
Each has its own charm and usefulness. Bedroom Two is linked to a loft area, a small additional space that can be used for games or relaxation.
Bedrooms Three and Four have roomy closets and share a bath designed to make mornings easier for everyone. Isn’t it smart how they placed everything so conveniently?
Playroom
Oh, I almost forgot the Playroom!
It’s located above the garage and is spacious. This room is like a hidden gem where kids can play freely.
Keeping toys and games in one spot makes clean-up a breeze, right?
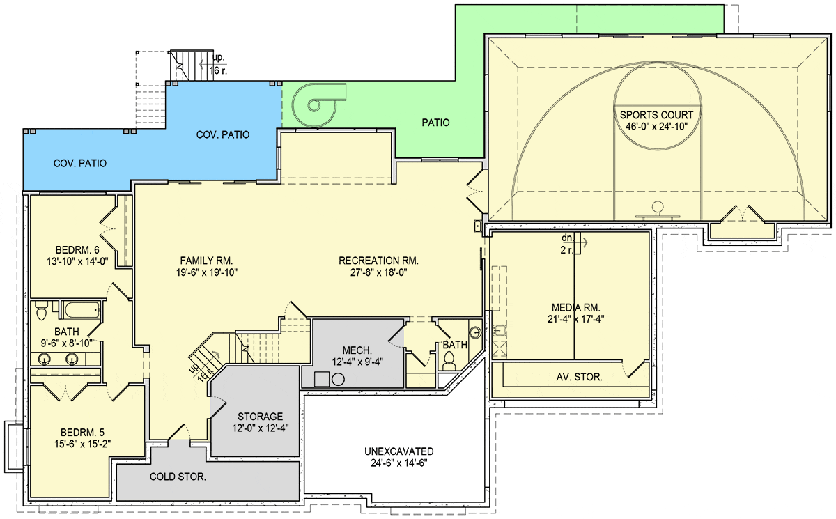
Lower Level Fun
Moving downstairs, the lower level really feels like a place of enjoyment.
It includes a Recreation Room that leads to a covered patio, offering great outdoor views. I love this part because it makes you feel connected to the outside world.
The sport court is a surprise! Who wouldn’t want a personal court for some sporty fun?
The Media Room is another fantastic area, perfect for watching movies with family. Add some cozy furniture and it becomes a personal theater!
Bedrooms on this level are separate by a bath. This floor is always buzzing with activity, don’t you think?
Practical Spaces
Lastly, we should talk about some practical spaces like the Mudroom and Laundry room located on the main floor between the kitchen and garage. These are so important for keeping things on track and organized. The garages–both single and double–offer plenty of room for cars, bikes, and storage. What’s your favorite feature so far?
I think this house is quite versatile, with something for everyone. The spaces offer comfort and adaptability, making it feel like a living, working, and playing paradise.
What changes would you think of if this were your home? Would a reading nook or mini library fit anywhere?
I love thinking about different ways to make a house feel like your own special place. Let your imagination wander!
Interested in a modified version of this plan? Click the link to below to get it and request modifications.
