
There’s something truly inviting about a home that manages to feel modern and warm from the moment you arrive.
With its balanced farmhouse exterior featuring vertical wood siding, crisp stone details, wide windows, and a sweeping porch, this 2,936-square-foot multi-level plan makes a strong first impression.
The curb appeal draws you in and hints at the sunlight and space inside. Each room serves a clear purpose, and the layout feels adaptable for real life.
I’d love to walk you through each space and show you how this design supports everything from lively mornings to relaxing evenings.
Specifications:
- 2,936 Heated S.F.
- 3 Beds
- 2.5 Baths
- 1 Stories
- 3 Cars
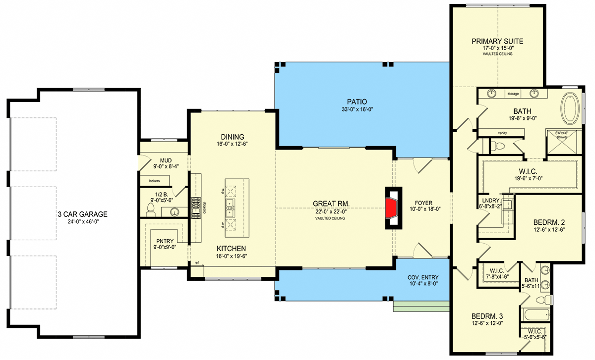
The Floor Plans:


Covered Entry
As you approach the house, a covered entry welcomes you and offers shelter before you come inside.
The generous width and oversized windows on each side set the mood, hinting at the bright, airy rooms beyond.
Right away, you can sense the strong connection to the outdoors—a Scandinavian touch that runs throughout the home.

Foyer
As you come in the front door, you land in a foyer that feels more like a gallery than a simple hallway.
It’s wide and open, and your eyes are drawn straight to the vaulted ceiling of the great room.
I like how this foyer acts as a natural hub. You can head right toward the bedrooms, left toward the living areas, or straight ahead to the main entertaining space.
It makes the daily flow of people feel easy and natural.

Great Room
The great room is the heart of the house. Thanks to the vaulted ceiling, the space feels expansive yet still comfortable.
I can see this being the spot for both relaxing evenings and lively get-togethers. Oversized windows along the back wall flood the room with light.
The fireplace becomes a true focal point, combining contemporary style with farmhouse warmth. No matter if you’re reading a book or gathering friends, the space stays inviting and bright.

Kitchen
Just off the great room, the kitchen features a huge island that does it all: meal prep, fast breakfasts, homework, and more.
The layout keeps the sink and main work areas right in the middle of the action, so you never feel cut off from the great room or dining area.
I notice the walk-in pantry nearby—it’s spacious enough for bulk groceries and small appliances, keeping clutter out of sight.
The mix of modern cabinetry and farmhouse-inspired finishes keeps everything feeling fresh and welcoming.

Dining
The dining area isn’t walled off. It flows directly from the kitchen, making both everyday meals and special gatherings easy.
There’s room for a long table and quick access to the patio, so you can host a crowd or keep it simple.
I think the strong connection to the outdoors here is a real win. Natural light fills the space, and the view brings in instant ambiance.

Mud Room
As you enter from the garage, you pass through a mud room that’s built for everyday life.
Built-in lockers are ready for backpacks, sports gear, and muddy boots, which means less clutter at the door.
I appreciate that this drop zone keeps messes contained, and its location is perfect—close enough to use daily, but out of direct view from living spaces.

Pantry
The walk-in pantry near the kitchen deserves special mention. When you walk in, you see deep shelving so everything’s visible and easy to grab.
It’s not just for groceries—you can stash cleaning supplies, holiday serving pieces, or even set up a coffee station.
I think having this kind of storage close to the kitchen makes cooking and entertaining much simpler.

Half Bath
Guests can quickly reach the half bath just off the mud room. Though compact, it’s placed so that visitors don’t have to wander through private bedroom spaces.
I notice how this layout keeps public and private zones separate, which really helps keep daily routines on track.

3-Car Garage
The garage is spacious enough for three cars plus extra storage. You can organize tools, bikes, or even set up a small workshop if you want.
With direct access to the mud room, bringing in groceries is a breeze, rain or shine.
I think anyone with hobbies or gear will appreciate the flexibility here.

Patio
From the dining or great room, you move out onto the patio, which stretches a generous 33 feet.
There’s plenty of space for a grill, lounge chairs, or a dining set for meals outside.
The way the patio wraps around the living area really connects indoors and outdoors. On warm nights, I can just picture this space buzzing with friends or serving as a quiet retreat at sunset.

Bedroom 3
Heading down the hallway from the foyer, you find Bedroom 3 tucked in its own corner for maximum privacy.
It works well as a guest suite or a teenager’s getaway. There’s a walk-in closet that I think makes staying organized much easier, plus direct access to a shared bathroom.
This setup offers both comfort and independence for guests or family.

Bath (Connected to Bedroom 3)
The nearby bathroom serves Bedroom 3 and can also be used by visitors. The layout is efficient, with a vanity, toilet, and a shower-tub combo.
Having a bathroom right here is a practical touch for busy households, and you can coordinate the finishes with the rest of the home’s style.

Walk-In Closet (Bedroom 3)
This walk-in closet isn’t just for clothes. There’s space for luggage, games, or even a small desk.
I love having this kind of flexibility—it’s a big reason ranch-style plans can work so well as your needs shift.

Bedroom 2
Next in the hallway is Bedroom 2, located between the primary suite and Bedroom 3.
It’s a great spot for a child, guest, or home office. With a large window for light and another walk-in closet, it’s easy to keep things tidy.
I think this design helps you avoid running out of storage as your family grows.

Laundry
The laundry room sits right between the bedrooms for maximum convenience. There’s plenty of room for your washer, dryer, folding, and maybe even a small sink.
I appreciate that laundry is tucked away but still easy to get to—no hauling baskets up and down stairs or across the house.

Primary Suite
At the end of the hall, the primary suite feels set apart for privacy, but it’s still close enough to check in on kids or guests.
The room is roomy, with a vaulted ceiling that adds airiness and light. Oversized windows let you wake up to the sunrise, and the layout feels calm and restful.
I think the sense of retreat here is something you’ll really value.

Primary Bath
The primary bath has a real spa feel. There’s a soaking tub perfect for unwinding and a large walk-in shower for busy mornings.
Dual vanities help prevent crowding. There’s plenty of storage with drawers, cabinets, and shelves, so you can keep everything organized yet close at hand.

Walk-In Closet (Primary Suite)
Connected to the bath, the walk-in closet is spacious, more like a dressing room than a simple closet.
There’s room for seasonal clothes and those special outfits you only wear occasionally. I think having all this space makes mornings easier and keeps the bedroom peaceful.

Storage (Primary Suite Bath)
Within the primary bath, a dedicated storage area is perfect for towels, linens, and extra essentials you’d rather keep hidden. This built-in storage makes it simple to stay tidy without sacrificing convenience.

Hall Connections and Flexibility
The hallway linking the bedrooms acts as a buffer, keeping noise from the main living areas from reaching the sleeping spaces.
There’s a nice flow to how the rooms are placed. Each bedroom gets a generous closet and easy access to a full bath.
I appreciate how the layout balances connection and privacy.

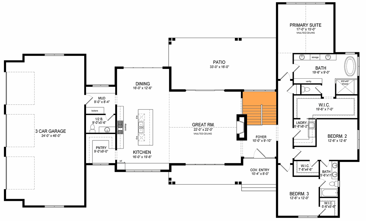
Staircase to Additional Level
Back at the foyer, you’ll find the staircase to the upper level. The location feels intentional—it doesn’t break up the openness of the main floor and is easy for everyone to reach.
The wide stairs feel welcoming, not like an afterthought.

Upper Level / Bonus Space
At the top of the stairs, an open bonus area gives you tons of options.
This space could be a playroom, home gym, media room, or a big office. Its open layout means it adapts as your needs change, whether you’re hosting sleepovers or running a business from home.
Natural light continues the bright, airy feeling from downstairs. If you need extra storage or a spot for your hobbies, this level will come in handy.

How The Levels Connect
Moving from floor to floor feels easy and natural. The main level includes all the essentials—living, dining, kitchen, and bedrooms—while the upper level offers extra space for whatever comes next.
I think the flexible use of square footage here is a major strength. The layout is practical and leaves room for you to make it your own.

Final Thought on Flow and Function
What stands out to me is how every detail makes daily life smoother. The mud room helps control chaos, and the great room makes gatherings simple.
Whether you’re throwing a party on the patio, relaxing in the primary suite, or getting organized in the garage, you can feel the thoughtful planning in every space.
This is a house that’s ready to grow and change right along with you.

Interested in a modified version of this plan? Click the link to below to get it from the architects and request modifications.
