
There’s something magnetic about a home that feels both fresh and familiar. This modern farmhouse balances everyday comfort with a thoughtful, multi-level layout that encourages you to explore.
No matter if your days are busy or relaxed, there’s a spot here for every moment, from early coffee on the covered porch to late-night laughs in the upstairs loft.
Let’s take a walk through each space, following the natural flow from the welcoming entry, through the main living zones, and up to the private bedrooms, before heading down to the flexible lower level.
Specifications:
- 4,362 Heated S.F.
- 4 Beds
- 3.5 Baths
- 2 Stories
- 3 Cars
The Floor Plans:



Front Porch
You approach the home and immediately notice the front porch. It stretches wide, giving you plenty of covered space to sit and watch the world go by.
The crisp white siding, dark stone, and black-trimmed windows create a striking and inviting look.
Personally, I think it’s the generous porch that truly feels welcoming. With room to spread out on both sides of the main entry, you can picture rocking chairs, leafy planters, and neighbors stopping to chat on warm evenings.

Entry
Stepping inside, you’re greeted by a foyer that feels open but still comfortable. Natural light pours in, reflecting off the clean lines and muted colors.
There’s enough space here to welcome several guests without feeling crowded. I like how this area connects you to key rooms right away.
Everything feels linked, but never cramped.

Office
Just off the entry, the office is set behind a pair of windows. Its location is intentional, offering enough privacy for focused work or video calls, but staying close to the main living areas for quick breaks.
The room’s size is generous, fitting a large desk and bookshelves easily. If you work from home, this setup makes it simple to separate business from the rest of your day.

Music Room
Across from the office, the music room stands out as a special feature. You might use it for playing an instrument, relaxing with a book, or setting up a cozy nook.
I’ve noticed these bonus rooms are popular in transitional homes—they give you room to personalize your space with a piano, drum kit, or a comfy sectional.

Formal Dining
Just past the foyer, the formal dining room sits slightly apart, creating a space for meals that feel a bit more special.
Its location near the entry means you’re not hauling dishes across the house. I think it’s ideal for holidays or larger gatherings.
You could easily fit a long table here, with space for serving buffets or showing off seasonal centerpieces.

Kitchen
Continue from the dining area, and you’ll find the kitchen as the true centerpiece of the main floor.
There’s a large central island, plenty of counter space, and deep storage. The walk-in pantry is a detail I really appreciate—it keeps clutter out of sight and groceries organized.
The kitchen connects directly to the casual dining area, making breakfasts and homework easy to manage side by side.

Casual Dining
The casual dining space is bright and relaxed. Windows along one wall bring in the morning sun, so the room feels cheerful even on cloudy days.
This area flows right into the kitchen, so you can be part of the conversation while cooking or eating.
It’s easy to imagine daily meals here, filled with laughter and clinking plates.

Family Room
Take a few more steps, and the family room opens up before you. The open concept design keeps the kitchen, dining, and family spaces visually connected.
A fireplace adds literal and visual warmth. Large windows overlook the backyard, and the room itself is spacious enough for movie nights, yet cozy enough for quiet evenings in.
If you like hosting, this layout means everyone can stay together no matter what’s happening.

Covered Deck
Double doors lead out to the covered deck, which is divided into two generous zones.
The first section is wide enough for an outdoor dining table or sofas. The second area extends the living space, making it perfect for grilling or setting up a lounge.
You’re protected from sun and rain but still get to enjoy backyard views and breezes.
I think this is the spot where summer evenings really come alive.

Master Bedroom
Back inside, the master suite is quietly located at the rear of the house. I love this placement because it gives you privacy, away from the main living areas.
The bedroom feels airy, with room for a king-size bed and a sitting area by the window.
You can tell it’s designed as a retreat, offering a place to unwind after a long day.

Master Bath
The master bath is spacious, with touches that make daily routines feel special. There’s a soaking tub, a walk-in shower, and dual vanities.
You won’t be elbowing each other during the morning rush. I also noticed extra storage and a private toilet area, making the space both practical and peaceful.

Walk-In Closet
Connected to the master bath, the walk-in closet is impressively sized. With shelves, hanging rods, and plenty of open space for baskets or shoe racks, staying organized is a breeze.
If you appreciate storage, this closet has you covered.

Pantry
Between the kitchen and master suite wing, the walk-in pantry offers deep shelves for bulk groceries, appliances, and snacks.
I’m a fan of these larger pantries. They keep the counters clear and make grocery shopping feel less like a chore.

Laundry Room
The laundry room sits conveniently close to the bedrooms and garages. There’s ample space for sorting, folding, and even a utility sink.
The layout keeps laundry duty away from the main living areas but still makes it easily accessible.
If you’ve carried baskets up and down stairs before, you’ll appreciate this convenient location.

Powder Room
Near the kitchen, a powder room serves guests and keeps your private baths undisturbed. It’s a small but essential feature, ideal for visitors during parties or family gatherings.

Mudroom
Next to the laundry and garage entrances, the mudroom provides hooks, cubbies, and a bench. This space is practical—shoes, backpacks, and coats all have a place, keeping the rest of the house cleaner and more organized.

2-Car Garage
The two-car garage offers plenty of parking and storage. There’s room for bikes, tools, and gardening gear, and you have easy access to both the mudroom and the main house.

1-Car Garage
A separate single-car garage sits close by, perfect for a collector car, workshop, or even a teenager’s first ride. The split-garage design gives you flexibility for storage and projects without feeling cramped.

Stairs
The staircase is located at the center of the main floor, making it easy to move between levels. I like how it’s placed between the entry and family spaces, so you’re always close to the action.
Let’s head upstairs and see what’s waiting for you there.

Loft
At the top of the stairs, a loft area gives you a second living space.
This could become a cozy TV spot, a homework center, or a teen hangout. The view to the main floor below adds a sense of openness, and the loft ties the upstairs bedrooms together nicely.

Bedroom Two
The first room on this level is bedroom two, located at the front of the home.
It’s bright and features a closet that can handle growing wardrobes. Its location near the loft lets kids or guests enjoy a bit of independence while still feeling connected.

Bedroom Three
Next is bedroom three, which offers more square footage and its own closet. With easy access to the upstairs bath, this room works well for an older child, guest, or even a second office.

Bedroom Four
Bedroom four is just beside bedroom three and shares a hallway bath. The layout keeps siblings or guests close, but each room still feels private.
Natural light fills each bedroom, and the closets are deep enough to handle all the extras you want out of sight.

Bathrooms
Upstairs, there are two bathrooms to keep mornings moving smoothly. Each one features a shower-tub combo and plenty of storage.
With multiple sinks, there’s less waiting, which I think is a real advantage during busy weekdays.
Now, let’s check out the lower level and see how this home adapts to every need.

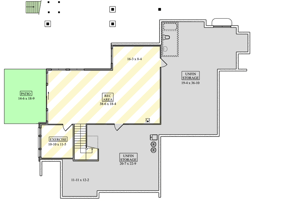
Recreation Area
Downstairs, a wide, open recreation area stretches nearly the full width of the house. There’s room for a pool table, big screen, gaming setup, or open play.
The flexible layout lets you make it your own—host parties, set up a home theater, or give kids a space to burn off energy, rain or shine.

Exercise Room
Right off the rec area, an exercise room provides privacy and focus. At-home workouts are easier with a dedicated space like this, whether you prefer free weights, yoga, or cardio equipment.

Patio
From the lower level, you can step directly onto the patio. It’s a shaded retreat, protected by the covered deck above.
You’ll feel connected to the outdoors, but with more privacy than the main deck. Personally, I’d choose this spot for quiet afternoons or winding down in the evening.

Unfinished Storage
Two large unfinished storage areas are also on this level. These spaces are practical, giving you room for seasonal decorations, out-of-season clothes, or hobby equipment.
You won’t need to clutter up the main living spaces when you have storage like this.
This home’s layout is designed for real life. Each area connects thoughtfully, offering privacy when you want it.
There’s space for every interest and stage of life, waiting for you to add your own story.

Interested in a modified version of this plan? Click the link to below to get it from the architects and request modifications.
