Two-Story Country House Plan with Optional Bonus Room Above Garage – 2584 Sq Ft (Floor Plan)

There’s something magnetic about a classic farmhouse that blends timeless charm with thoughtful modern design, and this two-story country home fits that bill perfectly.
With its sweeping front porch, crisp siding, and a wide, inviting footprint, you can easily imagine lazy afternoons with lemonade or community barbecues on a summer night.
As you enter, you’ll find nearly 2,600 square feet thoughtfully laid out across two levels—each room crafted for comfort, connection, and a touch of everyday luxury.
Specifications:
- 2,584 Heated S.F.
- 3 Beds
- 3 Baths
- 3 Stories
- 3 Cars
The Floor Plans:


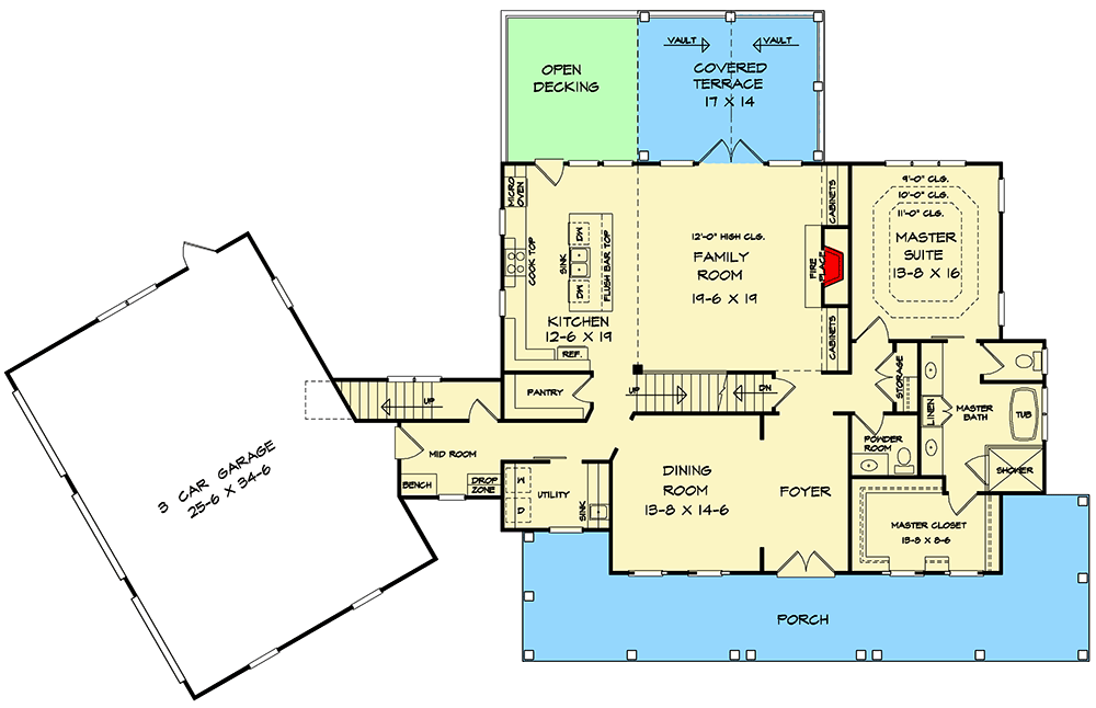
Porch
Let’s start right up front. The porch stretches the entire width of the home, giving you more than enough space for a mix of rockers, a porch swing, or even a dining set if you enjoy your morning coffee outdoors.
Its covered design means you’ll actually use this porch, rain or shine, and the views of the landscaped front yard offer a calm start and end to your day.

Foyer
Through the main door, you enter a foyer that immediately feels open and welcoming. Natural light filters in from the glass panels, hitting the warm wood floors.
There’s plenty of room to greet guests, set up a welcoming entry bench, or create a seasonal display.
The foyer connects directly to the dining room and gives you a glimpse toward the family room beyond, allowing you to sense the home’s flow from the moment you walk in.

Dining Room
Just to the left, the dining room sits front and center, with generous space for a large table.
I think this room works well for both formal holiday dinners and casual family meals.
The location makes it easy for guests to settle in right away, and the proximity to the kitchen means you won’t be hauling dishes across the house.
Its placement at the front of the home also lets in plenty of light, adding to that open, airy feeling.

Family Room
Continue toward the rear and you’ll find yourself in the family room, with soaring ceilings and a fireplace anchoring the space.
It’s roomy enough for a sectional, a couple of armchairs, and a big coffee table for board games or snacks.
The open connection to the kitchen and access to the outdoor covered terrace gives this room a lively hub feel—perfect for movie nights or lazy weekends.
I noticed the direct sightline from here to the backyard, so you can enjoy the view even while relaxing indoors.

Kitchen
The kitchen is laid out so you’re always part of the action. A wide central island means there’s space for meal prep, homework, or informal breakfast gatherings.
Double sinks, plenty of counter space, and the walk-in pantry just steps away keep clutter out of sight.
I think the positioning next to the family room and open decking outside makes it perfect for easy indoor-outdoor entertaining, and families will appreciate the seamless connection between all these areas.

Pantry
If you love to cook, you’ll appreciate the large walk-in pantry just off the kitchen.
There’s enough shelving to handle Costco runs, baking supplies, and maybe even a small appliance center.
With the pantry right in the flow of the kitchen, you can keep everything organized and within reach.

Open Decking
Step outside from the kitchen and you’re on the open decking area, perfect for grilling or just catching a bit of sun.
There’s room for an outdoor dining set and lounge chairs, so you get the flexibility to use this space however you want—host a casual barbecue, tend to potted plants, or watch the kids play in the backyard.

Covered Terrace
Right next to the open decking, the covered terrace runs almost the full width of the back of the house.
With decorative trusses and plenty of space, it’s ideal for three-season living.
I could see this being where you unwind in the evening or host dinner parties when the weather’s mild.
The covered design lets you keep furniture out here without worrying about rain, and the direct access to the family room makes it easy to flow in and out during gatherings.

Master Suite
Located on the main level for maximum privacy, the master suite sits on its own wing.
This is a true retreat—generous in size, with three windows letting in plenty of light.
The flow from bedroom to bath is smooth, with no awkward corners or wasted space.
Placing the master suite on the main floor is a real bonus for anyone planning to stay in the home long term.

Master Bath
The master bath has both a soaking tub and a walk-in shower, plus two sinks and a private water closet.
There’s enough space to actually move around, and a large linen closet keeps towels and toiletries handy.
If you like a touch of spa luxury at home, this setup won’t disappoint.

Master Closet
Connected directly to the bath, the master closet is room-sized and well laid out. Built-in shelving, hanging rods, and enough square footage for serious wardrobe space mean you can keep everything organized and accessible.
I think this kind of closet makes daily routines a little more enjoyable.

Powder Room
Just off the main hallway, the powder room is convenient for guests and keeps the main bathroom private.
Its location means visitors never have to wander far from the main living areas, and you can easily pop in from the kitchen or family room.

Utility Room
Between the kitchen and garage, you’ll find the utility room. Laundry here is a breeze—there’s space for washer, dryer, folding, and storage.
It’s close enough to the main traffic flow that you can handle chores without being separated from the action but distant enough to keep any mess out of sight.

Drop Zone
As you enter from the garage, you pass through a practical drop zone. Hooks, cubbies, and a small bench let everyone stash shoes, coats, and backpacks right as they come in.
I think this area is one of those small details that makes everyday life less chaotic, especially for busy families.

Mid Room
Next to the drop zone, the mid room acts like a small buffer space between the garage and the main living areas.
You could use it for extra storage, a pet station, or even as a spot to stage groceries before moving them into the kitchen or pantry.

Bench
The built-in bench next to the mid room is perfect for slipping shoes on and off or for setting down bags.
It’s one of those features you don’t realize you need until you have it—and then wonder how you managed without it.

Three-Car Garage
The angled three-car garage is impressive. It gives you tons of space for vehicles, and there’s plenty of extra room for bikes, tools, sports gear, or even a workshop.
Its direct connection to the home through the mid room and drop zone keeps you dry and organized, regardless of the weather.
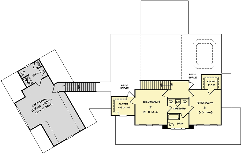
Now let’s head upstairs and see how the private family spaces come together.

Stairs and Landing
The staircase rises from the main hallway and leads to a landing that divides the upstairs into two distinct wings.
I like how this layout gives everyone some breathing room while keeping things close enough for easy communication.

Bedroom 2
Bedroom 2 sits to the left off the landing. It’s generously sized and gets nice natural light from the big window.
There’s a large closet, making it easy to keep things tidy, and enough wall space for a full bedroom set or even a small study area.

Bedroom 3
Crossing the landing, Bedroom 3 mirrors Bedroom 2 in size and setup, with its own spacious closet.
The window placement means both bedrooms feel bright and welcoming, and the layout gives siblings or guests real privacy.

Dressing Area
Between the bedrooms, you’ll find a clever dressing area. This space makes morning routines less hectic, with a built-in linen closet and space for storage or a vanity.
I think having a shared dressing area keeps the main bathroom from becoming a bottleneck, especially during busy mornings.

Shared Bath
Just behind the dressing area, the upstairs bath serves both bedrooms. There’s a full tub-shower combo, a wide vanity, and lots of storage.
Its central location is convenient for kids, guests, or anyone using the optional bonus room.

Optional Bonus Room
Over the garage, a huge optional bonus room stretches out, complete with its own bathroom.
This space can become just about anything: a home office, media center, playroom, or even a guest suite.
With windows on two sides, there’s plenty of natural light, and the attached bath makes it totally self-sufficient.
I think this flexibility is a major selling point—the room can evolve with your family’s needs over time.

Upstairs Bath (Bonus Room)
The bathroom attached to the bonus room is a full bath, giving you even more options for how you use the upper level.
Whether hosting long-term guests or setting up a teen hangout, having a dedicated bathroom up here is a real advantage.

Attic Spaces
Along the upstairs hall, you’ll notice attic access on both sides. These attic areas add valuable storage—think holiday decorations, suitcases, or even off-season clothing.
Having easy access means you don’t have to clutter closets or haul things to a distant basement.
With all the rooms explored, you can see how this home’s layout encourages both gathering and privacy.
The thoughtful connections between spaces mean daily routines are easier, whether you’re hosting holiday dinners, tackling homework, or unwinding on the porch.
This is a home that grows with you, offering plenty of space for life’s big and small moments.

Interested in a modified version of this plan? Click the link to below to get it from the architects and request modifications.
