Two-Story New American House Plan with Home Office and Den – 4048 Sq Ft (Floor Plan)

Stepping up to this modern farmhouse feels like arriving at an inviting retreat built for daily living and memorable gatherings.
Crisp white siding, a long covered porch, and rows of big windows signal warmth and hospitality from the curb.
With 4,048 square feet spread across three well-planned levels, there’s room for family, entertaining, hobbies, and plenty of storage—without sacrificing comfort or flow.
Let’s explore every space, from the front porch to the farthest corners of the basement.
Specifications:
- 4,048 Heated S.F.
- 4 Beds
- 4 Baths
- 2.5 Stories
- 2 Cars
The Floor Plans:




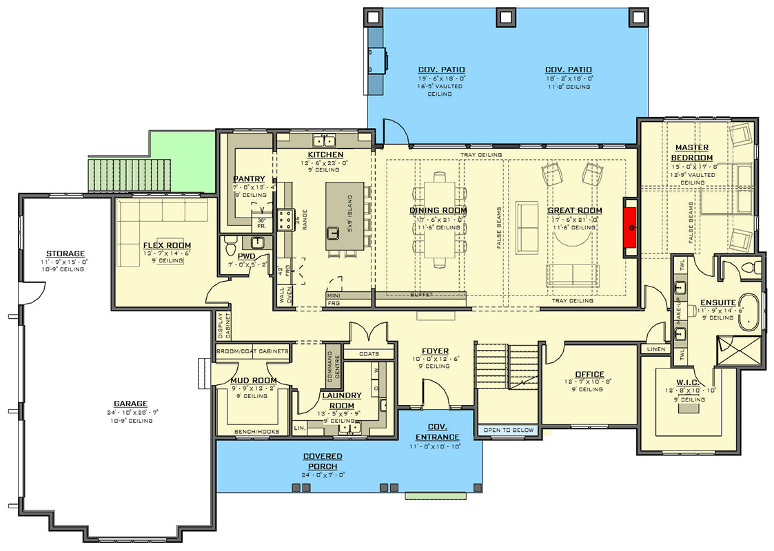
Covered Porch & Cov. Entrance
Your first impression comes from the broad front porch, which stretches across the width of the home.
It’s easy to imagine a couple of rocking chairs out here, maybe even a porch swing.
The porch wraps around to a separate covered entrance, providing guests and family an extra layer of shelter before you come inside.
Coat hooks and a bench wait just inside the door—no more tripping over shoes or searching for a spot to hang your jacket.

Foyer
When you enter, you find yourself in a spacious foyer. The foyer is wide enough for a console table or a bench, and there’s a large coat closet right where you need it.
From here, you get glimpses of the dining area ahead and the staircase leading up, giving a sense of openness from the very start.

Office
Located to the right of the entry, the office is positioned for privacy and productivity.
It’s separated from the main living spaces, which makes it an ideal choice if you work from home or just want a quiet spot for reading and paying bills.
There’s enough space for a generous desk and shelving, and the window brings in natural light to keep things bright.

Laundry Room
Crossing over to the left off the foyer, you’ll find the laundry room. It’s more than just a hidden closet—there’s counter space for folding, storage for linens, and easy access right off the mud room, which means sports uniforms and muddy clothes have a direct path to the wash.
I think this layout works well for busy families.

Mud Room
The mud room acts as the gatekeeper between the garage and the main house. With built-in benches, hooks, and cabinets, every backpack and pair of boots has its place.
There’s even space for broom and coat cabinets, which keeps the clutter contained. This setup is perfect for keeping the rest of the house tidy, especially during wet or snowy weather.

Garage
Move through the mud room and you’ll find a massive three-car garage. There’s plenty of space for vehicles, bikes, and yard tools, plus an extra storage room at the back for holiday bins or outdoor gear.
Whether you’re unloading groceries or heading out to tinker with a project, this garage has you covered.

Flex Room
Connected to the garage and mudroom area is a flexible space that could morph into whatever your family needs most.
Playroom, hobby room, home gym, or even a second office—the large, open shape means you can change it up as your needs evolve.
I appreciate how this space doesn’t lock you into a single use.

Pantry
If you love to cook or entertain, the walk-in pantry beside the kitchen will probably be a favorite.
Floor-to-ceiling shelves offer storage for everything from bulk groceries to small appliances. There’s even space for a second fridge or freezer, keeping the kitchen clutter-free.

Powder Room
Conveniently placed near the kitchen and mudroom, the powder room is ready for guests or quick pit stops during a busy day.
It’s positioned just enough for privacy but easy to access from the main living area.

Kitchen
Moving toward the center, the kitchen really opens up. A huge island anchors the room with seating for quick breakfasts or homework sessions.
There’s ample counter space, a mini fridge, and a range that faces out toward the dining and living areas.
I like how this layout keeps the cook connected to the action but still gives you plenty of workspace.
The kitchen flows directly into the dining area, which encourages conversation and togetherness.

Dining Room
Right in the middle, the dining room features a tray ceiling and enough space for a large table.
Whether you’re hosting a holiday meal or grabbing a quick bite, it’s easy to imagine this space filled with laughter and conversation.
The buffet along one wall is perfect for serving dishes or storing special-occasion china.

Great Room
Beyond the dining area, the great room is designed for relaxing and gathering. With its tray ceiling and wide open footprint, it feels spacious but still cozy. There’s room for a sectional, a couple of armchairs, and a fireplace for chilly nights.
Natural light floods in from the back windows, and you can step right out to the patio for indoor-outdoor living.

Covered Patio
Two covered patios stretch across the back of the house, expanding your living space into the outdoors.
One side is vaulted, making it feel even more open.
Imagine grilling out here on summer evenings or hosting birthday parties with plenty of shade and shelter from the weather.
The easy access from the great room and kitchen makes entertaining a breeze.

Master Bedroom
The master suite is set off to one side for added privacy. When you enter, you’re greeted by a vaulted ceiling and big windows overlooking the backyard.
There’s enough space for a king bed, reading chairs, and a dresser—plus, the layout keeps it separated from the more active parts of the house.

Ensuite
Behind the master bedroom, the ensuite bath is spacious and bright. A soaking tub, walk-in shower, and double vanity let you spread out, while a private toilet area and direct access to the walk-in closet keep things convenient.
It feels like a true retreat from the day-to-day.

Walk-In Closet
In the master suite, the walk-in closet is huge. There’s room for clothes, shoes, and even a dressing bench in the middle. Direct access to the ensuite bath means your morning routine will be seamless.

Linen
The master suite area also includes a linen closet, great for storing towels and bedding close to where you need them.

Stairs & Open to Below
Just off the foyer, the staircase draws your eye upwards. The open railing lets natural light filter down, and you can see how the upper floor connects visually to the spaces below.

Head Upstairs
Climbing to the second story reveals a trio of bedrooms and a shared bath, all arranged along a central hallway.
This floor is ideal for kids, guests, or anyone who needs a bit of extra privacy.

Bedroom #2
At the end of the hall, Bedroom #2 feels extra special with its window seat, perfect for curling up with a good book.
The large window brings in plenty of light, and the room is big enough for a bed, desk, and dresser.

Bedroom #3
Bedroom #3 stretches wider and also features a window seat. I can picture this being a favorite spot for daydreaming or doing homework. The generous footprint means siblings or guests will have lots of space to spread out.

Bedroom #4
Further down the hall, Bedroom #4 sits by itself, giving a bit of extra quiet.
This would work well as a teenager’s room or for guests who like their own corner of the house.

Upstairs Bath
A full bath is shared by all three upstairs bedrooms, with double sinks to make busy mornings easier.
There’s a linen closet right outside for convenience, and the hall is wide enough for traffic flow, even when everyone’s getting ready at once.

Back to the Main Floor
Once you’ve seen the upstairs retreat, head back down to the main level. The transition is smooth, with the staircase returning you to the central living area.

Descend to Lower Level
The lower level extends your living space dramatically, with plenty of extra rooms for fun, fitness, and storage.

Rec Room
At the bottom of the stairs, you’re greeted by a massive rec room. This is the spot for movie nights, a pool table, or just hanging out with friends. There’s even a wet bar in one corner, complete with a fridge and dishwasher—for parties or snack attacks.

Games Room
Keep moving and you’ll find a dedicated games room. Set up video games, a ping pong table, or whatever suits your hobbies. It’s separate enough that noise won’t travel, which I think is a big plus for families.

Gym
Next to the games room, there’s a home gym space. No more excuses to skip a workout when you have a dedicated room for equipment and yoga mats right at home.

Heated Crawlspace
The lower level also includes a heated crawlspace. This is a bonus for storing items that you don’t want exposed to extreme temperatures, like holiday decorations or collectibles.

Bedroom #4 (Lower Level)
There’s a fourth bedroom down here, with its own closet and full-sized window. This space could work well for an older child, overnight guests, or even as a quiet retreat for someone who keeps different hours.

Bath (Lower Level)
A full bath sits just outside the basement bedroom, making this floor functional for long-term stays or in-law visits.

Storage
Storage space is plentiful in this home, and the lower level offers a huge room for seasonal gear, off-season clothes, or anything else you want out of sight but still easily accessible.

Mechanical Room
To keep everything running smoothly, the mechanical room is out of the way but easily accessible for maintenance.
It’s right where you need it for repairs and upgrades.
Everywhere you look in this home, there’s a sense of practical design and luxury, from the porch to the patios, living spaces to flexible rooms, upstairs retreats to the fun and function of the basement.
Each level flows into the next, and every room feels connected to both the outdoors and the rest of the home.
As you imagine life unfolding here, it’s easy to picture gatherings, quiet mornings, and a place that adapts with you year after year.

Interested in a modified version of this plan? Click the link to below to get it from the architects and request modifications.
