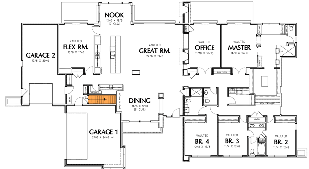
Stunning Contemporary Ranch Home Plan (Floor Plan)

Stepping up to this contemporary Northwest ranch, you immediately notice how the home feels both inviting and impressive, with its strong horizontal lines and big windows bringing in plenty of daylight.
The layout has an easy, natural flow, and the multiple levels promise flexibility for everyday living or entertaining.
Inside, you’ll find open rooms, flexible zones, and a blend of modern comfort with mid-century flair.
Let’s walk through the home together and see how the spaces fit your lifestyle.
Specifications:
- 3,938 Heated S.F.
- 4 Beds
- 3.5 Baths
- 1 Stories
- 3 Cars
The Floor Plans:



Foyer
You enter through frosted glass double doors into a spacious foyer filled with natural light from skylights above.

Warm wood details set a relaxed mood. A sleek black console offers a spot for your keys and mail, while wide-plank wood flooring guides you inside.


I appreciate how practical this entry feels, too. There’s a closet nearby for shoes and coats, so clutter stays out of sight.

Dining Room
Moving forward, the dining room opens up to your right. This area is generous and airy, centered around a sturdy wooden table and a modern chandelier.

Large windows let sunlight pour in, and stacked stone columns bring in a bit of Northwest character.

One wall features rich wood cabinetry for storing or displaying dishes. I think the open feel here is great for hosting big dinners or casual coffee mornings.
You also get nice views of the landscaping out front.
Great Room
Beyond the dining area, you’ll find the great room. Here, soaring ceilings and a full wall of sliding glass doors make the space feel grand and bright.

Light wood floors add warmth, and a sleek stone fireplace becomes the visual anchor on chilly evenings.

There’s comfortable seating for relaxing or gathering with friends, plus built-in shelving for your books or favorite artwork.

I love how easily you can step right outside onto the patio from here.
Outdoor Living
Stepping through those doors, you’re on a covered patio. There’s ample room for a dining set or lounge furniture, and the deep overhang means you’ll have shade on sunny days.
This space transitions smoothly from inside to outside, making it perfect for grilling, relaxing, or taking in the backyard views.
I can imagine enjoying both quiet mornings and lively gatherings here.

Kitchen
Back inside, the kitchen sits open to the great room and nook. The long island seats four, giving you lots of space to prep, serve, or just chat.

Dark wood cabinets and marbled granite countertops set a modern tone, while black pendant lights with orange interiors add a playful touch.

Stainless steel appliances line the walls, and a large walk-in pantry stands close by. I think the setup makes it simple to cook, entertain, and stay connected with everyone.
Nook
Just off the kitchen, there’s a bright nook surrounded by windows. This spot is great for everyday meals, with enough space for a round table and nice views of the backyard.
It feels casual and is close to the kitchen for quick snacks or breakfast. I like that this eating area feels a bit more private than the main living spaces, even though the layout is open.

Flex Room
To the left of the kitchen, there’s a flex room that really lives up to its name.
You could turn it into a playroom, home gym, craft studio, or even a second living area.
Vaulted ceilings make it feel open, and its location near the kitchen and garage is handy for busy families.
You’ll also find a built-in storage unit here, which helps keep things tidy.

Garage 1 and Garage 2
On this side of the house, you’ll find two garages. Garage 1 is extra wide—great for larger vehicles or added storage.
Garage 2 is deeper, which works well for a workshop or extra parking. Both garages connect directly into the house, so bringing in groceries is never a hassle, even in the rain.
Built-in planters outside add a welcoming touch.

Pantry, Storage, and Seat
Where the garage meets the main house, a small hallway contains a walk-in pantry for kitchen staples and a separate storage closet for household supplies.
There’s also a built-in bench seat, which makes it easy to take off boots or drop backpacks before heading further inside.
I think these thoughtful details really help keep daily life organized.

Office
Across the great room, the office sits in a quieter part of the house. Vaulted ceilings and large windows give it an open, airy feel.
There are built-in shelves for your books or decor, and it’s spacious enough for a big desk setup.
If you work from home or just want a peaceful spot for paperwork, this room works well.
I like that it’s close to everything, but still feels separated enough for focus.

Master Suite
Next to the office, the master suite offers a peaceful retreat. The bedroom is roomy, with space for a king-sized bed, sitting area, and a plant shelf along the window wall.

Natural light fills the space, and there’s direct access to the master bath. The spa-like bathroom features a freestanding tub by a picture window, a glass-enclosed shower, and twin vanities with rich wood cabinets.

There’s lots of space for two people to get ready, plus a walk-in closet with built-in organizers.

The whole suite feels private and relaxing—a true getaway at the end of the day.
Spa
Just off the master bath, a spa area gives you a spot to unwind. You can set it up with a sauna, soaking tub, or a quiet reading nook.
A window brings in natural light, making it a pleasant place to recharge.

Bedroom 2
Heading down the hallway, you’ll see bedroom 2. This room is bright and features a vaulted ceiling for added style.
It’s close to a full bathroom and linen closets, which is convenient for guests or family.
The side yard view adds a splash of green, and there’s enough room for a full bedroom set.

Bedroom 3
Next is bedroom 3, with a layout and size similar to bedroom 2. It’s a good fit for a child, guest, or extra office space.
These two rooms share a bathroom located just outside their doors. I appreciate that both bedrooms have quick access to shared spaces while still feeling separate enough for privacy.

Bedroom 4
At the end of the hall, bedroom 4 stands out for its extra space. A vaulted ceiling and large window make it feel cheerful and open.
This bedroom is also designed to be handicap accessible, which is a thoughtful option for anyone needing more room or special features.
There’s a closet for storage, and being at the end of the hall gives it a little more peace and quiet.

Shared Bathroom
Bedrooms 2, 3, and 4 share a nearby spacious bathroom. The modern vanity offers extra counter space and open shelving for towels.
There’s plenty of room for everyone to get ready, and a large mirror helps the space feel even bigger.
Simple, stylish finishes combine soft gray and crisp white with brushed metal fixtures.

Laundry
Close to the bedrooms, the laundry room feels both roomy and efficient. Side-by-side washer and dryer units sit under tall, espresso-colored cabinets, and there’s a utility sink with folding counter for chores.
A skylight brings in natural light, even when you’re doing laundry. I think this setup really helps keep your routine running smoothly.

Built-In Desk
Near the laundry, a built-in desk gives you a smart spot for homework, crafts, or handling paperwork.
The work surface is big enough for a computer and supplies, and its location near bedrooms makes it handy for families.
I noticed that every corner in this home has a purpose—nothing is wasted.

Linen Closets
You’ll spot two linen closets in the bedroom wing, perfect for towels, sheets, and cleaning supplies. These extra storage spaces mean you don’t have to run far when you need something.

Hallways and Connecting Spaces
The hallways here are wider than usual, which makes the home feel even more open.
Vaulted ceilings and plant ledges add interest and airiness. Every passage between spaces seems thoughtfully planned, helping the home feel unified instead of chopped up into separate rooms.

Stairs to Lower Level
Near the pantry and garage, you’ll find a staircase that leads down to the basement. Its location makes it easy to move between levels without interrupting the main living areas.

Basement
Going downstairs, you enter a huge unfinished basement. There’s a lot of potential here.
With all this square footage, you could set up a home gym, workshop, rec room, or even a media lounge.
Multiple exterior doors provide options for creating an in-law suite or keeping the area flexible for storage and hobbies.
I like that this open space lets you dream big and adapt as your needs change.
Coming back upstairs, you really notice how the different levels connect and offer unique spaces for every part of daily life.
I think this home does a great job of balancing openness and privacy, with so many ways to personalize each area.
Picture yourself enjoying quiet weekends or big family gatherings here—you’ll find it easy to make this home fit both everyday routines and special occasions.

Interested in a modified version of this plan? Click the link to below to get it from the architects and request modifications.
