3-Bed New American House Plan with Spacious Rear Porch (Floor Plan)

There’s something special about homes that greet you with a big, welcoming porch and crisp white siding.
Right away, you get that classic country vibe, but there’s a modern twist: big black-framed windows, warm wood touches, and a layout that works for just about any family.
This 2,400-square-foot New American farmhouse makes a big impression from the curb and has just as much to offer inside.
With 3 bedrooms, 2. 5 baths, and a mix of open and private spaces across multiple levels, you’ll find thoughtful details everywhere you look.
Specifications:
- 2,400 Heated S.F.
- 3 Beds
- 2.5 Baths
- 1 Stories
- 2 Cars
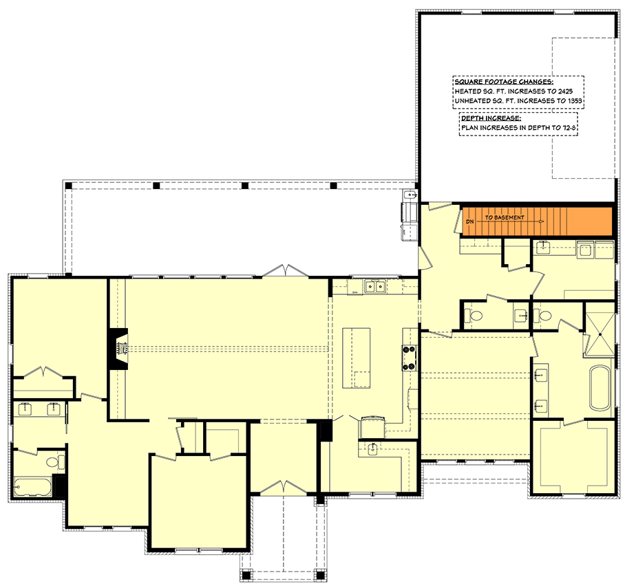
The Floor Plans:


Stoop
Begin your tour at the front stoop, sheltered under a vaulted roof with wood beams that create a welcoming feel on any day.
There’s plenty of room to add a bench or some potted plants. The covered entry keeps you dry while you grab your keys and sets a friendly tone before you even enter the home.

Foyer
After you walk in, you’re greeted by a bright foyer with an 11-foot ceiling overhead.
This isn’t just a pass-through; it’s roomy enough for a statement light or a slim console for those quick drop-offs when you arrive.
Sightlines open up immediately to the main living area, so you’ll always feel connected to the rest of the house.

Bedroom 2
Just off the foyer, Bedroom 2 sits in its own quiet corner. It’s generously sized, with a large window that fills the space with natural light.
This room works equally well as a dedicated guest suite, a home office, or a cozy retreat for someone who wants a bit more privacy away from the main family activity.

Den
Next to Bedroom 2, you’ll find the den. At just over 10 by 13 feet, this area is flexible—ideal for a home office, reading nook, or even a playroom.
Since it’s close to one of the main bedrooms, I think this spot is perfect for kids’ homework or creative projects.
It’s close enough to supervise but still separate from the busier living spaces.

Bath 2
Serving Bedroom 2 and the den, Bath 2 is a full bath with a tub/shower combo.
Its convenient location is especially helpful when you have guests or need a bathroom easily accessed from the front of the house.
A window brings in daylight, making the space feel fresh and comfortable.

Bedroom 3
Continue down the hall, and you’ll find Bedroom 3 at the far end. The window here faces the side yard, and there’s a walk-in closet for storage that truly meets daily needs.
Its proximity to Bath 2 makes morning routines much easier.

Great Room / Dining
Moving past the foyer, the home opens up into the Great Room and Dining area.
This is a massive, vaulted space stretching nearly 30 feet across. Soaring ceilings, exposed beams, and huge windows give the area a grand yet comfortable feel.
Natural light pours in from the back of the house, while open sightlines to the kitchen keep gatherings social.
If you’re curling up by the fireplace, entertaining friends, or hosting a family dinner, this layout encourages connection.
I think the scale here is just right—it feels cozy and impressive at the same time.
The dining area flows easily with the living area, so you can fit a large table or keep it casual with something smaller.

Kitchen
Turn toward the kitchen, and you enter a true chef’s workspace with a long center island that’s great for conversations and multitasking.
There’s room for stools along one side, making it easy to keep the cook company or help with homework while dinner simmers.
The kitchen is directly connected to the Great Room, and the layout focuses on function—the range sits in a generous stretch of countertop, while the fridge and pantry are only steps away.
I love that the designer included double wall ovens—they’re so handy for holiday baking or big family meals.
Cabinets run floor-to-ceiling along one wall, giving you enough space to actually stay organized. There’s even a window over the sink for a backyard view.
You’ll also find a cabinet entry right off the garage, which makes unloading groceries that much easier.

Pantry
Go into the walk-in pantry just behind the kitchen, and you’ll see what real storage means.
Shelving lines both sides, so you’ll never run out of space for staples, small appliances, or bulk snacks.
I think it’s one of those small details that makes daily life smoother.

Rear Porch
One of my favorite parts of this home is the rear porch, which stretches over 45 feet wide along the back.
It’s both covered and open to the backyard, offering the perfect spot to spend lazy weekends or host barbecues.
The covered area lets you enjoy outdoor living no matter the forecast. You can set up a large dining table, a lounge area, or even an outdoor kitchen along the wall if you love to grill.

Stairs to Basement
When you come back inside from the porch, the staircase to the basement is positioned near the entry from the garage.
This setup is practical and lets you bring in bulky items or move between floors without passing through the main living space.
The stairs are wide and bright, making the downstairs area feel like a true extension of the home.

Entry
The entry from the garage is built for real life. As soon as you walk in, you’ll see built-in lockers for shoes, bags, and jackets.
This mudroom-style area keeps family traffic organized and helps keep clutter out of the main living zones.

Powder Room (Pwdr.)
Just past the entry, the powder room sits along the hallway. It’s easy for guests to find or for quick stops as you come and go.
With its own small window, it feels bright and welcoming, not like a forgotten space.

Laundry
Next up is the laundry room. There’s plenty of space for a washer and dryer, shelving for supplies, and practical hanging space along the wall.
The room is set up for busy routines, letting you toss in muddy clothes after coming in from the garage or keep laundry day contained without baskets all over the house.
I appreciate that laundry isn’t just an afterthought here—the setup feels intentionally planned.

M. Bedroom
The master suite sits privately at the back of the home, just past the kitchen and laundry.
With dimensions over 14 by 16 feet, you can fit a king bed, a sitting area, and extra furniture without crowding.
Ceiling beams add character, and a large window looks onto the backyard, so you wake up to peaceful views.
There’s a quiet, retreat-like feel that sets this space apart from the busier parts of the house.

M. Bath
The master bath is just steps away and offers features you’d expect in a new farmhouse.
Dual vanities give you separate space for busy mornings, while a large soaking tub sits under a window.
There’s a custom shower with a built-in seat and plenty of room to spread out.
I think the layout is especially good for couples who want both shared and private areas in their morning routine.

M. Closet
Connected to the master bath, the walk-in closet is impressively spacious. Shelving runs the length of the room, with enough space for every season’s wardrobe.
There’s even room for shoe racks or a dressing bench in the middle. This is the kind of closet where you can actually see everything you own, not just what you wear most.

Garage
The garage is located at the front right of the home, with direct access to the entry and kitchen areas.
It fits 2 cars comfortably, with extra storage space along the walls. The tall ceiling lets you add overhead racks if you need more storage.
Bringing in groceries or sports gear is simple, thanks to the direct entry into the mudroom.

Linen
Toward the center of the home, the linen closet is set near the secondary bedrooms and bath. It’s a convenient spot for storing towels, sheets, and all those little things families always need close by.

Lower Level (Basement) and Stairs
When you head down the stairs off the mudroom entry, you reach the lower level.
The plan leaves it open for flexible use, and there’s a lot of potential here.
The footprint is nearly as large as the main floor, so you could finish it out for a huge family room, a gym, hobby space, or even add more bedrooms and a bath if needed.
The easy connection to the main floor means the basement feels like true living space, not just storage.

Final Thoughts
This home finds a great balance between farmhouse warmth and modern convenience. Every space is designed for daily living, not just for show.
You can gather with family in the great room, retreat to the master suite, or enjoy summer evenings on the back porch.
I think you’ll find comfort, storage, and a sense of home in every corner. There’s room to grow and spaces to make your own, all wrapped up in that inviting, timeless style.

Interested in a modified version of this plan? Click the link to below to get it from the architects and request modifications.
