4-Bed Mid Century Modern House Plan with Finished Lower Level – 3743 Sq Ft (Floor Plan)

Imagine arriving at a home that truly stands out against its mountain surroundings. Blending mid-century modern and prairie style design, this house offers not just curb appeal but also thoughtfully designed spaces across two full levels.
Picture natural stone, striking rooflines, and walls of glass that invite the outdoors in, all within 3,743 square feet of well-planned living space.
I’ll walk you through each area so you can see how this floor plan delivers both comfort and style, inside and out.
Specifications:
- 3,743 Heated S.F.
- 4 Beds
- 3.5 Baths
- 1 Stories
- 3 Cars
The Floor Plans:


Covered Porch
At the entrance, you’ll notice a wide covered porch with a vaulted ceiling overhead, creating a dramatic first impression.
There’s plenty of space for chairs or a bench, making it perfect for relaxing evenings with mountain views.
The mix of wood accents and stonework outside makes this space feel inviting as soon as you reach the front steps.

Entry
As you enter, you’re welcomed by a bright, open entryway. The tall ceilings help the space feel airy, and you can easily see into the great room from here.
The flow is immediate and natural, and I think the uncluttered design works well. The staircase is straight ahead, connecting both levels, while a hallway leads you deeper into the home’s main areas.

Den
To your right is the den—a flexible space every house needs. Thanks to the vaulted ceiling, this room has extra character and could serve as a home office, reading nook, or hobby area.
Its spot near the front keeps it private, but you’re still close to the main living spaces if you want to stay connected.

Powder Room
Just around the corner from the entry is the powder room. Like much of the home, it features a vaulted ceiling and a compact, practical design.
Guests won’t need to walk through the entire house to freshen up, which I think is a thoughtful touch for busy households.

Great Room
Heading forward, you’ll find the great room, a show-stopping open area with 17-foot ceilings. The fireplace serves as a focal point, framed by built-in shelves that are perfect for displaying collectibles or storing games.
Thanks to the wall of windows, this room is always bright and feels closely connected to the outdoors.
The open layout makes it easy to arrange furniture for cozy nights or bigger gatherings, and there’s an abundance of natural light.

Kitchen
To the right, the kitchen seamlessly connects to the great room, keeping the main spaces open and social.
A large island takes center stage, ideal for prepping meals or casual hangouts. Stainless appliances and efficient storage solutions are thoughtfully placed, and the cooktop faces the main room so you’re always part of the conversation.
I think this setup is perfect for anything from a quick breakfast to a full dinner party.

Breakfast Area
Next to the kitchen is the breakfast area, set in a corner with windows on two sides.
This spot is always filled with sunlight during meals. There’s room for a sizable table, making it a great place for relaxed family breakfasts.
If you love starting your day with a view, you’ll appreciate this nook.

Pantry
Just past the kitchen is the walk-in pantry. Wall-to-wall shelving means there’s room for everything from bulk groceries to large serving platters.
Keeping the pantry close to the kitchen helps you stay organized and makes meal prep much easier.

Laundry
Beside the pantry, the laundry room is designed for convenience. There’s space for a washer and dryer, a folding counter, and storage cabinets above.
With a direct entry from the garage, you can handle muddy boots or sports uniforms without tracking messes through the rest of the house.

Mud Room
Coming in from the garage, you pass through the mud room. This area, though small, is highly practical.
There are hooks for coats, a bench for bags, and other features that help keep the main living spaces clean.
I noticed the designer placed the mud room conveniently between the garage, laundry, and kitchen, which makes daily routines easier.

2-Car Garage and 3rd Car Garage
The main garage provides parking for two cars, while a third bay offers extra storage, a workshop area, or space for a special vehicle.
Both garage spaces connect directly to the mud room, making it simple to bring in groceries or gear.
I really like the glass-paneled garage doors, which tie even this utility space into the home’s modern mountain style.

Owner’s Suite
On the opposite side of the main floor, the owner’s suite is set apart for maximum privacy.
The bedroom is spacious, featuring 10-foot ceilings and large windows that let in plenty of natural light.
The location is removed from the busiest parts of the house, so it truly feels like a retreat where you can unwind.

Owner’s Bath
The owner’s suite includes a spa-like bathroom with a stand-alone tub, a separate shower, and dual sinks for convenience.
Ample natural light fills the space, and the roomy layout prevents any sense of crowding.
I think this bathroom works well for both quick morning routines and long, relaxing soaks.

Dressing Room
From the owner’s bath, walk straight into a spacious dressing room. This area offers more than just closet space—it’s a dedicated room for your wardrobe, shoes, and accessories.
There’s even room for a vanity or chair, letting you personalize the space.

Covered Decks
Moving through the great room’s rear doors, you’ll reach a pair of covered decks. One is sized for grilling or outdoor dining, while the other has space for lounge chairs or a fire pit.
The vaulted ceilings outdoors echo the drama inside, and stone columns connect the space to its mountain setting.
With so much glass facing this direction, you’re always near the views.

Stairs/Hallway
Back inside, the staircase leads you to the lower level. The central location of the stairs makes it easy to move between floors.
As you descend, you’ll pass a storage area—perfect for seasonal decorations, sports gear, or anything else you want out of the way but still within reach.

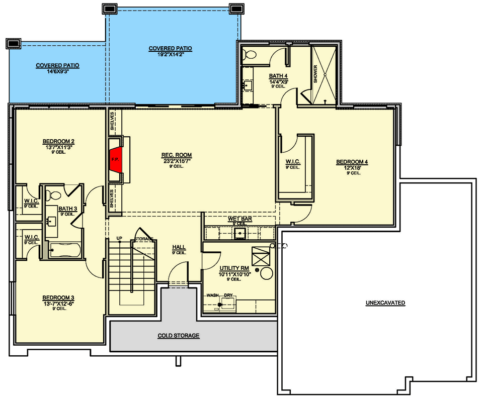
Rec Room
At the bottom of the stairs is the rec room, a spacious and versatile area.
It’s perfect for movie nights, game tables, or a play space for kids. A fireplace provides a cozy touch, just like upstairs.
Sliding doors open to the covered patios, making it easy to enjoy indoor and outdoor living.

Wet Bar
Along one wall, you’ll find a wet bar equipped with countertop space, a sink, and storage.
This makes entertaining effortless, whether you’re hosting a game night or setting out snacks for friends.
The bar’s placement keeps the main rec area open, so mingling is easy.

Covered Patios
Step outside from the rec room to two covered patios. These outdoor spaces are designed for relaxation, grilling, or gathering around a fire table.
You can easily enjoy both fresh air and shelter here. I think the way the rec room connects to outdoor living is one of this home’s best features.

Bedroom 2
Toward the rear, Bedroom 2 offers a quiet retreat with a walk-in closet and convenient access to the nearby bathroom.
It’s a great choice for guests or a teenager wanting their own space. The window brings in morning light, making it a cheerful place to start the day.

Bedroom 3
Next door, Bedroom 3 matches Bedroom 2 in size and features. It has another walk-in closet and is close to both the hall and the bathroom, so sharing is easy without feeling crowded.
These bedrooms are placed away from the rec room to keep things quiet at night.

Bath 3
Serving Bedrooms 2 and 3, Bath 3 is laid out efficiently with a full-size tub, a wide vanity, and durable finishes. I like that it’s positioned to be both private and easy to reach from the bedrooms.

Hall
The lower hallway connects the rec room with the utility room and the other bedrooms. It’s wide enough to avoid feeling cramped and keeps all the rooms feeling open and connected.

Utility Room
There’s a second utility room on the lower level, complete with washer, dryer, and extra storage. This is especially useful if you have guests or older kids downstairs, as everyone can handle laundry conveniently.

Cold Storage
Near the utility room is a large cold storage room. If you enjoy canning, collecting wine, or just need extra space for holiday bins, this area gives you the flexibility you need.
I think it’s a great bonus, especially in a mountain home where stocking up can be helpful.

Bedroom 4
On the far side of the lower level, Bedroom 4 is the largest of the secondary bedrooms.
It features a walk-in closet and has direct access to Bath 4, giving it a private suite feel.
Its separation from the other bedrooms makes it ideal for guests who want extra privacy.

Bath 4
Bath 4 is located just outside Bedroom 4 and is also easily reached from the rec room. With a large shower and modern fixtures, it balances style and functionality.

Unexcavated Space
The lower level also includes an unexcavated area. While it’s not finished living space, it offers potential for future storage, a workshop, or even an expansion, giving you room to grow if you ever want to add more.
As I tour this home, I notice a sense of openness and connection in every space.
Each area is thoughtfully designed to maximize views and comfort on both levels. No matter if you’re hoping to entertain or simply unwind, this floor plan offers plenty of options for any lifestyle.

Interested in a modified version of this plan? Click the link to below to get it from the architects and request modifications.
