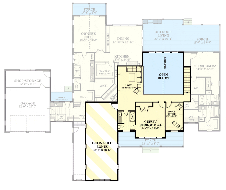
4356 Square Foot Modern Farmhouse Plan with 2-story Family Room (Floor Plan)

This New American farmhouse plan is a spacious and versatile layout offering 4,356 square feet of well-thought-out living space. With 4 bedrooms and 4.5 baths, it’s designed to accommodate modern needs while giving you a cozy and functional environment.
Let’s walk through this plan together and explore each room to uncover its potential and imagine how you might make this space your own.
Specifications:
- 4,356 Heated S.F.
- 4 Beds
- 4.5 Baths
- 2 Stories
- 4 Cars
The Floor Plans:


Garage & Shop/Storage
Start at the garage and shop/storage area—there’s ample room here for vehicles and a workshop or storage needs. I love that it accommodates practicalities like hobbies or seasonal equipment, truly an asset for any home.
Imagine the convenience of walking directly into a mudroom after parking, keeping everyday mess neatly contained.

Mudroom
The mudroom is notably functional with direct access from the garage. It’s intended to handle the hustle and bustle of family life.
With a sink and spacious layout, it’s perfect for organizing shoes, coats, and backpacks. Maybe you’d even consider adding some built-in cubbies for added organization.

Kitchen
Moving into the kitchen, it’s a central hub and quite expansive at 13’-9” x 24’-9”.
The island with seating is ideal for gatherings or a casual meal. I think the walk-in pantry adds an extra layer of functionality and ensures you have a perfect space for stocking up your groceries.
Dining Area
Next to the kitchen, the dining area measuring 17’-11” x 16’-4” is designed for intimate and larger dinners.
Its proximity to outdoor living spaces also makes it possible to access the porch area, encouraging al fresco dining quickly.
Outdoor Living & Porch
Speaking of outdoor spaces, the 20’-0” x 16’-4” outdoor living area is excellent for entertainment.
Imagine summer barbecues or simply lounging on a quiet evening. The porch wrapping around provides tremendous potential for seating or even a small garden—a perfect harmony between nature and living space.
2-Story Family Room
You’ll absolutely adore the 2-story family room, which boasts a spectacular openness with dimensions of 20’-5” x 20’-10”.
It offers abundant natural light and is a fantastic area for a family entertainment space. I’d imagine this centerpiece of the home lending itself well to both cozy nights and lively gatherings.
Study
Nearby, the study offers an intimate dimension of personal space.
At 12’-0” x 16’-0”, it’s a perfect spot for focused work or a quiet reading haven. Whether you work from home or just need a dedicated space to organize life’s details, you might find personal value in this room.
Owner’s Suite
The owner’s suite, an expansive 16’-0” x 18’-0”, provides a personal retreat. It includes a well-appointed bathroom and ample closet spaces. This suite’s direct access to the porch offers a private outdoor retreat as well, possibly a morning coffee spot.
Bedrooms 2 & 3
On the opposite side, Bedrooms 2 and 3 each have their own wardrobe space and built-in desks, which is especially convenient for the modern family.
These rooms show flexibility, perfect for children or guest accommodations—adapting to your specific family requirements.
Upstairs Loft
The loft area on the second floor, sized 12’-10” x 16’-0”, gives a sense of openness and overlooks the family room. It can be a versatile space—perhaps a second living room or a cozy den. The openness allows for creative uses based on your imagination.
Guest Bedroom 4
Also upstairs is Bedroom 4, designated as the guest bedroom. It’s spacious at 14’-5” x 15’-0” and has a private bath, making it welcoming for guests. I appreciate how privately situated it is, showing thoughtfulness in its design.
Home Office
Adjacent, a small home office presents itself as an ideal workspace nook.
At 8’-9” x 14’-0”, it’s compact yet functional, accommodating the need for privacy and focus.
Unfinished Bonus Room
The unfinished bonus room, an impressive 15’-8” x 38’-6”, presents an opportunity to tailor the home to your unique needs.
Whether you consider a fitness area, theater room, or playroom, its adaptability is endless.
Interest in a modified version of this plan? Click the link to below to get it and request modifications.
