
Specifications:
- 4,557 Heated S.F.
- 3 – 4 Beds
- 3.5 Baths
- 2 Stories
- 3 Cars
The Floor Plans:





Great Room (GRT. RM.)
Right in the heart of the home, the Great Room stands out with its expansive 18-foot ceiling, making it feel grand yet inviting. Imagine hosting a lively gathering here under the majestic ceiling that exudes luxury and openness. It’s the kind of space that naturally draws people in.
You’d appreciate how the room connects to both the kitchen and the dining area, which means you can entertain guests or supervise family activities without missing out on the conversation.
Kitchen (KIT.)
Adjacent to the Great Room, the Kitchen sports a vaulted 15-foot ceiling, and it speaks volumes in terms of elegance and functionality.
There’s something particularly appealing about the way it’s laid out—an island at its center perfect for casual meals, meal prep, or mixed-use as a workspace.
This setup promotes seamless interaction with guests in the Great Room or sharing a quick meal with family. If you ask me, the kitchen’s accessibility and openness are wonderful, but might an additional pantry off the kitchen enhance this even further?

Dining Room (DIN.)
The Dining Room, small yet charming, measures 12 by 10 feet, making it ideal for intimate dining occasions.
It’s visually connected to the kitchen and the exterior patio. This cozy area meets the practical needs of everyday dining while offering a gateway to al fresco meals on nice days.
Have you considered using this room for family dinners and special celebrations?

Sun Room (SUN RM.)
I find the Sun Room—a jewel tucked at the rear of the master suite—aptly perfect for personal reflection, reading, or simply enjoying nature without stepping outside. The word “tranquil” comes to mind.
Its intimate size (14 by 11 feet) provides a quaint escape connecting directly to the master suite. Would you perhaps enjoy morning coffee or evening relaxation in such a serene setting?

Master Bedroom (MBR.)
The Master Suite is quite frankly, a retreat within itself. Spanning 16 by 14 feet with a 10-foot ceiling, it’s both spacious and inviting. With direct access to the sunroom for peaceful evenings or private mornings, I see the appeal.
There’s also an adjoining bathroom and a remarkable walk-in closet. This suite promises a personal haven tailored to rest and relaxation, don’t you agree?

Entry (E.)
The elegant Entry is straightforward yet impressive, creating an inviting first impression. This space seamlessly transitions into the main areas and has an overlooked elegance that speaks to style and functionality.
Garage
With a three-stall garage divided into one, and two car spaces, practicality meets necessity. You will find not only ample space for vehicles but also room for storage, kids’ bikes, and more. I often think of garages as the unsung heroes of homes.
What uses might you find for the extra space?
Upstairs Balcony
Ascending upstairs, you’re greeted by a stunning balcony overlooking the main living area.
This unique feature adds a touch of sophistication and connection within different home levels. I love how it fosters interaction and visibility across floors.
Does this resonate with your idea of a connected family home?
Bedroom #2 (BR. #2) and Bedroom #3 (BR. #3)
Upstairs, Bedroom #2 and Bedroom #3 offer private sanctuaries for family or guests.
Bedroom #2, with its 11 by 11-feet space, is perfect for a cozy retreat. Whether you envision it as a child’s room or a private study, the size and setup seem ideal.
Bedroom #3 or Den is a bit roomier at 14 by 14 feet, offering a built-in desk area that promises versatility for various uses. The adaptability is something I find very modern.
Den/Office
This space could serve multiple functions: a home office, study, or guest room. Such flexibility ensures you meet your family’s changing needs over time.
Could this be the perfect room for growing teenagers or a creative workspace?
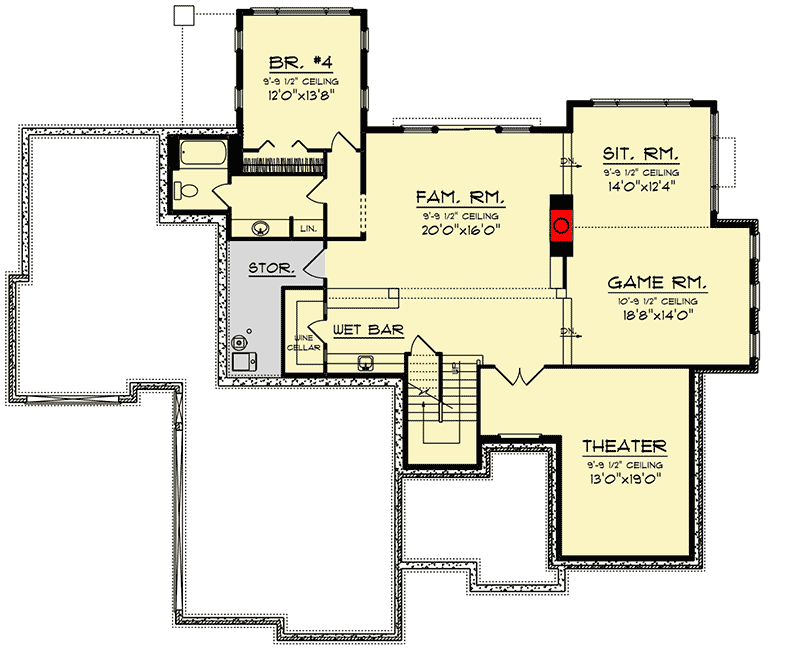
Basement Family Room (FAM. RM.)
The Basement Family Room is a vibrant area that boasts a wet bar, perfect for gatherings. Whether you see it as an entertainment hub or a relaxing spot to unwind, its spaciousness is highly inviting.
I always love areas like this that can transform with a great host and good company.
Game Room (GAME RM.) and Theater (THEATER)
These spaces are designed for leisure and enjoyment. As you step into the Game Room and Theater, think of the bonds they can create through shared entertainment.
Customize this according to your family’s hobbies—a gaming space, mini-theater for movie nights, or something entirely different.
Sitting Room (SIT. RM.)
Providing a quieter space amidst the bustling areas, the Sitting Room is your home’s little secret garden of relief. Small yet impactful, this room could be an artistic nook, reading corner, or simple escape from everyday buzz.
Interest in a modified version of this plan? Click the link to below to get it and request modifications.
