Contemporary 3-Bedroom House Plan with Loft and Spacious Garage (Floor Plan)

Stepping up to this home, the modern Northwest style immediately stands out with its clean lines, abundant glass, and a mix of crisp siding and wood accents.
I can already picture the natural light pouring in through those wide windows and glass doors.
This house is all about easy, contemporary living across two well-arranged levels, offering 2,008 square feet to relax, gather, or spread out.
Let’s look at each area together so you can really imagine how it could work for your day-to-day life.
Specifications:
- 2,008 Heated S.F.
- 3 Beds
- 2.5 Baths
- 2 Stories
- 2 Cars
The Floor Plans:


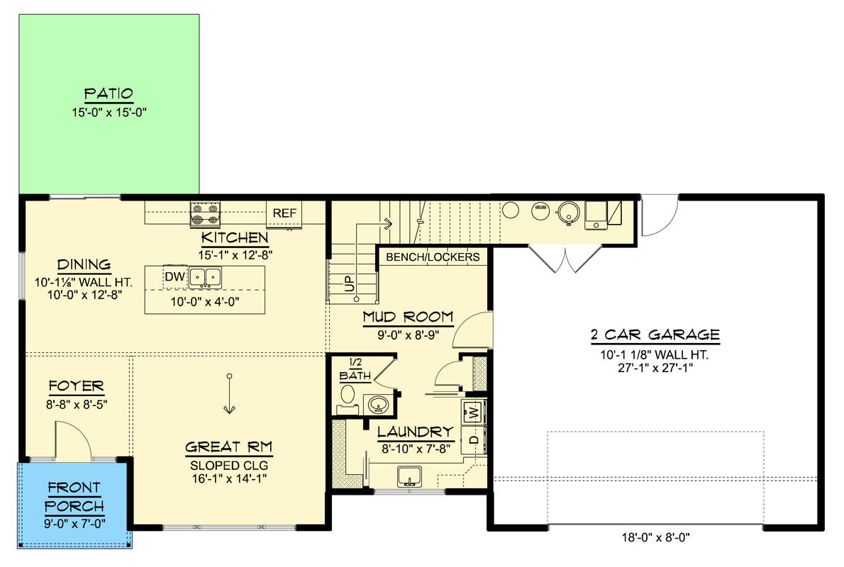
Front Porch
Arriving at the home, the front porch creates a warm welcome. It’s roomy enough for a bench or a couple of chairs, making it a great spot for morning coffee or chatting with a neighbor.
The geometric landscaping and wood accents highlight the modern lines and add a sense of arrival.
I like the covered entry, especially on rainy days.

Foyer
Once you step inside, the foyer greets you with an open, airy feel. There’s plenty of space to pause, take off your shoes, or say hello to guests.

I notice you could easily add a small table or some artwork here to show off your style.

The way the foyer connects right to the main living areas makes this space feel open and inviting.
Great Room
Move a little further in and you’ll find the great room. Tall ceilings and large windows flood the area with natural light throughout the day.

The open concept layout makes this room welcoming and flexible. I think a big sectional would be perfect here for movie nights or casual get-togethers.


You can see the backyard from here, and the smooth flow into the dining and kitchen areas means you’re always connected to what’s going on, whether you’re hosting a party or just relaxing in the sun.

Dining
The dining area sits to the side, sized just right for everyday meals or bigger celebrations.
The big windows really bring the outdoors in, so even quick breakfasts feel cheerful and lively.
Since it’s close to the kitchen but still defined by the floor plan, you get a nice balance of connection and separation.
I think families who love casual meals but need space for gatherings will appreciate this setup.

Kitchen
In the kitchen, you’ll find a modern, open space that’s ideal for cooking and conversation.

The island is centrally located, giving you lots of prep space and a natural spot for friends or family to gather around.

Features like tall cabinetry, brass hardware, and a marble backsplash add a polished, contemporary touch.

I love how the windows keep everything feeling open and fresh. Since the kitchen flows into the dining and living areas, you’re always part of the action while you cook.
Mud Room
Beside the kitchen, the mudroom acts as a practical transition from the garage or backyard.
With bench seating and lockers, everyone gets a spot for shoes, coats, and backpacks. For busy mornings, this area keeps the main spaces clear of clutter and gives you easy access to the garage and laundry.

Laundry
Near the mudroom, the laundry room is both private and convenient. There’s space here for a washer, dryer, folding counter, and storage for supplies.
I appreciate that you can drop off dirty clothes straight from the garage, which really helps keep messes contained and laundry days running smoothly.

Half Bath
Close to the mudroom, you’ll find a half bath. This is a great spot for guests or for quick clean-ups after coming indoors.


It’s tucked away from the main entertaining spaces, so you get privacy and easy access right when you need it.
2 Car Garage
The attached two-car garage connects directly to the mudroom, making it simple to bring groceries into the kitchen.
There’s plenty of space for vehicles, bikes, or storage for sports gear, tools, and holiday decorations.
The extra depth and width give you more room to move, and the utility sink area is perfect for fast cleanups or washing pets.

Patio
Step outside to the patio, which measures 15 by 15 feet. It’s big enough for a dining set, grill, or lounge chairs.
The connection to the dining and great room through large glass doors lets you move easily between indoor and outdoor gatherings.
Modern landscaping keeps things looking sharp but easy to maintain.

Stairs to Upper Level
Heading upstairs, the staircase sits just off the mudroom and kitchen. This placement makes it convenient to get between levels without disturbing the main living spaces.
The design keeps everything feeling open while giving the upstairs its own sense of privacy.

Loft
At the top of the stairs is a loft that serves as a flexible living space.
You could use it as a family TV room, a play area for kids, or a quiet office nook.
I really like how much light this space gets and how relaxed it feels. It almost works like a second living room, which is perfect for larger families or anyone who wants room to spread out.

Bedroom 3
Bedroom three sits just off the loft. The sloped ceiling and large windows make the room feel cozy yet open.

There’s enough space here for a full bed, desk, or reading chair, plus a generous closet.


I think this would be a comfortable guest room, teen hangout, or even a hobby space.

Bedroom 2
Bedroom two shares many features with bedroom three, including a sloped ceiling and a big window.
There’s plenty of floor space for a bed and dresser. If you have two kids, these rooms are almost the same size, so you can skip the debate about who gets the larger room.
The nearby bathroom and loft make it easy for everyone to settle into their routines.

Bathroom (Upstairs)
Between the two bedrooms, the full bathroom is set up for practical use. You get a combination tub and shower, a wide vanity, and storage for towels and toiletries.
The location works well for both bedrooms and the loft. I notice that the window at the end brings in more light than you usually find in a hall bath, which makes mornings a bit easier.

Master Bedroom
Farther down the hall, the master bedroom sits in a private spot for extra peace and quiet.
With a sloped ceiling and an extra-large window, the room feels spacious and relaxing. You’ll have plenty of options here for a king-size bed or a comfy chair in the corner.
I think the separation from the other bedrooms really creates a true retreat.

Master Bathroom
Step through the private entrance to the master bath, where a double vanity, wide counters, and modern finishes give it a spa-like feel.
There’s a large tiled shower and plenty of storage. The floating vanity and marble details add to the crisp, contemporary vibe.
This is the kind of space where you can start your day calmly or unwind after a long one.

Walk-In Closet
Right next to the bathroom, the walk-in closet offers plenty of storage. There’s room for clothes, shoes, accessories, and even a hidden shelf or two for seasonal items.
The layout keeps everything organized, and it’s spacious enough for two people to share comfortably.

Deck
Connected to the master bedroom, you’ll find a private deck that’s nearly 16 by 12 feet.
This outdoor spot is a true bonus. Imagine a small table and chairs for quiet mornings or relaxing with a glass of wine in the evening.
Since it’s only accessible from the master suite, this deck feels like an exclusive outdoor lounge.
Every room in this home feels connected just right, with practical details on both levels.
The combination of open living spaces, private retreats, smart storage, and a strong indoor-outdoor flow makes this house feel both fresh and flexible.
As I walk through each space, I can really picture how your own routines and traditions could unfold here, surrounded by good light, clean lines, and a calm, modern vibe.

Interested in a modified version of this plan? Click the link to below to get it from the architects and request modifications.
