European Estate Home with Porte Cochere and Lower Level Expansion (Floor Plan)
Imagine stepping into a world where European charm meets modern luxury, all wrapped up in a grand estate that stretches over 3,302 heated square feet.

This home isn’t just a living space; it’s a statement of elegance and sophistication, designed to awe from the very first glance. Let’s take you on a journey through this magnificent property, room by room, and let you in on why this could become the home of your dreams.
Specifications:
- 3,302 Heated s.f.
- 4-6 Beds
- 4.5 – 6.5 Baths
- 2 Stories
The Floor Plan:



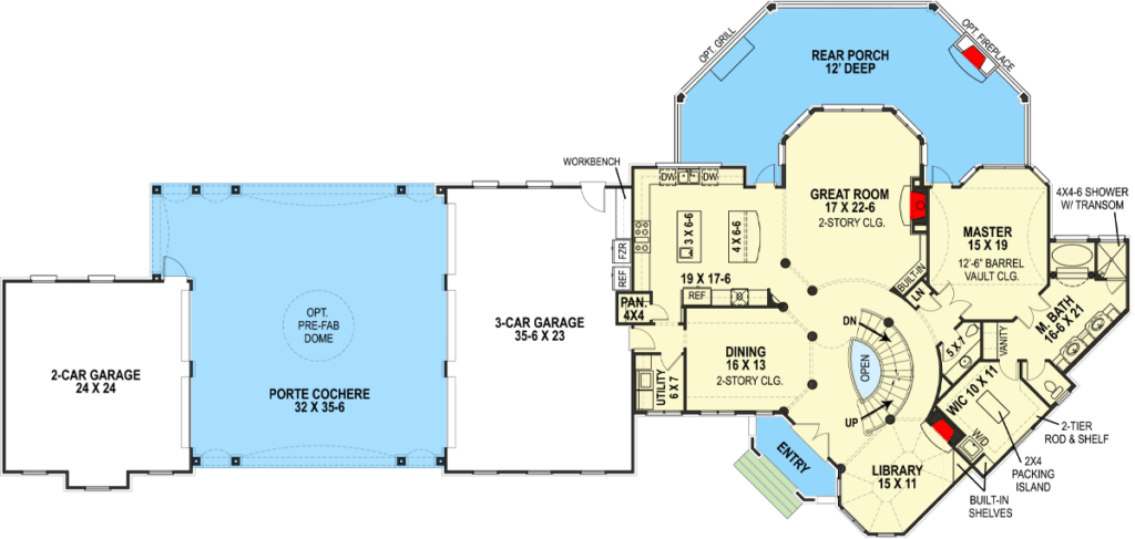
Front Porch
As you approach this grand estate, the first jewel that catches your eye is the dramatic front porch. Sheltered under an elegant porte cochere, it promises a royal welcome, protecting you and your guests from rain and inclement weather in style.
Here, you can pause, take a breath, and prepare to step into a world where luxury and comfort blend seamlessly.
Foyer
The moment you step inside, a breathtaking foyer greets you, boasting dramatic two-story and barrel-vaulted ceilings that immediately tell you this is no ordinary home. The lovely curved staircase ahead not only serves as a functional piece but also as a stunning work of art, while interior columns give you a peek into the expansiveness that awaits within.

Dining Room
Walking forward, you find yourself in a dining room that redefines grandeur.

The two-story ceiling here amplifies the sense of space, making every meal feel like a special occasion. Sightlines extend in every direction, thanks to strategic interior columns that keep the areas connected yet distinctly separate, ensuring a dining experience like no other.
Living Room
Next to the dining area, the living room unfolds in an open concept, inviting you to relax and unwind in an environment that feels vast yet intimate. Here, two-story ceilings continue the theme of airy openness, while the sophisticated decor creates the perfect setting for memorable gatherings or quiet evenings by the fire.

Library
Just when you think you’ve seen it all, the library, set in a charming bay, offers a cozy retreat. Vaulted ceilings paired with built-in shelves create a haven for book lovers. It’s an inspiring space for work or leisure, offering tranquility and elegance in equal measure.
Master Suite
The master suite in this home is nothing short of spectacular. From the special walk-in closet with its built-in shelves and storage island to the direct access to the 12′ deep rear porch, it promises a blend of luxury and functionality. Here, every morning feels like a pampered start, and every night a serene retreat.

Upper Floor and Balcony Bridge
As you ascend to the upper floor, a stunning balcony bridge offers views down into the foyer and dining room on one side, and the great room on the other. This unique feature not only connects the spaces but does so with a flair that speaks to the thoughtful design of this home.
Desk Area and Utility
A cleverly placed desk area with a stack washer/dryer emerges as a practical feature that serves the three upstairs bedrooms. This space-efficient solution ensures day-to-day tasks are handled with ease, making this home as functional as it is beautiful.

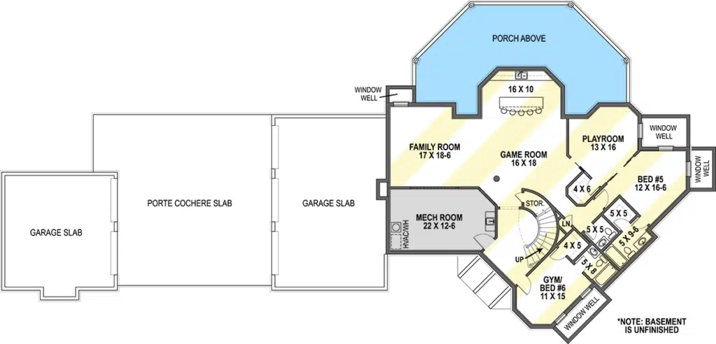
Lower Level Expansion
The magic continues as you explore the possibilities of the lower level, ready for expansion. With enough space for a game room, exercise room, and extra bedrooms, it’s an area ripe for customization, perfect for tailoring the home to fit your lifestyle to a tee.

Exterior and Garages
Finally, the estate’s exterior, with its elegant porte cochere and staggering five-car garage capacity, completes the picture of a home designed not just for living but for thriving.
Whether you’re a car enthusiast or cherish ample space for hobbies and storage, this home meets your needs with sophistication and style.
In conclusion, this European estate is more than just a house; it’s a promise of a life lived in grandeur, comfort, and style.
From its majestic entrance to its luxurious interior and expansive possibilities for personalization, it invites you to dream big and live even bigger.
