Modern Country Barndominium House Plan with Split Beds and Workshop Garage (Floor Plan)

Stepping up to this modern barndominium, you’re greeted by a striking black exterior that feels both inviting and unmistakably current.
There’s an honesty in its clean lines, timber accents, and practical layout that makes you want to linger on the deep front porch before heading inside.
With 2,197 square feet spread cleverly over two levels, you’ll have plenty of room to stretch out.
You can host a crowd, work from home, or just enjoy some countryside calm. Let’s take a walk through every inch and see how the rooms flow together.
Specifications:
- 2,197 Heated S.F.
- 3-4 Beds
- 3 Baths
- 1 Stories
- 2 Cars
The Floor Plans:


Covered Porch
Even before you open the front door, the covered porch sets the tone. Wide enough for a couple of rocking chairs and a bench, this is where you’ll pause with a cup of coffee and watch the sun climb over the yard.
The exposed timber posts and stone column bases add warmth, giving the entry a grounded, rustic feel that stands out against the dark siding.
I can easily picture neighbors waving hello or kids dropping their boots after a muddy afternoon outside.

Foyer / Entry
Crossing the threshold, you land in a compact foyer that’s open yet defined, with natural light from the living room pulling you forward.
There’s enough space here to drop keys or hang a jacket, but what stands out to me is how it opens right into the main living area.
The home feels spacious from the very start.

Living Room
The living room anchors the main floor, featuring a cathedral ceiling that makes everything feel even larger.
Wide, open sight lines connect you to the kitchen and dining area, so conversations flow easily when you’re hosting a holiday or just relaxing on a quiet night.
I like how the fireplace is set off to one side, providing a natural focal point without taking over the space.
You have flexibility here for arranging comfy sofas, a game table, or even a play area for kids or pets.

Dining Area
Just beyond the living room, the dining area shares the same cathedral ceiling and open layout.
Tucked neatly between the kitchen and patio doors, this is the spot for casual breakfasts or holiday feasts, with enough room to pull up extra chairs if needed.
The smooth connection to both the kitchen and outdoor patio lets you move easily from indoor meals to summer cookouts.
I think that setup feels really natural.

Kitchen
The kitchen is designed to work hard for you. An oversized island with seating for four stretches through the center, perfect for rolling out dough, doing homework, or spreading out a buffet.
The layout puts everything within reach—range, sink, fridge, and walk-in pantry—making daily routines effortless. I think the walk-in pantry is a huge plus here.
There’s enough space to stash appliances, stock up for the week, and still have room left over for baking supplies.

Pantry
Tucked beside the kitchen, you’ll find a roomy pantry that keeps clutter out of sight and essentials within easy reach.
I appreciate how it’s close enough for convenience but deep enough to hide even your biggest Costco haul.
If you love to cook or just want fewer trips to the store, this space helps keep everything organized.

Patio
Through a set of glass doors off the dining area, you step out onto a covered patio.
This 12-by-12-foot space is just right for a grill, a dining set, and a few lounging chairs.
Picture summer nights with string lights overhead or chilly mornings with a warm mug in hand.
The patio extends your living and dining spaces, making it perfect for entertaining or enjoying some peace and quiet.

Master Bedroom (M. Bed)
The master suite sits at the far corner of the home, providing a bit of privacy.
It’s large enough for a king bed plus a reading chair, and features direct access to the master bath and a generous walk-in closet.
The windows let in beautiful morning light while still protecting your privacy. I like that the master is separated from the other bedrooms, giving you that extra sense of personal space.

Master Bathroom (M. Bath)
Step into the master bath and you’ll notice a touch of luxury. There’s a soaking tub, a walk-in shower, dual sinks with plenty of counter space, and a private water closet.
The layout feels both practical and comfortable, letting two people get ready without bumping into each other.
The direct connection to the walk-in closet makes morning routines fast and easy. Just grab your outfit and go.

Walk-In Closet (W.I.C.)
The walk-in closet is just off the master bath, making wardrobe changes and laundry day much more efficient.
Built-in shelves and rods keep everything visible, and there’s enough space for off-season clothes and suitcases too.
It may not be enormous, but I think it’s the right size for most families.

Bedroom 2 (Bed #2)
Bedroom 2 is positioned near the mudroom, with a pair of windows bringing in afternoon light.
Double closet doors make storage simple. This room works well as a guest room, office, or kid’s room, and the location is convenient.
It’s close to the main bath, but still set apart enough for quiet.

Bedroom 3 (Bed #3)
Bedroom 3 sits just across the hall, similar in size and flexibility. The closet space matches, and there’s enough room for a desk or twin beds.
I think families will like having these two rooms together—it’s easy to check on younger kids or set up a shared homework area.

Main Bathroom (Bath)
Between the two secondary bedrooms, the main bath serves the busiest part of the house.
You’ll find a tub/shower combo, a large vanity, and a handy spot for towels. The location is practical, making it easy for kids coming in from the yard and convenient for guests as well.

Mudroom
Off the garage entry, the mudroom is a real workhorse. A built-in bench gives you a spot to pull off boots, and cubbies or hooks above help corral backpacks and coats.
This room keeps the rest of your home tidy. I appreciate that there’s a direct connection to the laundry, so muddy clothes or sports uniforms never have to travel through the main living areas.

Laundry Room (Lndry)
Laundry feels less like a chore when your washer and dryer are just steps from the mudroom.
There’s a folding counter, storage shelves, and enough space to sort and iron. If you’re into sewing or other hobbies, you’ll find a little extra room here as well.
The location close to bedrooms and bathrooms just makes daily routines easier, which I really value.

Powder Bath (Bath)
Near the mudroom, a small powder bath is perfect for quick stops by guests or busy mornings.
No one has to trek through the home just to wash up. I like how this detail makes life simpler, especially for larger families or if you enjoy entertaining.

Den
At the front of the house, a flexible den can fill a lot of roles.
Use it as a home office, hobby room, or a cozy reading nook. A window to the porch keeps it bright, and the location near the entry means clients or visitors don’t have to walk through private areas.
For anyone working from home, this spot balances easy access with a bit of retreat.

Garage
Directly connected to the mudroom, the garage is designed for more than just parking. With cathedral ceilings and a 14-foot wall height, you have options for storage, a workshop, or parking larger vehicles.
Double doors and deep bays give you plenty of room for tools, bikes, and outdoor gear.
I think anyone with hobbies or a lot of stuff will appreciate this oversized space.

Stairs (DN)
Centrally located off the kitchen and pantry, a staircase leads to the basement. Its placement makes it simple to access without cutting through the main living areas.
I find this setup especially practical for families wanting to keep upstairs and downstairs activities separate.
Now, let’s see what the lower level offers.

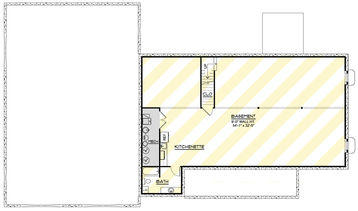
Basement
The basement stretches beneath much of the home, with a spacious open area that can become a rec room, home gym, giant playroom, or even a second living suite.
The 9-foot wall height adds a sense of openness, and with nearly 1,700 square feet, you have tons of options.
There’s a closet at the bottom of the stairs, perfect for board games, extra linens, or seasonal clothes.

Kitchenette
Along one wall, you’ll find a kitchenette with a small sink, counter, and refrigerator. This setup makes the basement perfect for guests or teens who want a bit more independence.
You don’t have to run upstairs for drinks or snacks, and hosting movie nights or parties just got easier.

Basement Bathroom (Bath)
The lower level includes a full bath with both a tub and shower. Its location near the open space and kitchenette makes it easy to turn this area into a private suite.
This is a real bonus for overnight visitors or teens looking for their own space.

Mechanical Room (Mech)
In one corner, the mechanical room keeps utilities tucked away but still easy to access for maintenance. You won’t have to deal with noise or clutter in your living areas, and it’s located close to the basement bathroom and kitchenette for added convenience.

Basement Closet (Clo)
The closet at the foot of the stairs gives you another layer of storage flexibility. No matter how you use the basement—guests, hobbies, or just a getaway—these tucked-away spaces help keep things neat.
This barndominium delivers flexibility and comfort across both levels. I love that every space feels designed for real life, with plenty of storage, great flow, and options for every stage of family living.
If you’re looking for a home that blends character with function, this one is ready for you to make it your own.

Interested in a modified version of this plan? Click the link to below to get it from the architects and request modifications.
