Rustic Waterfront Home Plan with Loft and Walkout Basement (Floor Plan)

Sometimes a house just pulls you in at first glance, and this one does exactly that with its rugged, modern lodge style and a layout that takes full advantage of its surroundings.
Imagine living in a home where you can walk out to a covered deck on almost every side, take in lake or mountain views through walls of windows, and move through spaces that feel both grand and cozy.
This three-level retreat is designed for comfort, entertaining, and a healthy dose of adventure. Let me walk you through how every inch is used.

Specifications:
- 6,609 Heated S. F.
- 3 Beds
- 3 Baths
- 3 Stories
- 4 Cars

The Floor Plans:




Covered Entry Porch and Foyer
When you arrive, the covered entry porch stands out with substantial stone pillars and deep overhangs.
Right away, you can picture pausing here, shielded from rain or snow, while you get your keys out.
Entering through the front door, you find yourself in the foyer, which gives you a sense of openness but also provides enough separation so the rest of the house isn’t immediately on display.
There’s generous wall space for artwork or a statement bench, and your eyes are naturally drawn into the living areas beyond.

Bedroom #2 / Guest Suite
Off the foyer on the right, you’ll find Bedroom #2, perfect as a guest suite.
There’s comfortable space for a queen bed, a good-sized closet, and easy access to a full bathroom just outside the door.
You can host friends or family here without anyone needing to climb stairs, and the location gives guests plenty of privacy.
I think this layout works well for both short visits and longer stays.

Main Hallway
Back in the foyer, a hallway draws you toward the main gathering spaces. The flow feels natural, guiding you forward and building anticipation for the big open living area ahead.

Kitchen
To the left, you’ll find the kitchen, ideally positioned for both everyday living and entertaining.
The oversized island is the first thing you notice, with space for meal prep, homework, or chatting with friends over coffee.
There’s a six-burner cooktop, wall ovens, and plenty of storage lining the walls. I like how the designer placed the pantry just around the corner, making it easy to stash groceries out of sight but close at hand.
The kitchen connects directly to the dining area, so setting the table or serving snacks is a breeze.

Pantry
Just off the kitchen, the walk-in pantry is surprisingly roomy for a home that already has so much storage.
Wide shelves let you store bulk groceries, small appliances, or even a wine collection, all kept out of the main kitchen space.
If you love to cook or entertain, you’ll find this setup especially practical.

Mud Room
Head left from the kitchen and you’ll find the mud room, which acts as a transition between the four-car garage and the rest of the house.
After a day of hiking or hauling in groceries, you can kick off muddy boots or hang up damp jackets right here.
Hooks, benches, and cubbies help keep things tidy and organized.

Four-Car Garage
Connected directly to the mud room, the four-car garage is a major asset for anyone with multiple vehicles, outdoor gear, or even a boat.
There’s plenty of storage space along the sides, and the angled entry makes parking easy, even in winter.
You can enter the home without ever stepping into the weather.

Dining Room
Back inside, the dining area sits between the kitchen and the great room. With enough space for a large table, this room feels made for family dinners or holiday gatherings.
Wide doors open directly onto the covered deck, letting you extend your dining area outside on warm evenings or enjoy plenty of fresh air and light.

Great Room
The great room is the centerpiece of the main floor. Soaring ceilings and a dramatic wall of windows create a sense of grandeur, while a stone fireplace anchors the space and brings warmth.
I love how you can arrange furniture to enjoy the views, the fire, or both.
With its generous size, this room is perfect for anything from quiet evenings to big celebrations.
If you ask me, this is the kind of space people dream of in a true mountain or lake house.

Covered Decks and Porches
Around the main living areas, covered decks and porches connect the indoors and outdoors. You can step out from the great room or dining area onto a wide deck that wraps around the back of the house.
There’s ample room for seating, dining, or even an outdoor kitchen. Since parts are covered, weather never ruins your plans.
The craftsmanship is clear in the wood railings and stone pillars, which ground the home in its setting.
The overhead shelter lets you use these spaces comfortably all year.

Master Suite
On the main level, set apart for privacy, you’ll find the master suite. This area really feels like a retreat from the rest of the house.
There’s room for a king bed, and wide doors open straight onto a private covered deck.
The walk-in closet gives you lots of space for everyday and out-of-season clothes, and the master bath features a soaking tub, oversized shower, double vanity, and a private water closet.
I appreciate how this suite is separated from the other bedrooms, making it a true sanctuary.

Master Bath and Closet
The master bath is both spacious and practical, with a huge shower and a freestanding tub for relaxing after a long day.
The double vanity provides plenty of counter space, and the private toilet room is a thoughtful touch.
The walk-in closet is right next door, so you don’t have to walk across the bedroom to get dressed.
I really like how this suite is set up for minimal stress in the morning and maximum comfort at night.

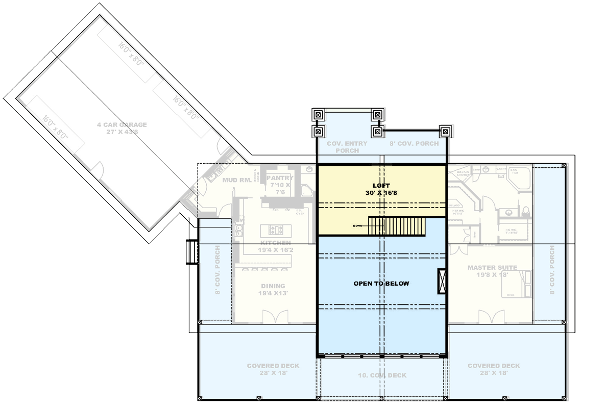
Stairs to Upper and Lower Levels
The staircase is centrally located, making it easy to reach both the upper loft and the walkout lower level.
You can move between floors without feeling cut off from the main living spaces.

Loft
Head upstairs and you’ll find yourself in an expansive loft. This space is open to the great room below, so it stays bright and feels connected to the rest of the house.
With almost as much space as the great room, you could use it as a playroom, study zone, or second living room.
The open setup encourages creativity.
I’d line the railings with bookshelves or set up a reading nook that takes in the views through those huge windows.

Open to Below
From the loft, you get a bird’s-eye view of the main living spaces and out to the backyard.
I find it special to see and hear what’s happening in the house while you’re upstairs.
The open railings help everything feel airy and spacious.

Stairs to Lower Level
Head all the way down to the walkout basement, and the atmosphere becomes more relaxed.
This level is built for recreation, hobbies, and work-from-home flexibility.

Family Room
The walkout lower level opens into a huge family room, echoing the great room above but with a more laid-back feel.
There’s room for a big sectional, a game table, and a TV nook.
I can easily picture movie nights, sleepovers, or even a holiday party with everyone gathered downstairs.
Double doors open onto the covered patio, so this area stays connected to the outdoors all year.

Kitchen (Lower Level)
Just off the family room, a compact but fully equipped kitchen makes this level self-sufficient.
The island adds extra prep space or a spot for snacks during game day. Having a second kitchen is ideal for multigenerational families, guests, or entertaining outside without running up and down stairs.

Bedroom #3
On the lower level’s right wing, Bedroom #3 is generously sized and includes its own closet plus easy access to a full bathroom just across the hall.
Wide windows and doors onto the covered patio keep this room bright and inviting.

Office
Next to Bedroom #3, you’ll find a spacious office—perfect for anyone working from home or needing a quiet study space.
It’s separated from the main traffic zones, so you get privacy, but you’re still close to the bathroom and family room.

Gym
On the other side of the lower level, there’s a dedicated gym. With its own door and good dimensions, you can easily set up a treadmill, weights, and yoga mats without crowding out other activities.

Bedroom #4
Bedroom #4 sits to the far left of the lower level, with its own large closet and direct access to the patio through sliding doors.
This could work as a guest suite, teen room, or even a hobby studio, depending on your needs.

Bathroom (Lower Level)
The lower level bathroom is centrally located, making it easy to reach from the bedrooms, gym, and family room.
There’s a full tub and shower, and enough space to keep everyone comfortable, even during busy mornings.

Mechanical/Storage Room
Behind the lower kitchen, the mechanical/storage room offers plenty of space for everything from seasonal decorations to tools.
It also houses the key systems for the home, keeping them out of sight but easy to access when needed.

Safe Room
Past the mechanical/storage area, there’s a dedicated safe room. It’s rare to see this feature in many homes, but for those who want extra security or a storm shelter, it brings real value.

Covered Patios
You can walk outside from nearly any room on the lower level and find yourself on one of several covered patios.
These mirror the decks above, giving you a shady spot for summer afternoons or a sheltered place to sip coffee on a rainy morning.
The views reach out across the backyard and beyond, really tying together the indoor and outdoor spaces.
Walking through this house, you can tell every detail is designed to make life easier, more comfortable, and closely connected to nature.
Whether you’re hosting a big family reunion, working from home in quiet, or coming in from the lake with muddy boots, this layout just works.
Each level has its own identity, but together they create a home that’s perfectly equipped for mountain, lake, or lodge living.

Interested in a modified version of this plan? Click the link to below to get it from the architects and request modifications.
