Two-Story Contemporary Mountain House Plan with Sunroom – 4255 Sq Ft (Floor Plan)

This Spanish ranch house plan really stands out with its vast 4,255 square feet of living space. Right away, you’ll notice how it seamlessly combines modern amenities with classic charm, offering 4-5 bedrooms, 4.5+ baths, and an impressive 3-car garage.
This layout feels expansive and inviting, perfect for comfort and practicality.
Specifications:
- 4,255 Heated S.F.
- 4 Beds
- 4.5 – 5.5 Baths
- 2 Stories
- 3 Cars
The Floor Plans:




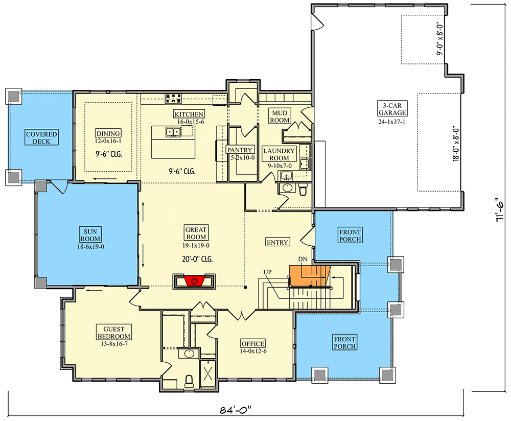
Front Porch
As you approach the home, the front porch greets you warmly. I can imagine it being the perfect spot for a cozy chair and a cup of morning coffee.
It’s a transitional space that effortlessly leads you into the main portions of the house while also giving you a chance to take a moment and appreciate your surroundings.

Entry
Stepping inside, the entry area opens up to the grandeur of the home.
It’s designed to serve as a hub from which you can access the various parts of the house. This approach is appealing because it offers an immediate sense of space and organization.
Great Room

The great room is truly the heart of the home. It is generously 19 by 19 feet and has a high 20-foot ceiling.
This room could easily be filled with laughter and conversation, a comfortable and flexible space perfect for entertaining guests and relaxing with family.

Whether you’re hosting a gathering or enjoying a quiet evening, the ambience here would be delightful.

Kitchen
Adjacent to the great room, the kitchen is thoughtfully laid out with functionality in mind. It’s spacious enough to inspire the inner chef in you!

With modern appliances and an elegant yet practical island, my take is that this space would make meal prep enjoyable and efficient. A direct connection to the dining area adds to the kitchen’s practicality, emphasizing ease of movement.
Dining Room
The dining room provides more than just a spot for meals; it’s an opportunity to create daily rituals with loved ones. Its proximity to the kitchen makes serving easy, while the open layout allows conversations to flow naturally across spaces.
I’d say this design makes it ideal for both formal dinners and casual breakfasts.
Sun Room
The sunroom is a delightful surprise and might quickly become a favorite spot in your home. Bathed in natural light, it offers a serene retreat where you can unwind, read, or engage in hobbies.
A connection to the covered deck expands this indoor-outdoor living experience beautifully.
Covered Deck
Speaking of the deck, this sunroom extension provides a seamless way to enjoy outdoor living.
Whether you’re hosting a barbecue or simply enjoying an outdoor meal, this deck elevates the experience, offering a versatile space that will be used frequently.
Guest Bedroom
The guest bedroom, positioned for privacy, offers a comfortable refuge for visitors.
It ensures your guests have their own space and en-suite bathroom access, adding an extra layer of hospitality that can make their stay feel exceptional.

Office
The office space is another strong point for those who work from home or need a quiet spot for concentration.
I love how nicely separated it is to limit distractions which is great for anyone that loves a functional environment for productivity or creativity.
Mudroom and Laundry Room
The mudroom and adjacent laundry room are practical spaces that handle the day-to-day mess without disrupting the main living areas.
I think this is a thoughtful inclusion that keeps things organized and ensures that everything has its place.
Upper Floor – Master Bedroom and Loft
Moving to the upper level, the master bedroom stands out with its spaciousness and luxury. A large walk-in closet and a beautifully designed master bath make this a true retreat within the home.
The loft area nearby could serve as an additional sitting room or play area, making it incredibly adaptable.
Additional Bedrooms – Upper Floor
The floor continues with additional bedrooms that offer ample space and comfort for family members. Each room provides privacy along with easy access to shared bathrooms, enhancing both comfort and convenience.
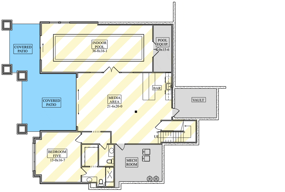
Lower Level – Indoor Pool and Media Area
Descending to the lower level, you’ll find a fantastic media area. Whether it’s for movie nights or gaming, it establishes a dynamic space for entertainment.
But perhaps the highlight here is the indoor pool. I see it as an amazing feature for exercise, relaxation, or family fun, doubling as a luxurious enhancement to daily living.
Bedroom Five
This level also houses a fifth bedroom with privacy and direct bathroom access. This versatile space can accommodate visitors or serve as an extra family room, reinforcing the plan’s adaptability.
Interest in a modified version of this plan? Click the link to below to get it and request modifications.
