Linear and Angled Mid Century Modern House Plan – 6658 Sq Ft (Floor Plan)

Linear and angled, this modern-style home embraces the landscape, weaving a harmonious connection between inside and out.
Its strong, low-slung roofline gives it a sophisticated silhouette, while the use of natural materials like stone and wood seamlessly blend it into its surroundings.
It’s a stylish yet practical design that I think you’ll find both inviting and versatile.
Specifications:
- 6,658 Heated S.F.
- 4 Beds
- 3.5+ Baths
- 2 Stories
- 3 Cars
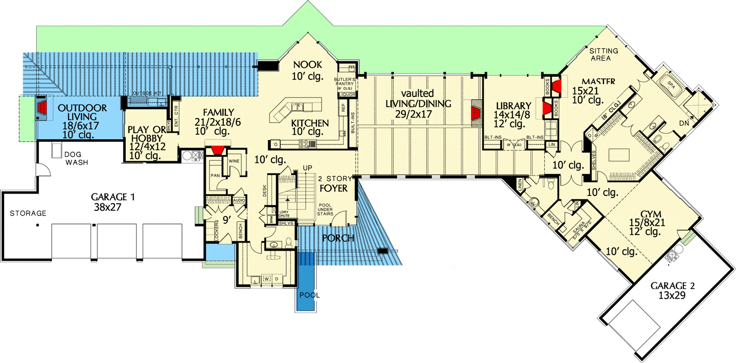
The Floor Plans:


Porch and Foyer
As you approach the front porch, the pergola invites you in, suggesting a sense of arrival and anticipation.
Stepping through the front door, you’re greeted by a two-story foyer that feels grand and open. This space serves as a crossroads, leading you into the two main wings of the home.

I love how this entry point sets the tone for the entire house with its elegant design and immediate access to various rooms.

Vaulted Living/Dining Room
To one side of the foyer, you enter the vaulted living and dining room. This expansive area is enhanced by its beam ceiling, providing a sense of grandeur perfect for formal gatherings.

The built-ins and fireplace not only add character but offer practical benefits, making this space ideal for entertaining. The layout encourages mingling and interaction, as there’s an easy flow between the living and dining areas.

Library
Connected by the shared formal area, the library stands as a cozy retreat.
It’s homey and private, enriched with built-ins that could house a world of books or cherished collectibles. The wall of windows invites natural light, making it a perfect spot to unwind.
I see this as a versatile room—perhaps even a home office or study—providing a quiet space within the home.
Master Suite
Nearby, the master suite offers a luxurious sanctuary.
A sitting area provides personal space for relaxation, while expansive windows ensure you never miss the scenic views.
The connection to the well-appointed bathroom, along with an impressively large dressing room, adds to the luxurious feel.
It’s a suite designed with comfort and privacy in mind, creating a personal haven within the house.

Gym
The gym, complete with its private sauna, offers a dedicated space for wellness.
It’s conveniently positioned so you can pivot between relaxing and active pursuits. This feature stands out as both a luxury and a necessity for modern living, supporting a balanced lifestyle.
Open Kitchen and Family Room
The opposite wing of the house shelters the open kitchen, breakfast nook, and family room. This space leans towards a more casual atmosphere, ideal for day-to-day living.
With its angled island, the kitchen feels modern and functional, making cooking a joyful experience.
Its design ensures whoever’s at the stove doesn’t feel isolated from family activities.
The nook’s angled banks of glass ensure it’s flooded with sunlight, fostering a warm and welcoming environment.
Patio doors open to a back porch and covered outdoor living space, providing an easy transition from indoor to outdoor activities.
It’s perfect for extending gatherings to the garden or simply enjoying a morning coffee with fresh air.

Play or Hobby Room
Adjacent to the family room, the play or hobby room offers a domain for creativity and play. Whether it’s art projects, hobbies, or a children’s play area, this room’s versatility means it can evolve with your family’s needs.
I see this space as an inspiring hub where creativity thrives.
Garage and Dog Wash
There are two garages, with Garage 1 offering ample storage and a dog wash area.
This practicality isn’t just for pet lovers but anyone who needs a clean-up station before entering the main living space. It’s small touches like this that lend the home a thoughtful, lived-in feel.

Upper Level
Heading upstairs, you’ll find the upper level dedicated to more personal and recreational spaces.
Three bedrooms offer space for family and guests, each with its own charm. The built-in desks in the hallway suggest a thoughtful design for homework or remote work.
Home Theater
A significant feature of the upper level is the home theater, promising cinematic experiences right at home. This room stands out, offering a communal space for family movie nights or entertaining guests.
Activities Area
Connected to the bedrooms is the activities area, a versatile open space with built-ins for storage and media. It could serve as a game room, study zone, or anything your imagination allows. Its adaptability truly caters to a variety of needs and lifestyles.
Guest Room
The guest room, complete with access to a balcony, ensures visitors enjoy their stay in comfort.
This space provides privacy for guests while keeping them integrated into the household flow.
Interested in a modified version of this plan? Click the link to below to get it and request modifications.
