
This modern lake house immediately grabs your attention with its mid-century lines, blue siding, and a blend of natural materials that fit perfectly in a mountain setting.
It’s a home that strikes a balance between crisp, contemporary style and the inviting warmth you want for relaxed Northwest living.
With three levels to explore—including spacious decks, flexible rooms, and clever details throughout—each floor has its own surprises and practical features.
I’m excited to walk you through every corner and show you how this design comes together, one space at a time.
Specifications:
- 2,318 Heated S. F.
- 3 Beds
- 2 Baths
- 2 Stories
- 2 Cars
The Floor Plans:




Porch and Entry
The covered front porch features wood accents under the eaves, offering just enough shelter from the rain while still welcoming natural light.
As you step through the entry, you’ll find a foyer that’s casual but keeps things organized.
There’s a coat closet right by the door, which I think is great for stashing messy boots or jackets before reaching the main living spaces.

Kitchen
Once inside, the kitchen opens up right away. Tall ceilings and an oversized island set the stage for everything from quick breakfasts to big holiday spreads.
I really appreciate the generous counter space, and the island includes seating along one side so everyone can gather while you cook.
The pantry is conveniently located nearby, making it easy to keep clutter out of sight but ingredients within reach.
The kitchen connects directly to the main living area, which is perfect if you’re used to juggling cooking and chatting with family or friends.

Great Room
A few steps beyond the kitchen, you’ll find the great room. This space highlights the home’s open-concept design.
High ceilings create a sense of volume, and the fireplace serves as a natural gathering spot.
Large windows bring in outdoor views, and I can imagine this room filled with light all day.
The area is wide enough for several seating arrangements but still feels cozy. You can see that the designer wanted comfort and a sense of connection throughout the living areas.

Family Area and Dining Area
The family area and dining area flow naturally from the great room, making it easy to move from one activity to another.
The dining area is positioned beside the deck doors, so you can enjoy meals with a view or slip outside on warm nights.
There’s no wall separating the family area from the great room, making it easy to stay connected no matter where you’re sitting.
This setup unifies the central part of the main floor, giving you flexible space for gatherings or quiet evenings.

Mud Room
Heading toward the garage, you’ll discover the mud room, a feature that truly fits the Northwest lifestyle.
There’s a built-in bench for taking off boots, along with hooks and cubbies for bags.
A pocket door helps contain the mess after a day of hiking or boating. The mud room connects to both the garage and a handy storage closet, as well as the covered back deck.
I think this makes coming and going much easier, especially when you want to avoid tracking the outdoors inside.

Pantry
Located just off the kitchen, the pantry is a real workhorse for storing groceries and kitchen gear out of sight.
If you prefer clear counters or love meal prep, you’ll appreciate this feature. It’s not huge, but it’s smartly placed so you won’t be running laps when you need something.

Covered Deck and Outdoor Spaces
From the dining area, you can step onto the decks that wrap around the back and sides of the house.
There’s a covered section for escaping the sun or rain, plus open spaces for summer evenings and soaking in the view.
The decks are generous—especially out back, where there’s space for grilling, lounging, and a large table for outdoor meals.
The way these outdoor areas blend with the great room and dining area means your living space expands as soon as the weather turns nice.

Two-Car Garage
The vaulted garage fits two cars comfortably, with a dedicated storage area nearby for tools, outdoor gear, or bikes.
Wide doors make it easy to pull in, unload groceries, or grab what you need for a weekend adventure.

Bedrooms and Bath (Main Level)
On the opposite side of the main floor, you’ll find two bedrooms set away from the main living spaces.
Both bedrooms feature vaulted ceilings, which create a spacious feel.
Each room offers good storage with full-length closets. Large windows let you wake up to sunlight and enjoy private views of the outdoors.
The bathroom serving these bedrooms is simple and efficient. It includes a tub and shower combination, a vanity, and easy access from the hall.
There’s also a linen closet just outside, which keeps towels and supplies organized without crowding the bedrooms.

Hall and Linen Closet
A short hall between the bedrooms and living areas contains both a linen closet and a secondary coat closet.
This setup helps the bedrooms feel private and peaceful, while still keeping everything close at hand.

Stairs to Upper Level
As you walk up the open staircase, you’ll notice how the clerestory windows fill the landing with daylight.
The stair placement keeps foot traffic away from the main living spaces. I like how this design choice makes the upstairs feel quieter and more private.

Master Suite (Upper Level)
At the top of the stairs, the master suite takes center stage. There’s an entry hall that helps buffer noise from below.
The bedroom itself is spacious, with a vaulted ceiling and large windows overlooking the balcony.
You’ll enjoy your own private slice of the view, and glass doors let you step right outside whenever you want.

Master Bath
Through double doors, the master bath welcomes you with a freestanding tub perfectly placed for a soak with a view.
There’s a large separate shower, dual sinks, and plenty of room to move. I think the designer nailed the spa-like feel here, balancing function with relaxation.

Master Closets
The master suite includes two closets. One is a vaulted walk-in closet for extra hanging space.
The other is even larger and is labeled as an exercise/closet combo room. This setup gives you flexibility for yoga gear, seasonal wardrobes, or anything else you need to store.
If you’ve wished for more closet space, this design really delivers.

Balcony (Upper Level)
The upper balcony stretches across the entire width of the bedroom, providing an outdoor retreat that feels like an extension of the suite.
It’s a perfect spot for morning coffee or late-night stargazing, with the extra bonus of privacy and elevated views over the backyard or lake.

Linen Closets (Upper Level)
There’s a dedicated linen closet in the upstairs hallway, so you don’t need to haul towels and sheets between floors.
These thoughtful details really do make daily life easier.

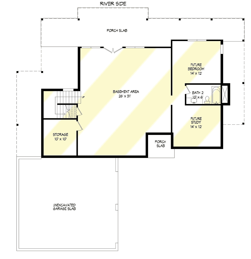
Stairs to Basement
Heading down past the main level, you’ll arrive in the basement. The staircase brings you to the center of a spacious area that’s ready for you to shape to your needs.

Basement Area
At the core of the lower level, you’ll find a 26 by 31 feet open basement area.
There’s enough room for a rec room, home theater, or space for game nights with friends.
You can leave it open or define different zones with furniture, depending on what works for you.
The comfortable ceiling height and direct access to the backyard through the slab porch make this level especially inviting.

Storage (Basement)
A dedicated storage room off the stairs provides a secure spot for holiday decorations, sports gear, or anything else you want to keep out of sight but handy.
I think this extra storage really helps keep the rest of the house organized.

Flexible Bedroom and Study (Basement)
On the far side of the basement, two rooms are designated as flexible spaces—a 14 by 12 feet bedroom and a 14 by 12 feet study.
These rooms give you options as your lifestyle evolves, whether you want a guest suite, home office, or creative space.
The bedroom is conveniently located next to the second basement bathroom, making it ideal for guests or older kids.

Bath 2 (Basement)
The second basement bathroom is a full bath, similar to what’s on the main level.
It’s convenient for anyone using the lower level, and I appreciate that it’s positioned near the flexible rooms to keep everything efficient and private.

Porch Slab (Basement Level)
A small porch slab outside the basement gives you another covered spot for stepping outdoors.
This area could be used for storing outdoor furniture or as direct access to a garden or lower yard.

Unexcavated Garage Slab
One detail to note is that part of the garage area is left as unexcavated slab.
I see this as a practical choice, allowing the home to focus space where it matters most while leaving room for possible adaptation down the line.
With this three-level layout, you get a home that is flexible, full of natural light, and seamlessly connected to the outdoors.
There’s room for gatherings, quiet moments, and plenty of storage, all supported by thoughtful features that make daily life easier and give you options as your needs change.
Whether you’re dreaming of lakeside mornings or cozy mountain evenings, I think you’ll find a spot here that just feels right.

Interested in a modified version of this plan? Click the link to below to get it from the architects and request modifications.
