You don’t feel it on move-in day. You feel it at 2 AM, three years later, sprinting down a dark hallway because your toddler is screaming and their bedroom is on the opposite side of the house.
That’s when you realize the floor plan mistake you made. I’ve watched families live with this exact regret for 10, 15, even 20 years. And the fix? It starts around $25,000 – if it’s even possible.
The specific error involves where your bedrooms sit relative to each other. And it’s worse than you think.
The Layout Regret
Here’s a number that should scare anyone shopping for their first home. Nearly three out of four homeowners say they regret something about their purchase. Not the price. Not the neighborhood. The layout.
And the biggest layout regret? Bedroom placement.
It sounds so boring when you’re 28 and looking at houses for the first time. You’re checking countertops, obsessing over the backyard, mentally placing your couch. Nobody stands in the hallway and thinks about the distance between the master bedroom and the secondary bedrooms. Nobody asks the builder why the kids’ rooms are 40 feet away on the other end of the house.

This layout looks great on paper. Five years from now, it won’t feel that way.
But that distance? It defines your daily life for the next decade or more. It determines whether you hear your baby cry at night. Whether your six-year-old can find you in the dark during a thunderstorm. Whether your teenager’s music bleeds into your bedroom at 11 PM on a school night.
The real estate industry calls it the “split bedroom” layout. Builders love it because it’s efficient and sells well on paper. The master suite gets privacy. The secondary bedrooms get their own wing. Everybody wins.
Except nobody tells you what it actually feels like to live in one with young kids.
How Split Bedrooms Became the Default
Twenty years ago, 75% of buyers wanted four bedrooms grouped together – one primary suite plus three standards, all in the same hallway or wing. Today, 55% of buyers want split layouts with bedrooms on opposite ends of the home.
The split bedroom concept took off because it sounds perfect in theory. Your master suite sits on one side of the house, separated from the other bedrooms by the living areas. You get privacy. Your guests get privacy. Everyone’s happy.

The “boring” grouped layout your parents had. Turns out they knew something we didn’t.
I helped my friend Megan house-hunt in 2019. She fell in love with a 2,200-square-foot ranch with this exact layout. The master was gorgeous – 14 by 16 feet, walk-in closet, double vanity, the works. The two kids’ bedrooms were across the great room, down a short hall on the other side.
“It’s perfect,” she told me. “We get our own space.”
Her daughter was two at the time. Her son was four.
Within six months, Megan was sleeping on an air mattress in the hallway outside her daughter’s room three nights a week. The distance between master and kids’ rooms was about 45 feet through the great room. Not far in daylight. An eternity at 3 AM when a toddler is having night terrors and you’re stumbling through a pitch-black living room, banging your shin on the coffee table.

Forty-five feet doesn’t sound far until you’re crossing it barefoot in the dark at 3 AM.
She called me last year, five years in, still in the same house. “I should have listened to you about the floor plan,” she said. And yeah… I had mentioned it. But who listens to floor plan advice when the kitchen has quartz countertops?
Most builders won’t warn you because the split layout is their bestseller. It photographs beautifully, it maximizes square footage efficiency, and it checks every box on the feature sheet. But a feature sheet can’t tell you what it feels like to live there with a family that’s still growing.
What Distance Does to a Family
Let’s talk about what that bedroom distance really means in practical terms. Because this isn’t just about inconvenience. It affects sleep, relationships, safety, and – this one surprised me – your kids’ development.
Chronic noise exposure in homes has been linked to behavioral problems, poor concentration, and disrupted sleep patterns in children. Open floor plans with hard surfaces and vaulted ceilings amplify every sound.
One family I found on a homeowner forum described their two-story great room situation perfectly: the house was “loud throughout, even in upstairs bedrooms” with the open layout acting like an echo chamber.

Beautiful to look at. Terrible for sleeping kids. That vaulted ceiling acts like a megaphone pointed straight at the bedrooms.
Now flip that problem. In a split layout, the issue isn’t too much noise – it’s too little. You can’t hear your kids. At all. The living room, kitchen, and dining area sit between you like a sound barrier. That’s great when they’re teenagers. It’s terrifying when they’re three.
The American Academy of Pediatrics recommends infants sleep in the parents’ room for the first six to twelve months. But even after that transition, most pediatricians want young children within easy hearing distance. A split floor plan with 40 to 50 feet of separation, a great room in between, and solid-core doors on both ends? That’s not easy hearing distance. That’s basically a different apartment.

Sound doesn’t bend corners well. By the time it crosses this living room, you won’t hear anything below a full scream.
And then there’s the fire safety angle that nobody talks about. If bedrooms are on opposite ends of a single-story home, or worse, on different floors, response time during an emergency doubles. Every second matters. Every foot of hallway matters.
But here’s what really gets me. The emotional cost doesn’t show up for years. It’s the slow accumulation of guilt, frustration, and exhaustion. It’s the couple fighting about who has to get up because neither wants to make the trek. It’s the five-year-old who starts sleeping on your bedroom floor because their room “feels too far away.”
That’s the cost you can’t put a number on.
The $25,000 Fix That Isn’t One
So you’ve been living with this floor plan for three years. Your youngest is about to start kindergarten. You’re done having kids. And you finally admit the layout isn’t working.
What are your options?
Option one: renovate. Move walls, add a bedroom closer to the master, reconfigure the hallway. I priced this out with a contractor friend last year. For a typical ranch-style home, you’re looking at $25,000 to $35,000 minimum. That includes structural engineering ($350 to $900 just for the assessment), wall relocation ($2,000 to $8,500 depending on whether it’s load-bearing), and the real killer – plumbing.

This is what a $30,000 floor plan fix looks like mid-construction. And this homeowner got lucky – no load-bearing walls involved.
If you’re adding or moving a bathroom to accommodate the new bedroom placement, costs explode. Moving a single toilet runs $2,500 to $3,500. Running new supply and drain lines 20 feet to reach a new location? That’s $5,000 to $10,000. A full bathroom rough-in on a slab foundation (no basement access) can hit $15,000 before you’ve picked a single tile.
And here’s the kicker. That $25,000 renovation quietly creeps to $35,000 when the hidden costs stack up. And that extra $10,000? Rarely recovered in resale value. You’re spending money to fix a problem that shouldn’t have existed.
Option two: sell and buy something with a better layout. In most markets, you’re looking at $15,000 to $25,000 in transaction costs alone – agent commissions, closing costs, moving expenses. Plus whatever you lose on timing if the market’s shifted.

Properties with floor plans get 52% more online views. Smart buyers are checking bedroom placement before they even schedule a showing.
Option three: live with it. And honestly? That’s what most families do. They adapt. They buy baby monitors with longer range. They leave doors open. They eventually stop thinking about it… until the next kid comes along, or an elderly parent moves in, and the whole cycle of regret starts over.
Most people choose option three because they didn’t plan for options one or two. And by the time they realize the problem, they’re financially locked in.
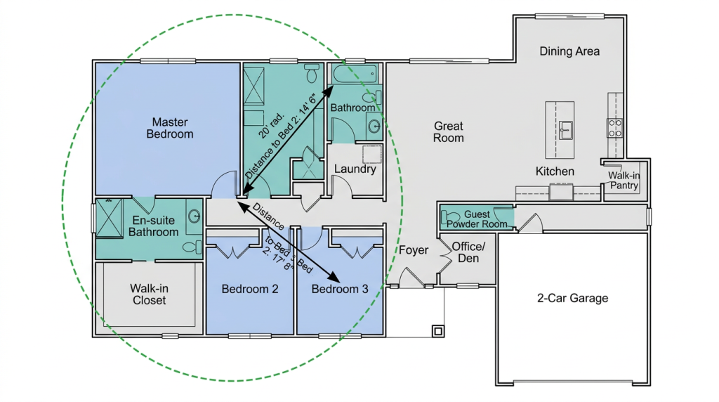
The 20-Foot Rule
Here’s what I wish someone had told me – and what I now tell every first-time buyer who’ll listen. There’s an unwritten rule among the best custom home builders, and it goes like this: bedrooms for children under 12 should be within 20 feet of the master bedroom door, with no major living spaces in between.
Twenty feet. That’s the magic number.

The 20-foot rule in action. Every kids’ bedroom falls within earshot of the master. No great rooms in between.
At 20 feet through a standard hallway (3 to 4 feet wide, no open rooms breaking the path), you can hear a child cry. You can reach them in under 10 seconds. You maintain that connected feeling that young families need without sacrificing all your privacy.
This doesn’t mean every bedroom needs to share a wall with the master. It means the path between them should be short, direct, and enclosed. A hallway works. A Jack-and-Jill bathroom connecting two kids’ rooms adjacent to the master wing works. What doesn’t work is routing that path through a 20-by-25-foot great room with cathedral ceilings and tile floors.
The best floor plans I’ve seen use what I call the “cluster and buffer” approach. Kids’ bedrooms cluster near the master wing, separated by a short hall or bathroom. The master itself gets its buffer through the bathroom and closet sequence – you walk through the closet to reach the bathroom, putting two rooms between the sleeping area and the hallway. That gives parents genuine sound separation without physical distance.

Closet, then bathroom, then bedroom. Three layers of sound buffer without adding a single foot of distance from the kids.
One builder I spoke with put it this way: “First-time buyers think too much about square footage and not enough about floor plan. They’re thinking about Mom and Dad’s house – a segmented house.” But segmented doesn’t have to mean separated. The goal is zones, not wings.
The difference between a good floor plan and a great one isn’t more space. It’s smarter transitions.
Getting the Master Suite Sequence Right
While we’re talking about bedroom placement, let’s get into the room-within-a-room problem that catches almost everyone off guard. Your master suite isn’t one room. It’s three: bedroom, closet, and bathroom. And the order you walk through them changes everything about how the space actually lives.
There are three main sequences builders use.
The first is the bedroom to the closet to the bathroom. This is the gold standard for noise isolation. Your closet acts as a sound buffer between the bathroom and sleeping area.

When your partner gets up at 5:30 AM, showers, and gets ready, there are two doors and a room full of hanging clothes between them and your pillow. I can’t overstate how much this matters. That closet full of fabric absorbs sound like nothing else in your home.
Two doors and a closet full of clothes between the shower and your pillow. This sequence saves marriages.
The second is bedroom to bathroom to closet.
More common in older homes and spec builds because it’s simpler to plumb. But the bathroom is right there. Every flush, every shower, every exhaust fan – you hear it all. I stayed in a vacation rental with this layout last summer and woke up every single time my wife turned on the faucet.
The third is the vestibule approach – a small hallway with separate doors to the closet and bathroom. This is the most expensive option (you’re adding 15 to 25 square feet of hallway), but it lets both partners access either space without passing through the other. For couples with wildly different schedules, this layout is a relationship saver.

The vestibule costs about $2,000-$4,000 extra to build. Couples with different work schedules call it the best money they’ve ever spent.
Most first-time buyers never even think about this. They check whether the master has a walk-in closet and an en-suite bathroom. Box checked, move on.
But the arrangement matters more than the amenities themselves. A 60-square-foot walk-in closet in the wrong position is worse than a 40-square-foot closet in the right one.
Here’s my insider tip: when you’re touring homes or reviewing floor plans, stand in the master bedroom and close your eyes. Can you hear the bathroom exhaust fan? Water running? If you can hear those with the door closed during a showing, you’ll definitely hear them at 5 AM in dead silence.
The Flex Room Advantage
I want to tell you about my neighbor Dave, because his story perfectly illustrates how one smart floor plan decision cancels out years of potential regret.
Dave and his wife bought their home in 2018. Three bedrooms, grouped layout, all on the same floor. Standard stuff. But the house had something most cookie-cutter builds don’t: a 10-by-12-foot room off the master hallway that the builder called a “flex room.” No closet, so it didn’t count as a bedroom for appraisal purposes. The listing described it as a home office.

This 120-square-foot flex room doesn’t count as a bedroom on paper. In practice, it’s been a nursery, an office, a reading nook, and a guest room over the past seven years.
When their first kid came along in 2020, that flex room became a nursery. It was six feet from their bedroom door. No great room to cross, no opposite wing to navigate. Just a short hallway and a door.
When the baby outgrew the nursery and moved to one of the bigger bedrooms down the hall, the flex room became Dave’s home office. Then when their second kid arrived, it became a nursery again. Now it’s a playroom. Next year, Dave says it’ll probably become a homework station.
That room has been five different things in seven years. And every single version of it worked because of where it sits – close to the master, off the main hallway, tucked between the private and public zones of the house.

Notice where the flex room sits. Close enough to the master for a nursery, close enough to the kids’ rooms for a playroom. Position is everything.
The flex room concept is blowing up in new construction for exactly this reason. It addresses the number one fear of first-time buyers: what happens when our needs change? Because they will change. A couple becomes a family of three, then four. Someone starts working from home. An aging parent needs a ground-floor bedroom. The house that worked perfectly in year one doesn’t work at all in year five.
30% of survey respondents say not planning space for the future is among their top three most annoying home mistakes. A flex room won’t solve every problem. But it gives you room to adapt without a $25,000 renovation.
The 10-Minute Floor Plan Test
Before you sign anything, before you fall in love with the countertops, before you start mentally arranging furniture – do this test. It takes 10 minutes and it’ll tell you more about how a home actually lives than any open house walkthrough.
Get the floor plan. Every listing should have one (and if it doesn’t, that’s a red flag – properties with floor plans get 52% more online views because serious buyers demand them).

Grab a red marker and trace your 3 AM path. If it crosses the living room, keep looking.
Now trace these paths with a marker:
The 3 AM path. Start at the master bed. Walk to the nearest child’s bedroom. Count the rooms you pass through. If you cross an open living area, a kitchen, or go up or down stairs, flag it. The ideal path is a hallway only, under 20 feet, with no open rooms.
The morning rush path. How many people need the same hallway and bathroom between 6:30 and 7:30 AM? If three bedrooms share one bathroom and one hallway, you’ve got a traffic jam every single morning for the next 15 years.
The guest path. Where does a houseguest walk to use the bathroom at night? If they pass your master bedroom door, you’ll hear it. Every. Single. Time.
The noise path. Stand in the master bedroom (or where it is on the plan) and picture the TV on in the living room at normal volume. How many walls and doors are between you and that sound? One wall isn’t enough. Two is acceptable. The closet-bathroom buffer sequence gets you to three.

Four paths, four potential problems. Most buyers check zero of these before signing.
My contractor friend told me something that stuck: “The difference between a $25,000 renovation and a good night’s sleep is 10 minutes with a floor plan and a marker.” He’s not wrong.
Here’s one more thing to check. Look at where the laundry room sits. If it shares a wall with any bedroom, you’ll hear the spin cycle at 10 PM. 80% of homeowners prefer a dedicated laundry room away from sleeping areas – not a mudroom combo, not a hallway closet, and definitely not sharing a wall with the nursery.

The laundry room shares a wall with the guest bedroom. That washer’s spin cycle hits 1,200 RPM. Your guests will feel it.
Proximity Over Square Footage
Every floor plan mistake I’ve talked about – the split bedrooms, the wrong master suite sequence, the missing flex room, the laundry room placement – they all come back to one principle that the best architects and builders follow instinctively.
Proximity beats square footage. Every time.
A 1,800-square-foot home with intelligently grouped bedrooms, a proper master suite sequence, and a flex room near the master hallway will outperform a 2,400-square-foot home with a split layout, six ways to Sunday. It’ll sleep better, function better, resell faster, and cost less to maintain.

1,800 square feet on the left. 2,400 on the right. The smaller home lives bigger because every room is where it should be.
The 55% of buyers now requesting split layouts aren’t wrong about wanting privacy. But privacy through distance is the expensive way. Privacy through smart sequencing – closet buffers, bathroom placement, hallway design – gives you everything the split layout promises without the drawbacks.
Before you buy, build, or renovate… trace the paths. Count the feet. Close your eyes and listen.
Your future self – the one stumbling through the dark at 3 AM – will thank you.
Which room in your current home is in the wrong spot? I’d bet money there’s at least one.
