Designed to Amaze (Floor Plan)

Imagine living in a home where each room embraces sweeping views and sunlit warmth. This Mediterranean/Tuscan inspired layout melds luxury with functionality, and truly, it checks all the boxes.
With two staircases, plus an elevator for easy access, this exquisite dwelling caters to both aesthetics and practical needs, making it ideal for all sorts of lifestyles.
Let me walk you through its charming spaces.
Specifications:
- 9,104 Heated S.F.
- 5 Beds
- 5.5+ Baths
- 2 Stories
- 3 Cars
The Floor Plans:




Foyer and Grand Room
Entering through the elegant foyer, you’re greeted by an openness that leads directly into the grand room.

The soaring two-story ceiling magnifies the space, creating an inviting atmosphere perfect for entertaining guests or enjoying a cozy family evening.

From here, you can admire the house’s structure, an ideal display spot for art or cherished photographs.

Dining Room
Adjacent is the dining room, an ornate yet functional space. Its proximity to the kitchen ensures serving meals is a breeze, making it the heart of any gathering. It’s enclosed enough for intimacy, yet open to the foyer, blending formality with warmth.
Perhaps you’d enjoy adding a statement chandelier or opting for a large dining table to bring everyone together.
Kitchen and Family Room
Moving forward, we encounter a kitchen designed for the culinary enthusiast.

Its ample counter space and modern appliances cater to varied cooking experiences. The breakfast nook offers views of the terrace, providing a casual dining area. My favorite feature?

The adjoining family room, which includes a fireplace for a cozy touch. It’s the perfect spot for relaxed evenings or catching up over coffee, with an easy flow for conversation. How might you use this stimulating space to host friends or spend time with family?
Master Suite
The master suite is a sanctuary on the main floor. With its direct access to the covered terrace, it embraces nature’s tranquility.
The dual walk-in closets walk-in closets and luxurious bath elevate your daily routine with comfort and convenience. Imagine waking up with sunlight streaming in from your private terrace entrance – isn’t that a dream?
Contemplating the optimal organization for those closets could add a personalized touch.
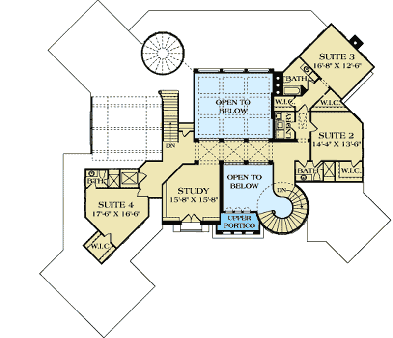
Upper Floor Suites and Study
Upstairs, we find four additional suites, each with its own character and potential.
Suites two, three, and four, complete with walk-in closets and personal baths, ensure privacy for all occupants.
Whether these rooms become children’s quarters, guest rooms, or hobby spaces, they promise versatility.
Across the hall, the study offers a quiet refuge, be it for work, reading, or reflection.
Its dimensions accommodate varied uses – perhaps a library wall or a collaborative workspace. What kind of ambiance might you curate here?
Lower Level Recreation
The lower level counters the elegance above with relaxed entertainment options galore.
The recreation room invites large gatherings, with access to a bar for hosting stylish parties or casual hangouts. The adjacent game room offers boundless fun possibilities, accommodating everything from table tennis to cozy movie nights.
Billiards and Exercise Rooms cater to both leisure and health. Whether unwinding with a game or focusing on fitness, these spaces aptly serve dual purposes, reflecting a balance many seek in their lifestyle.
Would you consider integrating a home gym or a sauna retreat as shown?
Guest Suite
The guest suite on this level adds comfort and hospitality, allowing visitors their own private area. It becomes a welcoming retreat, complete with its own bath and walk in closet.
This feature adds significant appeal for long-term guests or multigenerational living, doesn’t it?
Outdoor and Garage
Lastly, the home’s outdoor spaces and garage areas enhance its charm. A covered terrace invites alfresco dining or tranquil morning coffee moments, seamlessly blending indoor comfort with the outdoors. The 2-car and 1-car garages provide ample parking and storage, catering especially to large families or car enthusiasts. Storage demands are addressed thoughtfully, ensuring clutter-free living.
Given these dynamics, is the layout poised for seamless everyday movement and entertaining?
For me, its flexibility is unmatched, with each room offering both a purpose and potential for personalization.
Enhancements could include exploring smart home capabilities for modern convenience or enhancing garden areas to complement the terrace view.
In contemplating spaces, do they align with the needs of modern living?
This home extends a harmoniously interconnected lifestyle, aiming to balance sophistication with the simplicity we often crave. Imagine, dream, and perhaps let this layout be an inspiration to craft your ideal living space.
Interest in a modified version of this plan? Click the link to below to get it and request modifications.
